Meomum Zip House by Todot Architects and Partners – A Tranquil Forest Retreat Designed for Rest, Reflection, and Connection
Meomum Zip House blends arched cloisters, serene landscapes, and dual-family privacy to create a peaceful forest retreat focused on rest and reflection.
Meomum Zip House, designed by Todot Architects and Partners, is a serene architectural retreat located in the lush, elevated forests of Yangpyeong, South Korea. Completed in 2025, this 197 m² residence serves as a thoughtful escape for a couple who run a mid-sized company, while also offering a peaceful stay for their employees. The project blends architectural elegance, sensitive site response, and a deep philosophy of stillness—“Meomum,” the act of staying and pausing.


A Forest-Edge Sanctuary on Challenging Terrain
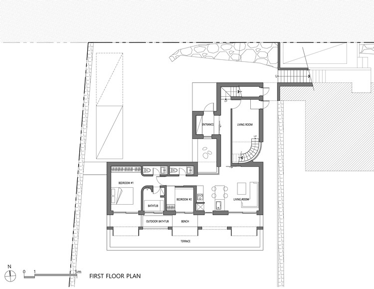
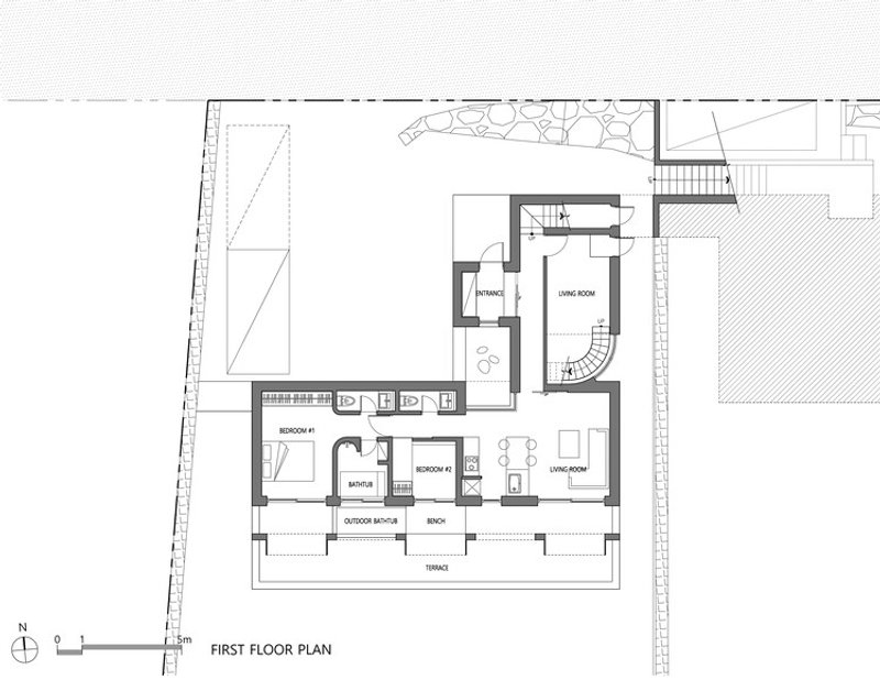
The house sits on two adjacent plots in the scenic Sudaewool area in Munho-ri, an elevated forest region designated as a residential development complex. Although the clients wished for a dual-family arrangement—one for themselves and one for employees—strict regulations in the waterside protection area prevented constructing multiple buildings or multi-household units.
To overcome these constraints, the architects designed two identical homes on two plots with a 3-meter elevation difference, connecting them through a dramatic two-story entrance hall. This solution preserved legal compliance while delivering privacy, independence, and comfort for both families.


Cloistered Arches: The Heart of Meomum
The signature architectural element of Meomum Zip House is the continuous cloister of arches that wraps the structure. Traditionally, a cloister is a covered walkway surrounding a building, but here it becomes the home’s emotional core—an elongated space designed for pausing, resting, and lingering.
During midday, warm southern sunlight filters through the arches, filling the interiors with soft, indirect light. The toenmaru, a narrow wooden porch typical of Korean architecture, extends from the rooms into the cloister, seamlessly merging indoor relaxation with outdoor tranquility. A small bathtub nearby enhances the spirit of restful staying—another interpretation of Meomum.



Framing Nature in Every Season
The arched openings lead the eye to expansive landscapes—distant mountains, wide skies, and carefully curated gardens. Each season beautifully occupies these frames before passing, making nature a living, breathing part of the home. The cloister does not just connect rooms; it connects people to time, memory, and changing landscapes.


Layered Gardens and Spaces for Togetherness
Both the upper and lower gardens offer places designed for meaningful pauses:
- The Tea House on the upper level feels like stepping into another world, offering solitude and calm.
- The fire pit in the lower garden creates a warm gathering spot for shared memories, conversations, and storytelling.
These spaces ensure the house feels alive throughout the day and across the seasons.


Fire as the Heartbeat of the Home
Fire—symbolic of nourishment, warmth, and connection—forms the emotional core of the house. Events around the fire pit or within the glowing interiors become cherished memories for anyone who stays here, even briefly. Every moment spent in Meomum Zip House is a reminder of rest, reflection, and the desire to return.




A House Built to Be Remembered
Meomum Zip House embodies the philosophy of stillness. It is not just a place to stay—it is a place that encourages one to return, rediscover, and rebuild memories. By fusing architectural restraint, natural beauty, and meaningful spatial sequences, Todot Architects and Partners created a retreat that feels both timeless and deeply human.



All the photographs are works of Jinbo Choi
Popular Articles
Popular articles from the community
Gads Hill Early Learning Center by JGMA: Adaptive Reuse Shaping Community-Focused Educational Architecture
Adaptive reuse transforms fragmented structure into vibrant early learning center with playful façade, natural light, and community-focused sustainable design.
Free Architecture Competitions You Can Enter Right Now
No entry fees, real prizes. Here are the best free architecture competitions open for submissions in 2026.
Split House: A Compact Urban Home Blending Privacy, Light, and Flexible Living in Japan
Compact Japanese home featuring DOMA space, flexible café potential, passive lighting, privacy zoning, and sustainable urban living design.
Inverted Architecture Installation by Studio Link-Arc: Exploring the Intersection of Architecture and Living Organisms
Inverted Architecture Installation by Studio Link-Arc blends mycelium, sustainability, inverted design, ecological cycles, and urban adaptive architecture in Shenzhen.
Similar Reads
You might also enjoy these articles
The Ken Roberts Memorial Delineation Competition (Krob)
As the most senior architectural drawing competition currently in operation anywhere in the world, it draws hundreds of entries each year, awarding the very best submissions in a series of medium-based categories.
Waterfront Redevelopment and Urban Revitalization in Mumbai: Forging a New Dawn for Darukhana
A transformative waterfront redevelopment project reimagining Darukhana’s shipbreaking heritage into an inclusive urban future.
OUT-OF-MAP: A Call for Postcards on Feminist Narratives of Public Space
Rhizoma Design and Research Lab invites artists, designers, architects, researchers, and students to reflect on how feminist perspectives can reshape public space. Selected works will be exhibited in Barcelona, October 2026. Submissions open until 15 April 2026.
Documentation Work on Buddhist Wooden Temple
Architectural syncretism and cultural hybridity: A comparative study of the Buddhist temples in Chattogram Hill tracks
Explore Architecture Competitions
Discover active competitions in this discipline
The International Standard for Design Portfolios
The Global Benchmark for Architecture Dissertation Awards
The Global Benchmark for Graduation Excellence
Challenge to reimagine the Iron Throne
Comments (0)
Please login or sign up to add comments
No comments yet. Be the first to comment!