Mill House By Silverline: Contemporary Transformation in Vila Nova de Gaia
Mill House by Silverline in Vila Nova de Gaia transforms historic estate into modern, light-filled family home, blending heritage, wood, and contemporary design.
Located within a historic agricultural estate in Vila Nova de Gaia, Portugal, Mill House, also known as Casa do Engenho, represents a thoughtful architectural intervention by Silverline Architects. Originally part of an 18th-century ensemble including the main residence, threshing floor, wells, and small support buildings, the Mill House was a rigid, compartmentalized space intended for family gatherings and celebrations. Its functionality for daily life, however, was limited, prompting the need for a comprehensive transformation.


During a three-month stay in the old pool house, the architects discovered the potential of the building, inspiring the full renovation that balances respect for heritage with contemporary living. The intervention preserved the structural integrity and exterior facade, while regularizing metrics and adding new shutters to control light, comfort, and flexibility. Although connected to the main house, Mill House now asserts autonomy with a distinct architectural identity, blending historic references with modern design language.


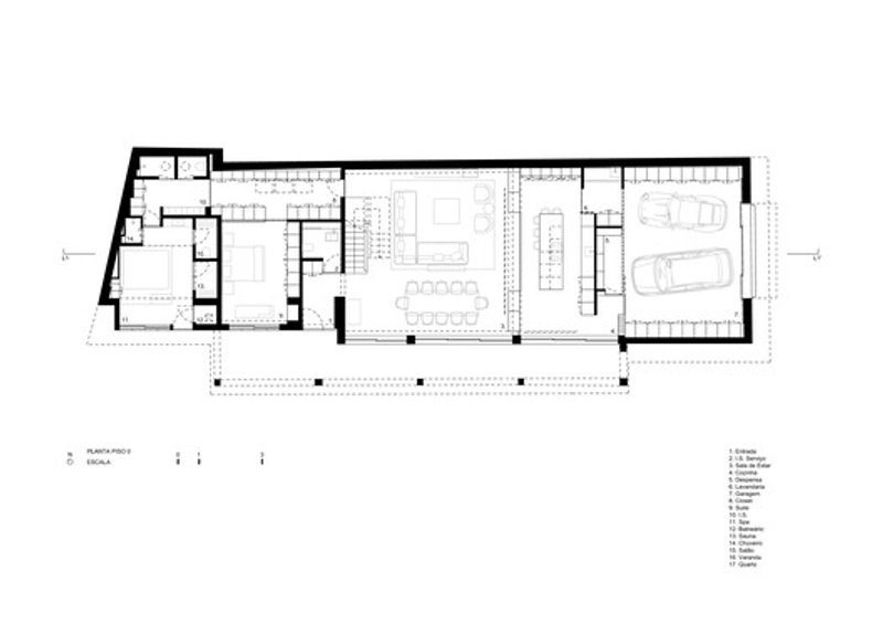
The interior prioritizes visual permeability, natural light, and spatial continuity, redefining daily living. The lower floor integrates the living room, dining area, and kitchen into a fluid social space. Warm wooden finishes and sliding panels allow for openness or privacy. Supporting spaces include a laundry, pantry, service bathroom, garage, and a master suite featuring a walk-in closet, spa area, and direct access to the outdoors.


The upper floor accommodates two additional suites and a large living room, each with balcony access. The sloped roof incorporates skylights to maximize daylight, extending beyond the perimeter to create covered outdoor spaces with solar protection.

A key feature is the original staircase, preserved as a symbolic centerpiece. The stone steps at the entrance contrast with contemporary wooden treads, creating rhythm and continuity while connecting social and private areas. The material palette emphasizes natural elements: wood, stone, and light, allowing dialogue with the historical pre-existing architecture.


Today, Mill House has evolved from a complementary space to a leading family residence. Casa do Engenho embodies vitality, meaning, and comfort, respecting the heritage of the site while projecting a contemporary vision for family living. It is a space where architecture embraces the continuity of a family story, blending history, modernity, and functional elegance.

All the photographs are works of Ivo Tavares Studio
Popular Articles
Popular articles from the community
Split House: A Compact Urban Home Blending Privacy, Light, and Flexible Living in Japan
Compact Japanese home featuring DOMA space, flexible café potential, passive lighting, privacy zoning, and sustainable urban living design.
Marvila Apartment Renovation in Lisbon: A Bright Minimalist Attic Transformation by KEMA Studio
Bright attic transformed into minimalist Lisbon apartment with skylights, sustainable materials, open plan layout, and industrial-inspired interior design elements.
Free Architecture Competitions You Can Enter Right Now
No entry fees, real prizes. Here are the best free architecture competitions open for submissions in 2026.
Similar Reads
You might also enjoy these articles
Filtering Space: A Gradual Spatial Experience
From urban intensity to spatial calm.
The Ken Roberts Memorial Delineation Competition (Krob)
As the most senior architectural drawing competition currently in operation anywhere in the world, it draws hundreds of entries each year, awarding the very best submissions in a series of medium-based categories.
Waterfront Redevelopment and Urban Revitalization in Mumbai: Forging a New Dawn for Darukhana
A transformative waterfront redevelopment project reimagining Darukhana’s shipbreaking heritage into an inclusive urban future.
OUT-OF-MAP: A Call for Postcards on Feminist Narratives of Public Space
Rhizoma Design and Research Lab invites artists, designers, architects, researchers, and students to reflect on how feminist perspectives can reshape public space. Selected works will be exhibited in Barcelona, October 2026. Submissions open until 15 April 2026.
Explore Architecture Competitions
Discover active competitions in this discipline
The International Standard for Design Portfolios
The Global Benchmark for Architecture Dissertation Awards
The Global Benchmark for Graduation Excellence
Challenge to reimagine the Iron Throne
Comments (0)
Please login or sign up to add comments
No comments yet. Be the first to comment!