Minimalist Apartment Renovation: Apartment M.3 by True Thing Design Studio in Kaohsiung
An exploration of minimalist apartment renovation in Kaohsiung, blending raw materials, flexibility, and sustainability for modern urban living.
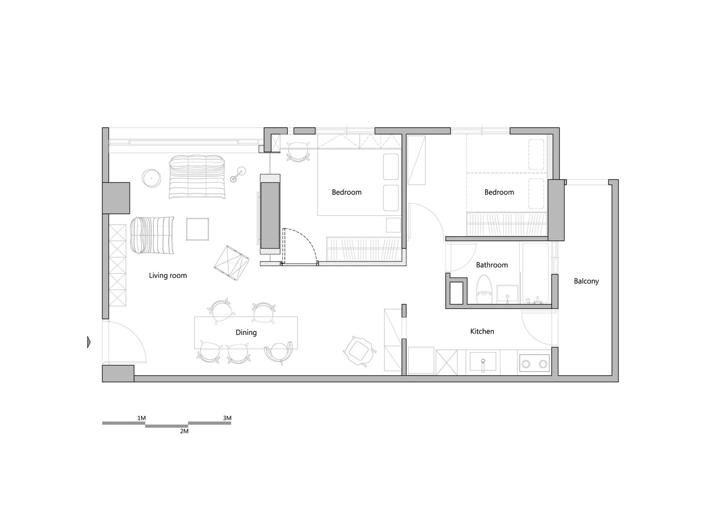
Apartment M.3, designed by True Thing Design Studio, is a stunning example of minimalist apartment renovation located in Kaohsiung City, Taiwan. With an area of just 55 m², this compact yet thoughtfully designed residence near Kaohsiung’s bustling harbor and the scenic Shoushan mountain transforms the concept of small-space living.




Preserving the Original Architecture
The project led by architect Adrian Tsai was conceived as a mid-to-short-term living space for the owner, with a clear focus on minimizing invasive renovations. Instead of erasing the apartment’s past, the design preserves the original architectural framework, allowing it to tell its own story. This minimalist approach ensures the apartment remains adaptable, open to future changes, expansions, or even deconstruction, underscoring the studio’s commitment to sustainability.




Celebrating Raw Materials and Natural Textures
Rather than using excessive coverings or decorative embellishments, the design embraces raw materials, allowing the natural textures of concrete, wood, and metal to shine. The visible wear and traces of time become aesthetic elements in their own right, enriching the space with a sense of authenticity and character. This strategy not only reduces resource waste but also aligns perfectly with the principles of minimalist apartment renovation, where less truly becomes more.




Maximizing Light, Views, and Spatial Flexibility
A key strength of Apartment M.3 lies in its sensitive spatial layout. The apartment maximizes views of the surrounding mountains, bringing in ample natural light that creates an ever-changing interplay of light and shadow throughout the day. This dynamic relationship between inside and outside adds depth and atmosphere to the small footprint.


The bedroom is particularly notable for its adaptability. Designed to shift seamlessly between open and private states, it supports the diverse needs of daily life. This flexibility invites the residents to experience the apartment as an evolving space, one that changes with time, mood, and function.


A Model for Sustainable Urban Living
Apartment M.3 offers a blueprint for sustainable urban living, where careful interventions and a respect for existing structures replace demolition and overbuilding. By minimizing waste and maximizing adaptability, True Thing Design Studio has created a living space that is not only visually compelling but also environmentally responsible. This minimalist apartment renovation stands as a testament to the idea that thoughtful design can elevate even the most compact spaces into something extraordinary.



All the photographs are works of Suiyu Studio
Popular Articles
Popular articles from the community
Treehouse Apartment: A Warm Timber Interior Blending Craft, Play, and Contemporary Living
Warm timber apartment with integrated treehouse, combining natural materials, craftsmanship, and playful design to create a flexible, family-oriented living environment.
A Contemporary Take on Iranian Residential Architecture
A modern interior design in Mashhad that reinterprets brick, light, and spatial flow to create a warm, contemporary residential architecture.
Louis Malle Cinema: A Limestone Cultural Landmark Revitalizing Community Life in Prayssac
Limestone cinema extension with public forecourt, blending heritage and modern design to create flexible cultural spaces and strengthen community interaction.
Atelier Macri Concept Store Interior Design by CASE-REAL
Atelier Macri store features a "ko" counter, walnut wood details, cork displays, blending retail, gallery, and seamless customer experiences.
Similar Reads
You might also enjoy these articles
Top 15 Architecture Competitions to Enter in 2026
From student-friendly idea competitions to prestigious international awards, here are the best architecture competitions open for entries in 2026. Updated regularly.
DIY & Engineering in Computational Design : Enter the BeeGraphy Design Awards
Showcase Your Creativity with Computational Design and Open Source Projects

Innovative Design Solutions: Award-Winning Projects from Recent Architecture Competitions
Exploring award-winning architectural projects shaping the future of design, sustainability, and community.
Explore Architecture Competitions
Discover active competitions in this discipline
The International Standard for Design Portfolios
The Global Benchmark for Architecture Dissertation Awards
The Global Benchmark for Graduation Excellence
Challenge to reimagine the Iron Throne
Comments (0)
Please login or sign up to add comments
No comments yet. Be the first to comment!