Minimalist Hair Salon Interior Design: Alternative Hair Salon by PERMANENT Co., Ltd.
A minimalist hair salon interior in Japan designed by PERMANENT redefines flexibility, material honesty, and enduring spatial simplicity.
Embracing Simplicity in a Salon Redefined by PERMANENT
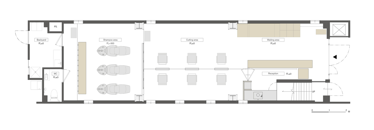
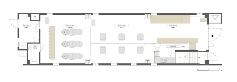
Located in Japan and crafted by PERMANENT Co., Ltd., the Alternative Hair Salon is a compelling case study in minimalist hair salon interior design. Completed in 2024, the 82-square-meter salon exemplifies a thoughtful integration of material honesty, timelessness, and adaptable functionality. PERMANENT’s design philosophy—quiet endurance and contextual sensitivity—shines through this unique interior renovation, demonstrating how a restrained aesthetic can fuel creativity and transformation over time.


A Creative Space Rooted in Raw Materiality
PERMANENT Co., Ltd., led by architect Masaki Takeuchi, designed the Alternative Hair Salon not merely as a commercial space, but as an evolving canvas. The client, a hair stylist with an unconventional and experimental approach, required a space that could reflect and adapt to his evolving creative identity. Rather than imposing a rigid layout or predefined usage, the architects developed a flexible framework using unadorned, raw materials and standalone design elements. This approach aligns with the minimalist interior design philosophy—where every component has a purpose, but none dominate.



Sculpting Flexibility Through Design Simplicity
The layout is composed of freestanding, puzzle-like pieces without fixed functions, allowing the space to be continually redefined by the user. These elements include exposed wood beams, raw textures, and pure geometric forms that evoke both warmth and neutrality. The result is a space that doesn’t dictate activity, but instead supports transformation and spontaneity—hallmarks of minimalist salon interiors.


In a field often characterized by elaborate styling and visual noise, the salon becomes a serene backdrop that both highlights and supports the individuality of the stylist and their clients. By avoiding over-design, the space achieves a calm, timeless atmosphere that can evolve organically.


A Quietly Radical Statement in Salon Design
The minimalist design does not compromise functionality. Instead, it elevates it by fostering versatility. The raw materials—including wood, concrete, and simple lighting—reflect a palette grounded in permanence and sustainability. Each element exists independently but contributes to a larger spatial harmony. The lighting is intentionally soft and intimate, creating a sense of comfort that aligns with the wellness-oriented shift in modern hair salon experiences.



This project pushes against the expectations of commercial design by embedding adaptability directly into the fabric of the architecture. It’s a living environment meant to change with its owner, setting a new standard for what minimalist hair salon interior design can accomplish—not just visually, but emotionally and functionally.


Redefining Enduring Design in Wellness Interiors
Alternative Hair Salon by PERMANENT Co., Ltd. invites a rethinking of how wellness and commercial interiors are conceived. It is a space grounded in the past through its material language and cultural awareness, but open to the future through its adaptable form. The project serves as a model for designers seeking to balance simplicity, budget constraints, and expressive flexibility.
As salons increasingly become lifestyle destinations and wellness hubs, projects like this exemplify the potential of minimalist interior design to create spaces that endure—spaces that don’t simply impress at first glance, but continue to support and inspire over time.

All Photographs are works of Shin Morita
Popular Articles
Popular articles from the community
The Ken Roberts Memorial Delineation Competition (Krob)
As the most senior architectural drawing competition currently in operation anywhere in the world, it draws hundreds of entries each year, awarding the very best submissions in a series of medium-based categories.
Solar Steam: A Climate-Responsive Architecture That Redefines the Monument
A climate-responsive memorial architecture that transforms heat, decay, and time into a living system reflecting humanity’s ecological impact.
Free Architecture Competitions You Can Enter Right Now
No entry fees, real prizes. Here are the best free architecture competitions open for submissions in 2026.
Similar Reads
You might also enjoy these articles
Free Architecture Competitions You Can Enter Right Now
No entry fees, real prizes. Here are the best free architecture competitions open for submissions in 2026.
Top 15 Architecture Competitions to Enter in 2026
From student-friendly idea competitions to prestigious international awards, here are the best architecture competitions open for entries in 2026. Updated regularly.
DIY & Engineering in Computational Design : Enter the BeeGraphy Design Awards
Showcase Your Creativity with Computational Design and Open Source Projects

Innovative Design Solutions: Award-Winning Projects from Recent Architecture Competitions
Exploring award-winning architectural projects shaping the future of design, sustainability, and community.
Explore Architecture Competitions
Discover active competitions in this discipline
The International Standard for Design Portfolios
The Global Benchmark for Architecture Dissertation Awards
The Global Benchmark for Graduation Excellence
Challenge to reimagine the Iron Throne
Comments (0)
Please login or sign up to add comments
No comments yet. Be the first to comment!