Mirador House by S-AR – A Minimalist Concrete Home Overlooking Nature
Mirador House by S-AR is a concrete volume on a slope, combining residence, storage, and rooftop lookout with panoramic views.
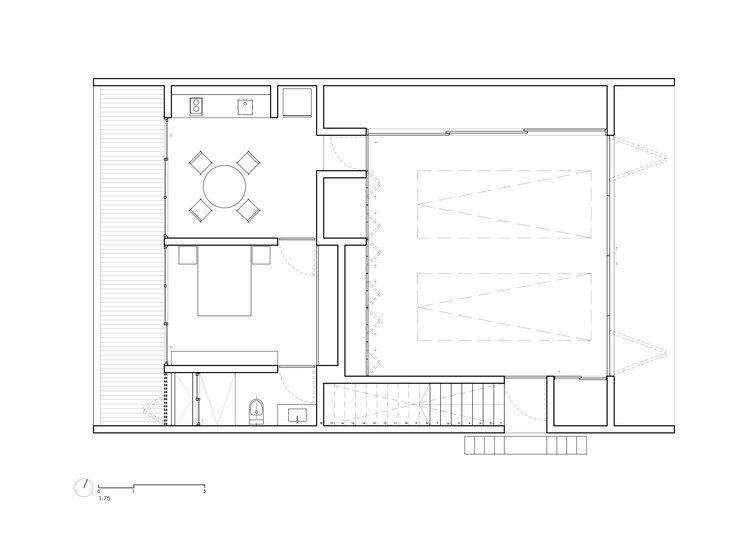
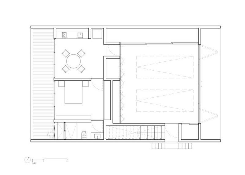
Mirador House, designed by S-AR Architects, is a striking architectural object in Mexico that blends simplicity, utility, and natural integration. Completed in 2023, this 164 m² residence is conceived not just as a small dwelling, but as a multipurpose structure that unites a house for the property’s guard, storage facilities, and parking space within one seamless design.

A Concrete Volume Embedded in the Landscape
Positioned on the upper part of a natural slope, Mirador House leverages its elevated location to frame sweeping views of the valley and surrounding mountains. The building is a rectangular concrete volume that merges into the terrain, emphasizing solidity while opening to expansive landscapes.

The exterior is crafted with exposed concrete walls, giving the structure a raw, minimalist aesthetic. Inside, concrete block walls divide the living spaces, while large glass enclosures enhance light penetration and connect the interior with the outdoors. The garage and storage sections are defined by robust metal gates, reinforcing durability and functionality.

Program and Layout
The building is organized into two main zones:
- The Residential Unit: A small, rectangular home designed for the guard, comprising a kitchen, bedroom, bathroom, and services, all opening to a modest terrace that serves as a transition between indoors and outdoors.
- The Storage and Parking Area: A flexible square-like space with perimeter storage units of varied sizes, capable of housing machinery, vehicles, and tools. Its center remains open for circulation and multiuse activities.


An external staircase leads to the roof, which doubles as a viewing platform (mirador) — a place where residents and visitors can appreciate the expansive natural scenery, reinforcing the project’s name and purpose.

Architectural Vision
Mirador House is more than a shelter or storage building. It is designed as an architectural piece that harmonizes with its environment, emphasizing functional clarity, material honesty, and spatial openness. By sitting atop the slope, the house becomes both a lookout point and a protective shelter, balancing privacy and exposure.

This minimal yet robust approach reflects S-AR’s design philosophy, where architecture serves as a pragmatic solution while celebrating its relationship with nature.

Materials and Construction
- Structure: Exposed reinforced concrete
- Partitions: Exposed concrete block
- Openings: Glass enclosures for residential areas
- Access: Metal gates for garage and storage spaces
These materials were chosen for their durability, low maintenance, and ability to age gracefully within the landscape.


All the photographs are works of Ana Cecilia Garza Villarreal, C129
Popular Articles
Popular articles from the community
Louis Malle Cinema: A Limestone Cultural Landmark Revitalizing Community Life in Prayssac
Limestone cinema extension with public forecourt, blending heritage and modern design to create flexible cultural spaces and strengthen community interaction.
Flamboyant House by Juliana Camargo + Prumo Projetos
Modern Brazilian house integrating existing tree, pool, and volumes with glass, wood, and transitional spaces blending interior, exterior, and landscape seamlessly.
Atelier Macri Concept Store Interior Design by CASE-REAL
Atelier Macri store features a "ko" counter, walnut wood details, cork displays, blending retail, gallery, and seamless customer experiences.
Treehouse Apartment: A Warm Timber Interior Blending Craft, Play, and Contemporary Living
Warm timber apartment with integrated treehouse, combining natural materials, craftsmanship, and playful design to create a flexible, family-oriented living environment.
Similar Reads
You might also enjoy these articles
The Ken Roberts Memorial Delineation Competition (Krob)
As the most senior architectural drawing competition currently in operation anywhere in the world, it draws hundreds of entries each year, awarding the very best submissions in a series of medium-based categories.
Waterfront Redevelopment and Urban Revitalization in Mumbai: Forging a New Dawn for Darukhana
A transformative waterfront redevelopment project reimagining Darukhana’s shipbreaking heritage into an inclusive urban future.
OUT-OF-MAP: A Call for Postcards on Feminist Narratives of Public Space
Rhizoma Design and Research Lab invites artists, designers, architects, researchers, and students to reflect on how feminist perspectives can reshape public space. Selected works will be exhibited in Barcelona, October 2026. Submissions open until 15 April 2026.
Documentation Work on Buddhist Wooden Temple
Architectural syncretism and cultural hybridity: A comparative study of the Buddhist temples in Chattogram Hill tracks
Explore Architecture Competitions
Discover active competitions in this discipline
The International Standard for Design Portfolios
The Global Benchmark for Architecture Dissertation Awards
The Global Benchmark for Graduation Excellence
Challenge to reimagine the Iron Throne
Comments (0)
Please login or sign up to add comments
No comments yet. Be the first to comment!