Miyan Residential Building by Pi Architects: A New Approach to Multi-Level Urban Residential Architecture
A bold reimagining of urban housing, Miyan Building explores multi-level living through terraces, spatial variety, and facade articulation.
Redefining Vertical Living in Mashhad
Located along the bustling Kalantari Highway in Mashhad, Iran, the Miyan Residential Building by Pi Architects is a bold and thoughtful exploration of multi-level urban residential architecture. Completed in 2024, the 3,400-square-meter structure stands as a reinterpretation of dense city living, using architectural variety and volumetric innovation to address privacy, outdoor connection, and energy efficiency in a high-density environment.




Challenging Conventional Urban Housing
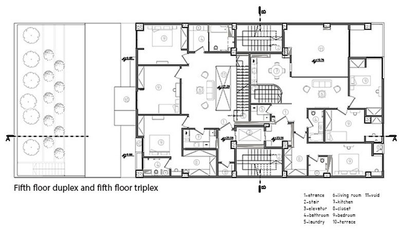
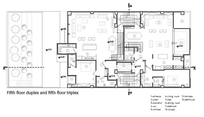
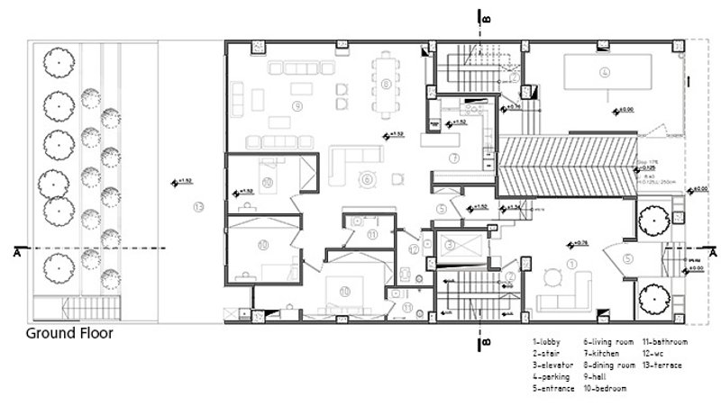
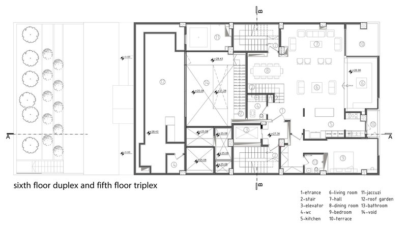
The nine-unit project departs from traditional housing typologies by offering five unique floor plans tailored to different spatial experiences and user preferences. Rather than focusing solely on square footage, the design prioritizes livability, spatial diversity, and the dynamic relationship between public and private life. Each unit is crafted as a distinct architectural experience, allowing residents to choose based on their lifestyle and the kind of space they wish to inhabit.




Volumetric Breaks and Spatial Innovation
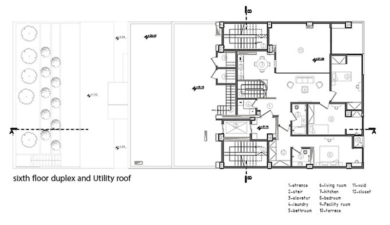
A key design element of the Miyan Residential Building is its intentional volumetric break at the building’s midpoint. This architectural gesture separates the structure both visually and spatially, resulting in a compelling mix of unit types including two duplexes, one triplex, and three units with fragmented, split-level layouts. This approach brings complexity and depth to the building's form, fostering a more intimate and multi-dimensional residential experience.



Functional Terraces as Urban Relief
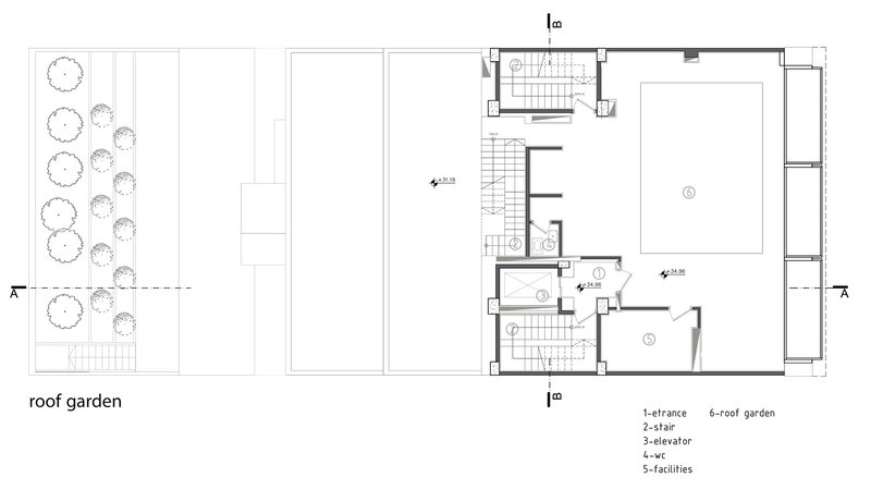
On the southern façade, deeply recessed terraces have been integrated into the building mass. These semi-open spaces provide a rare connection to nature in an urban context, offering both usability and privacy. The design frames views of the southern mountains and the lush greenery of Malekabad Garden to the north, establishing a strong indoor-outdoor dialogue that enhances well-being and natural ventilation. These terraces function as transitional buffers between the interior and exterior, amplifying the residents’ sensory engagement with the environment.



Layered Public and Private Zones
The internal layout is organized to create a clear separation between public and private spaces. This subtle zoning allows residents to preserve their privacy within personal spaces while engaging with communal areas only when necessary, such as hosting visitors. By reducing circulation through public areas, the design supports both energy efficiency and a more peaceful daily routine.




Architectural Identity Through Façade and Entrance
The building’s façade departs from the norm with a carefully articulated three-dimensional treatment. This design decision highlights the differences between duplex, triplex, and standard units while rejecting the flatness of typical residential exteriors. At the entrance, two sunken gardens linked to the main lobby through a suspended staircase offer an expressive, welcoming gesture. This entry experience forms a visual and spatial transition from the urban street to the serene interior, reinforcing the building’s distinct identity.



Responding to Urban Density with Design Clarity
Miyan Residential Building is not just a response to the challenges of urban housing; it is a vision of what future city living can be. By reimagining the building block through multi-level units, integrated terraces, and volumetric breaks, Pi Architects have introduced a dynamic and human-centered alternative to conventional apartment buildings. The project emphasizes architectural quality, energy-conscious living, and the nuanced needs of contemporary residents in dense metropolitan areas.


A Model for Multi-Level Urban Residential Architecture
Through its innovative spatial logic, material articulation, and strong connection to context, the Miyan Residential Building sets a new benchmark in multi-level urban residential architecture. It demonstrates how architectural diversity and three-dimensional design can enhance livability, sustainability, and user experience in high-density urban settings.


All Photographs are works of diman studio
Popular Articles
Popular articles from the community
Alton Cliff House: A Harmonious Retreat by f2a Architecture in Lake Country, Canada
Alton Cliff House blends corten steel, prefabrication, and sustainable design, creating a luxurious, energy-efficient retreat perched on Canadian cliffs.
Fifth NRE Jazz Club – De Bever Architecten: Eindhoven’s Revitalized Cultural Hub
Historic gas factory transformed into Fifth NRE Jazz Club blending modern sustainability, jazz culture, dining, and heritage architecture seamlessly.
Gads Hill Early Learning Center by JGMA: Adaptive Reuse Shaping Community-Focused Educational Architecture
Adaptive reuse transforms fragmented structure into vibrant early learning center with playful façade, natural light, and community-focused sustainable design.
Similar Reads
You might also enjoy these articles
Free Architecture Competitions You Can Enter Right Now
No entry fees, real prizes. Here are the best free architecture competitions open for submissions in 2026.
Top 15 Architecture Competitions to Enter in 2026
From student-friendly idea competitions to prestigious international awards, here are the best architecture competitions open for entries in 2026. Updated regularly.
DIY & Engineering in Computational Design : Enter the BeeGraphy Design Awards
Showcase Your Creativity with Computational Design and Open Source Projects

Innovative Design Solutions: Award-Winning Projects from Recent Architecture Competitions
Exploring award-winning architectural projects shaping the future of design, sustainability, and community.
Explore Architecture Competitions
Discover active competitions in this discipline
The International Standard for Design Portfolios
The Global Benchmark for Architecture Dissertation Awards
The Global Benchmark for Graduation Excellence
Challenge to reimagine the Iron Throne
Comments (0)
Please login or sign up to add comments
No comments yet. Be the first to comment!