Modern Apartment Renovation: The Transformation of Guarapari Apartment by Arquipélago Arquitetos and Pianca Arquitetura
Renovating a 1970s São Paulo apartment, blending modern updates with original modernist design for a young family's contemporary urban living.
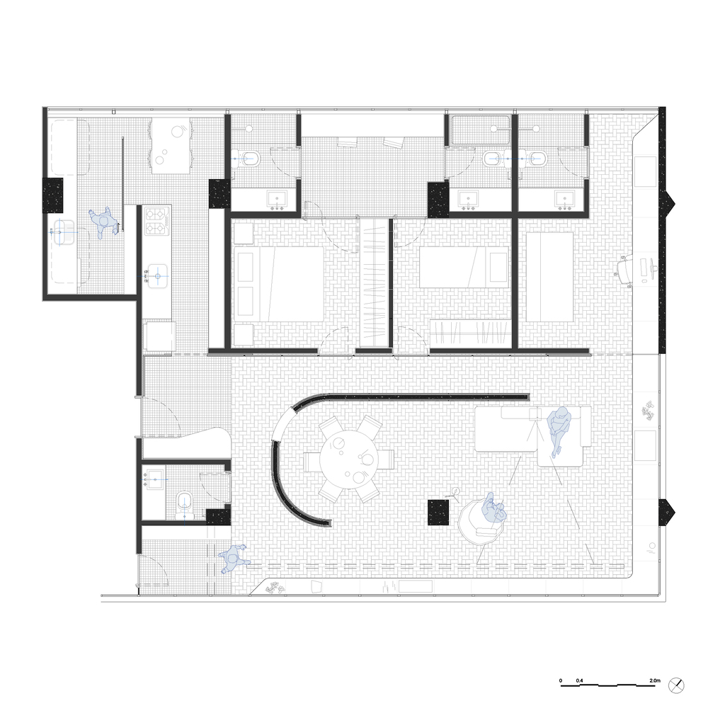
In the heart of São Paulo, the Guarapari Apartment stands as a testament to the timeless appeal of modernist architecture and the possibilities of contemporary renovation. Undertaken by Arquipélago Arquitetos and Pianca Arquitetura, this project aimed to rejuvenate a 1970s dwelling designed by the renowned architect Ruy Ohtake, tailoring it to the lifestyle of a modern young family.


Embracing the Legacy with Modern Updates
Restoring Original Floor Plans with Contemporary Needs
The renovation paid homage to Ohtake's visionary design by restoring the original floor plan while integrating specific updates to enhance functionality and aesthetic appeal. This delicate balance between preservation and modernization lies at the heart of the project, showcasing the potential of modern apartment renovation in respecting architectural heritage while adapting to current demands.



A New Approach to Materiality
A significant aspect of the renovation involved reimagining the apartment's material palette. The iconic curved wall, which defines the dining and living area, was re-envisioned with tauari wood panels, creating a warm and inviting ambiance. This design choice, coupled with the strategic introduction of an amber film on the windows, bathes the living spaces in a soft, warm glow, highlighting the satin white surfaces and wooden furnishings.



Detailed Design Elements Enhancing Modern Living
Integrating Functional Aesthetics
The renovation introduces anodized aluminum elements, such as a suspended linear lamp and a dining table, blending functionality with sleek modern aesthetics. A discreet passageway now connects the dining area to the kitchen, enhancing the flow between spaces without compromising the apartment's architectural integrity.




Textural Contrasts and Color Accents
The project embraces textural contrasts, from the rough ceiling texture reminiscent of São Paulo's domestic architecture to the smooth benches and pink ceramic tiles on the intimate balcony. These choices not only pay tribute to the apartment's origins but also inject a fresh, playful energy into the space.







A Blueprint for Modern Apartment Renovation
The Guarapari Apartment renovation by Arquipélago Arquitetos and Pianca Arquitetura exemplifies how modern apartment renovation can breathe new life into historic dwellings. By thoughtfully blending original design elements with contemporary updates, the project offers a vibrant living space that respects its architectural legacy while meeting the needs of today's urban families. This transformation serves as inspiration for those looking to navigate the challenges of renovating modernist architecture in urban environments.





All photographs are work of Pedro Kok
Popular Articles
Popular articles from the community
Marvila Apartment Renovation in Lisbon: A Bright Minimalist Attic Transformation by KEMA Studio
Bright attic transformed into minimalist Lisbon apartment with skylights, sustainable materials, open plan layout, and industrial-inspired interior design elements.
Filtering Space: A Gradual Spatial Experience
From urban intensity to spatial calm.
Rede Arquitetos Builds an Open-Air School in Fortaleza That Doubles as a Neighborhood Living Room
Educar II SESC-CE folds sports, dance, and community gathering into a courtyard campus wrapped in mesh and tropical color.
Similar Reads
You might also enjoy these articles
Filtering Space: A Gradual Spatial Experience
From urban intensity to spatial calm.
The Ken Roberts Memorial Delineation Competition (Krob)
As the most senior architectural drawing competition currently in operation anywhere in the world, it draws hundreds of entries each year, awarding the very best submissions in a series of medium-based categories.
Waterfront Redevelopment and Urban Revitalization in Mumbai: Forging a New Dawn for Darukhana
A transformative waterfront redevelopment project reimagining Darukhana’s shipbreaking heritage into an inclusive urban future.
OUT-OF-MAP: A Call for Postcards on Feminist Narratives of Public Space
Rhizoma Design and Research Lab invites artists, designers, architects, researchers, and students to reflect on how feminist perspectives can reshape public space. Selected works will be exhibited in Barcelona, October 2026. Submissions open until 15 April 2026.
Explore Architecture Competitions
Discover active competitions in this discipline
The International Standard for Design Portfolios
The Global Benchmark for Architecture Dissertation Awards
The Global Benchmark for Graduation Excellence
Challenge to reimagine the Iron Throne
Comments (0)
Please login or sign up to add comments
No comments yet. Be the first to comment!