Modern Brazilian Architecture: Unveiling the Manacá House by VAGA
The Manacá House by VAGA in Brazil merges modern architecture with natural elements, offering innovative design and environmental integration.
In the realm of modern Brazilian architecture, the Manacá House stands out as a pristine example of how contemporary design can harmoniously blend with natural surroundings. Located in Cesário Lange, São Paulo, this residence reflects the innovative spirit of VAGA Arquitetura, emphasizing a deep connection with its environment.




Architectural Vision and Design Strategy
Strategic Use of Space and Natural Integration
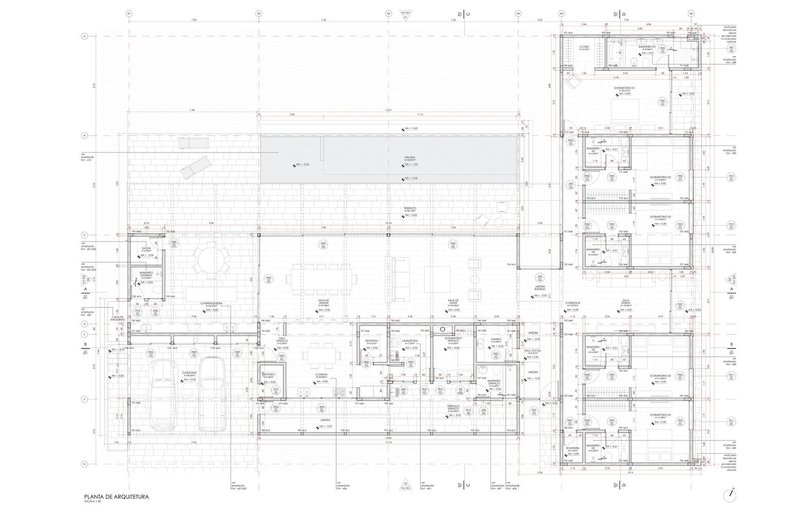
The design of Manacá House is a thoughtful response to its corner lot setting, incorporating various pre-existing natural elements to enhance both aesthetic appeal and functional use. The architects crafted the space to foster an intimate dialogue between the home’s interior and the lush landscape outside, promoting privacy while maximizing scenic views.




Core Structural Elements
The architectural plan is centered around three main cores that define the spatial distribution of the house. These include a service area that aligns with the street for accessibility, a social hub that opens to panoramic views of the lake and garden, and a private zone that ensures seclusion for the bedrooms, oriented towards a serene private garden.




Key Features of Manacá House
Innovative Roof Design
A standout feature of the Manacá House is its metal roof, which not only serves as a critical structural component but also as a visual connector between the house’s two primary volumes. This roof extends over the social areas, creating expansive eaves that shield the interior from the tropical sun, while enhancing the vertical space within the social gathering areas.




Environmental Considerations and Material Use
Embracing modern Brazilian architecture principles, the house incorporates a metal structure combined with masonry walls to optimize construction efficiency and sustainability. The choice of materials reflects a commitment to low-cost, high-quality construction that is both aesthetically pleasing and environmentally responsible.






Integration with the Landscape
Seamless Outdoor Connectivity
Manacá House is designed to ensure that each living space maintains a strong connection to the outdoors. Large windows and strategically placed openings allow natural light to flood the interior spaces, blurring the boundaries between inside and out. The intimate garden not only enhances privacy but also brings the cooling and calming qualities of nature into the home.





A Model of Modern Brazilian Architecture
Manacá House by VAGA is more than just a residence; it's a testament to the possibilities of modern Brazilian architecture. With its innovative use of space, integration with nature, and thoughtful material selection, it sets a standard for future developments within the region. This project successfully demonstrates how architecture can respect and enhance its natural surroundings while providing a functional and beautiful living space.









All the photographs are work of Carolina Lacaz
Popular Articles
Popular articles from the community
Gads Hill Early Learning Center by JGMA: Adaptive Reuse Shaping Community-Focused Educational Architecture
Adaptive reuse transforms fragmented structure into vibrant early learning center with playful façade, natural light, and community-focused sustainable design.
Alton Cliff House: A Harmonious Retreat by f2a Architecture in Lake Country, Canada
Alton Cliff House blends corten steel, prefabrication, and sustainable design, creating a luxurious, energy-efficient retreat perched on Canadian cliffs.
Atelier Macri Concept Store Interior Design by CASE-REAL
Atelier Macri store features a "ko" counter, walnut wood details, cork displays, blending retail, gallery, and seamless customer experiences.
Inverted Architecture Installation by Studio Link-Arc: Exploring the Intersection of Architecture and Living Organisms
Inverted Architecture Installation by Studio Link-Arc blends mycelium, sustainability, inverted design, ecological cycles, and urban adaptive architecture in Shenzhen.
Similar Reads
You might also enjoy these articles
Free Architecture Competitions You Can Enter Right Now
No entry fees, real prizes. Here are the best free architecture competitions open for submissions in 2026.
Top 15 Architecture Competitions to Enter in 2026
From student-friendly idea competitions to prestigious international awards, here are the best architecture competitions open for entries in 2026. Updated regularly.
DIY & Engineering in Computational Design : Enter the BeeGraphy Design Awards
Showcase Your Creativity with Computational Design and Open Source Projects

Innovative Design Solutions: Award-Winning Projects from Recent Architecture Competitions
Exploring award-winning architectural projects shaping the future of design, sustainability, and community.
Explore Architecture Competitions
Discover active competitions in this discipline
The International Standard for Design Portfolios
The Global Benchmark for Architecture Dissertation Awards
The Global Benchmark for Graduation Excellence
Challenge to design mud housing for contemporary communities
Comments (0)
Please login or sign up to add comments
No comments yet. Be the first to comment!