Modern Coffee Shop Design: A Case Study of Demer Coffee in Busan
Explore the innovative design of Demer Coffee in Busan, blending modern aesthetics with historical context in a vibrant urban setting.
The charm of modern coffee shop design often lies in its ability to integrate unique architectural elements with functional spaces tailored for social interaction and business activities. A compelling illustration of this is Demer Coffee, located in the historic Jungang-dong area of Busan, South Korea. Designed by 'Design by 83,' this coffee shop showcases how modern design can enhance a local narrative and provide a welcoming space for community interaction.


Historical Context and Inspiration
The Significance of Location
Demer Coffee is situated in front of the iconic 40-Step Stairway in Jungang-dong, a site steeped in the poignant history of the Korean War. This area was once a shantytown where refugees lived and traversed the stairway daily. This historical layer adds depth to the coffee shop's location, making it a modern landmark infused with historical narratives.



Naming and Symbolism
The name 'Demer,' which translates to 'of the sea' in French, reflects Busan's identity as a maritime city. This thematic connection is not only a nod to the local culture but also enhances the coffee shop’s identity, tying it back to its coastal roots and the historical significance of its location.


Architectural Design Elements
Interior Design: Creating a Warm Ambiance
The interior of Demer Coffee is a testament to modern design principles that emphasize warmth and comfort. The use of an ivory color palette, complemented by wooden materials and finishes, crafts an inviting atmosphere. Cool-toned galvanized steel and translucent polycarbonate are used effectively to hint at the maritime theme, while blue acrylic and furniture echo the colors of the sea.


Unique Layout Challenges
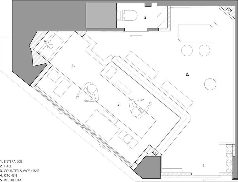
The trapezoid-shaped layout of Demer Coffee presented unique design challenges. The architects utilized glass in the diagonal sections to maintain a seamless connection with the outdoor environment, positioning key functional areas like the bar within these sections. This strategic use of space ensures that the coffee shop remains connected to its urban surroundings while optimizing interior flow.


Exterior Design: Engaging with the Public
The exterior design of Demer Coffee aims to project expertise and approachability. A prominently placed coffee machine near large windows encourages interaction between baristas and passersby. At night, signage crafted from translucent polycarbonate lights up in blue, enhancing the shop's visibility and emphasizing its branding.


The Role of Modern Design in Coffee Shops
Demer Coffee by Design by 83 exemplifies how modern coffee shop design can serve as a focal point for both community gathering and architectural interest. By blending historical elements with modern design techniques, the project not only creates a functional space but also contributes to the cultural tapestry of Busan.
The thoughtful integration of design elements in Demer Coffee makes it a prime example of how modern architecture can transform ordinary spaces into extraordinary ones, providing not just a place for enjoying coffee, but a space that resonates with historical and cultural significance.

All the photographs are work of Donggyu Kim
Popular Articles
Popular articles from the community
Alton Cliff House: A Harmonious Retreat by f2a Architecture in Lake Country, Canada
Alton Cliff House blends corten steel, prefabrication, and sustainable design, creating a luxurious, energy-efficient retreat perched on Canadian cliffs.
Free Architecture Competitions You Can Enter Right Now
No entry fees, real prizes. Here are the best free architecture competitions open for submissions in 2026.
Marvila Apartment Renovation in Lisbon: A Bright Minimalist Attic Transformation by KEMA Studio
Bright attic transformed into minimalist Lisbon apartment with skylights, sustainable materials, open plan layout, and industrial-inspired interior design elements.
20 Most Popular Commercial Architecture Projects of 2025
From sustainable market concepts to heritage factories, the commercial buildings and proposals that drew the most attention on uni.xyz this year.
Similar Reads
You might also enjoy these articles
Filtering Space: A Gradual Spatial Experience
From urban intensity to spatial calm.
The Ken Roberts Memorial Delineation Competition (Krob)
As the most senior architectural drawing competition currently in operation anywhere in the world, it draws hundreds of entries each year, awarding the very best submissions in a series of medium-based categories.
Waterfront Redevelopment and Urban Revitalization in Mumbai: Forging a New Dawn for Darukhana
A transformative waterfront redevelopment project reimagining Darukhana’s shipbreaking heritage into an inclusive urban future.
OUT-OF-MAP: A Call for Postcards on Feminist Narratives of Public Space
Rhizoma Design and Research Lab invites artists, designers, architects, researchers, and students to reflect on how feminist perspectives can reshape public space. Selected works will be exhibited in Barcelona, October 2026. Submissions open until 15 April 2026.
Explore Architecture Competitions
Discover active competitions in this discipline
The International Standard for Design Portfolios
The Global Benchmark for Architecture Dissertation Awards
The Global Benchmark for Graduation Excellence
Challenge to reimagine the Iron Throne
Comments (0)
Please login or sign up to add comments
No comments yet. Be the first to comment!