Modern Courtyard Homes in Arizona: A Deep Dive into Mockingbird House by The Ranch Mine
Exploring Mockingbird House: A modern, courtyard-style home in Arizona that merges desert beauty with contemporary design.
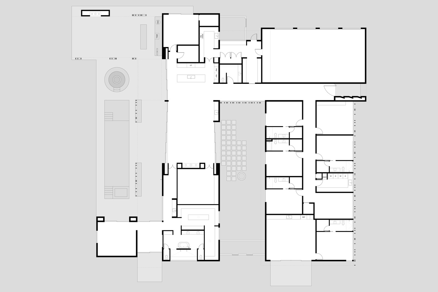
Nestled in the scenic environs of Paradise Valley, Arizona, Mockingbird House stands as a testament to the innovative design approach of The Ranch Mine. This courtyard-style home, sprawling over 8151 square feet, seamlessly merges the rugged beauty of the desert with contemporary living standards. Completed in 2023 and captured through the lens of Dan Ryan Studio, this architectural masterpiece redefines the concept of indoor-outdoor living in the desert landscape.



Design Inspiration and Concept
Mockingbird House draws inspiration from the resilient ocotillo plants native to the desert, incorporating striking metal fins on its exterior. These fins not only serve as a visual spectacle but also offer shade from the harsh sun and privacy from the adjacent street. The use of solid travertine masses pays homage to the surrounding mountains, grounding the residence within its natural context with earthy tones and textured surfaces.










Embracing the Courtyard Style
Unlike typical large residences, Mockingbird maintains a modest height of 15 feet, ensuring the preservation of panoramic mountain views. The architectural plan forms a "C" around a central courtyard, with the great room acting as the core of the home. This room features three pocketing multi-slide doors that connect to both the courtyard and the backyard, facilitating a seamless blend of indoor and outdoor spaces.




The Heart of Outdoor Living
The backyard serves as a comprehensive retreat, boasting an expansive covered patio with a full kitchen, dining, and living areas. A unique feature is the circular sunken fire pit, offering an intimate setting under the stars. The design incorporates a lap pool extending towards the primary suite, complete with a Baja shelf and hot tub for ultimate relaxation.








Interior Design and Material Palette
The interior design of Mockingbird House is characterized by organic and neutral tones, allowing the natural landscape to take center stage. Key elements include a massive steel-clad fireplace in the great room and the extensive use of exposed aggregate concrete and wood cabinetry. The primary bathroom is distinguished by skylights and high windows, introducing natural light that dynamically changes the ambiance throughout the day.
Mockingbird House by The Ranch Mine is a beacon of modern courtyard living in Arizona, showcasing how architecture can harmonize with the desert environment while offering a luxurious living experience. This residence not only stands as a private oasis for its inhabitants but also as a significant architectural contribution to Paradise Valley, pushing the boundaries of design and living in harmony with nature.




All Photographs are the work of Dan Ryan Studio
Popular Articles
Popular articles from the community
An Miên Lumière Cafe by xưởng xép, Ho Chi Minh City, Vietnam
An industrial-inspired café where layered steel and warm light create a dynamic, immersive environment shaped by reflection, depth, and perception.
On the Brooks House by Monsoon Collective – A Contemporary Kerala Home Rooted in Tradition
Kerala home blending tradition and modernity with water-inspired design, brick architecture, courtyard planning, and sustainable rainwater harvesting strategies.
Inverted Architecture Installation by Studio Link-Arc: Exploring the Intersection of Architecture and Living Organisms
Inverted Architecture Installation by Studio Link-Arc blends mycelium, sustainability, inverted design, ecological cycles, and urban adaptive architecture in Shenzhen.
Treehouse Apartment: A Warm Timber Interior Blending Craft, Play, and Contemporary Living
Warm timber apartment with integrated treehouse, combining natural materials, craftsmanship, and playful design to create a flexible, family-oriented living environment.
Similar Reads
You might also enjoy these articles
Top 15 Architecture Competitions to Enter in 2026
From student-friendly idea competitions to prestigious international awards, here are the best architecture competitions open for entries in 2026. Updated regularly.
DIY & Engineering in Computational Design : Enter the BeeGraphy Design Awards
Showcase Your Creativity with Computational Design and Open Source Projects

Innovative Design Solutions: Award-Winning Projects from Recent Architecture Competitions
Exploring award-winning architectural projects shaping the future of design, sustainability, and community.
Explore Architecture Competitions
Discover active competitions in this discipline
The International Standard for Design Portfolios
The Global Benchmark for Architecture Dissertation Awards
The Global Benchmark for Graduation Excellence
Challenge to reimagine the Iron Throne
Comments (0)
Please login or sign up to add comments
No comments yet. Be the first to comment!