Modern Minimalist House Design in Brazil: Galeriah House by Okha Arquitetura e Design
Explore Galeriah House, a minimalist masterpiece in Brazil that merges sculptural architecture with seamless indoor-outdoor living.
Galeriah House, designed by Okha Arquitetura e Design, is a contemporary residential masterpiece located in São José dos Campos, Brazil. Completed in 2024, this 880-square-meter residence merges sculptural architecture with minimalist aesthetics. Nestled on a flat plot near the Paraíba River, the house was designed to reflect the unique lifestyle needs of its owners, offering an ideal balance between indoor and outdoor living.



The Concept Behind the Design
The inspiration for Galeriah House stemmed from the clients' desire to embrace outdoor spaces, a need amplified during the pandemic. Lead architect Priscila Pereira worked closely with the couple, beginning with the selection of the land, ensuring that every aspect of the house was tailored to their preferences and lifestyle.



A Sculptural Minimalist Aesthetic
Galeriah House is characterized by its unique sculptural form, with projections and internal openings that deviate from traditional right angles. These design elements lend the house an artistic and modern appeal, transforming the facade into a minimalist statement. The interior spaces are designed with seamless fluidity, with each room connecting harmoniously to the expansive leisure area outside.




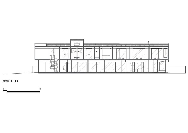
Interior and Exterior Spaces
The residence includes multiple living spaces designed for comfort and versatility. The second floor features a gym with a stunning view of a preserved green area. This gym connects directly to the main suite and, through a spiral staircase, to the sauna and pool on the ground floor.


The house also includes two additional suites to accommodate the couple's children and extended family. A dedicated gallery space serves as a multifunctional area for displaying the couple's private art collection. This space, free of windows or external openings, allows for an undisturbed showcase of their prized pieces.


The outdoor leisure area is the focal point of the residence, featuring a generously sized pool and expansive lounging spaces. The design ensures that all internal rooms open to this area, fostering a seamless transition between indoor and outdoor living.


Privacy and Dynamic Facades
To maintain privacy while embracing openness, the west-facing internal facade incorporates a second skin of aluminum brise modules. These elements create a dynamic facade in constant motion, offering privacy for the bedrooms while allowing airflow and light.


Material Palette and Finishes
Galeriah House employs a minimalist material palette that enhances the sense of cohesion throughout the residence. The entrance features Dekton Radium Industrial by Cosentino in a coffee tone, setting a warm and inviting tone for residents and visitors. Inside, Dekton Aeris covers floors, countertops, and the pool area, providing a light and seamless aesthetic that connects interior and exterior spaces.


The deliberate choice of consistent finishes emphasizes the fluidity of spaces while allowing the furniture arrangement to define functional areas. This approach reinforces the minimalist philosophy that defines the home’s character.

A Modern Home for Contemporary Living
Galeriah House exemplifies modern minimalist house design, blending sculptural beauty with practical functionality. Its thoughtful integration of leisure areas, sustainable elements, and minimalist aesthetics make it a standout example of contemporary Brazilian architecture. By addressing the evolving needs of its residents and embracing innovative design principles, this residence offers a harmonious living experience that is both luxurious and deeply connected to its surroundings.




All Photographs are works of Nelson Kon
Popular Articles
Popular articles from the community
Atelier Macri Concept Store Interior Design by CASE-REAL
Atelier Macri store features a "ko" counter, walnut wood details, cork displays, blending retail, gallery, and seamless customer experiences.
A Contemporary Take on Iranian Residential Architecture
A modern interior design in Mashhad that reinterprets brick, light, and spatial flow to create a warm, contemporary residential architecture.
Louis Malle Cinema: A Limestone Cultural Landmark Revitalizing Community Life in Prayssac
Limestone cinema extension with public forecourt, blending heritage and modern design to create flexible cultural spaces and strengthen community interaction.
Treehouse Apartment: A Warm Timber Interior Blending Craft, Play, and Contemporary Living
Warm timber apartment with integrated treehouse, combining natural materials, craftsmanship, and playful design to create a flexible, family-oriented living environment.
Similar Reads
You might also enjoy these articles
The Ken Roberts Memorial Delineation Competition (Krob)
As the most senior architectural drawing competition currently in operation anywhere in the world, it draws hundreds of entries each year, awarding the very best submissions in a series of medium-based categories.
Waterfront Redevelopment and Urban Revitalization in Mumbai: Forging a New Dawn for Darukhana
A transformative waterfront redevelopment project reimagining Darukhana’s shipbreaking heritage into an inclusive urban future.
OUT-OF-MAP: A Call for Postcards on Feminist Narratives of Public Space
Rhizoma Design and Research Lab invites artists, designers, architects, researchers, and students to reflect on how feminist perspectives can reshape public space. Selected works will be exhibited in Barcelona, October 2026. Submissions open until 15 April 2026.
Documentation Work on Buddhist Wooden Temple
Architectural syncretism and cultural hybridity: A comparative study of the Buddhist temples in Chattogram Hill tracks
Explore Architecture Competitions
Discover active competitions in this discipline
The International Standard for Design Portfolios
The Global Benchmark for Architecture Dissertation Awards
The Global Benchmark for Graduation Excellence
Challenge to reimagine the Iron Throne
Comments (0)
Please login or sign up to add comments
No comments yet. Be the first to comment!