Modern Scandinavian Architecture: Exploring Villa JJ by Metropolis Arkitekter
The article explores Villa JJ, a modern Scandinavian architectural masterpiece blending traditional design with contemporary sustainability and functionality.
Nestled on a cliff in the southern archipelago of Stockholm, Villa JJ by Metropolis Arkitekter offers a profound example of modern Scandinavian architecture. Designed by Caspar von Vegesack, the house integrates effortlessly into its rugged environment. Built in 2022, this 206 m² masterpiece draws inspiration from Sweden’s traditional coastal building styles while embracing contemporary design principles.
Photographed by Mikael Lundblad, Villa JJ beautifully showcases how modern architecture can harmonize with natural surroundings.


Architectural Context and Philosophy
The southern Stockholm archipelago is known for its challenging climate, where harsh rainstorms meet bright sunlight. This natural environment heavily influenced the design approach for Villa JJ. The architects sought to adapt historical building traditions to modern needs.
Historically, local buildings were simple, functional, and clustered together for protection—like fishermen’s sheds or small farms. These structures were typically low, wooden, and weathered to gray or white tones. Villa JJ respects this tradition but reinterprets it through a contemporary lens, focusing on sustainability and minimalism.



Design Concept
Villa JJ is composed of three interconnected buildings:
- Main House: Contains the kitchen, dining, and living areas.
- Secondary Structure: Houses the bedrooms, bathroom, and wardrobe.
- Guest and Utility House: Provides space for guests, technology, and storage.
The spaces between the structures serve as semi-enclosed courtyards, blending indoor and outdoor environments. Glass walls and an Offerdal slate floor create a seamless transition from terrace to interior.



Key Architectural Features
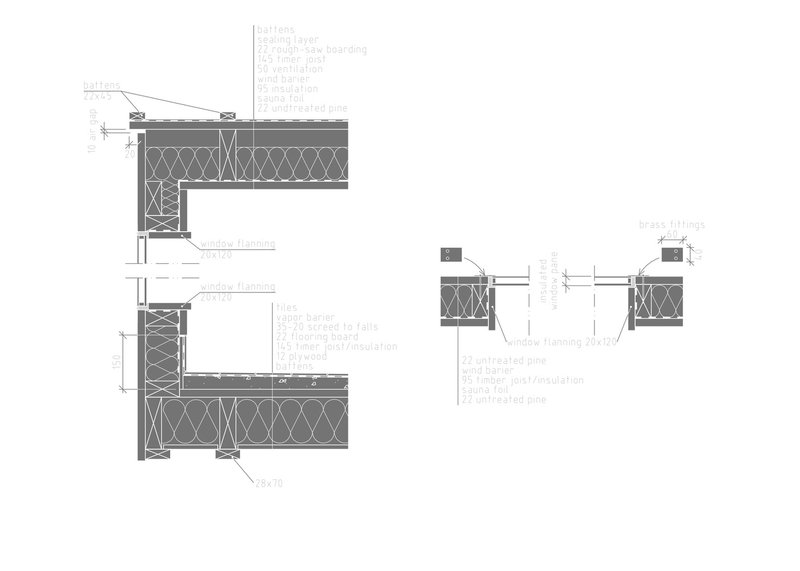
1. Materiality
The villa’s design emphasizes using locally available materials in their simplest forms. Exposed wood, bent sheet metal, and slate are used extensively. The wooden exterior features an untreated finish, allowing the structure to age naturally and blend with the environment over time.
2. Roof Design
A standout feature of Villa JJ is its bold, unlined roof edges. These unfinished cuts expose the rafters, providing both functionality and ornamentation. The extended rafters support water channels made of bent sheet metal, creating dynamic shadows across the façade.
3. Ornamentation Through Functionality
One of the core design philosophies of the project is that beauty should emerge as a natural byproduct of craftsmanship. By showcasing structural elements like rafters and beams, Villa JJ celebrates the raw aesthetics of necessity.



Interior Design
The interior of Villa JJ is a masterclass in minimalism and functional design. Large windows allow natural light to flood the spaces, while providing uninterrupted views of the surrounding forest and shoreline. The neutral palette of wood, slate, and glass creates a calming atmosphere.
Highlights include:
- Open-plan living spaces that enhance communal interaction.
- A kitchen designed with simplicity and utility in mind, featuring open shelving and natural materials.
- Bedrooms that offer intimate views of the rugged landscape, connecting inhabitants with nature.


Environmental Considerations
Sustainability is a key aspect of Villa JJ’s design. By using natural and locally sourced materials, the architects reduced the building’s environmental footprint. The house also incorporates passive design principles, with large windows oriented to optimize natural light and ventilation.


Collaborators and Craftsmanship
Villa JJ was realized with the expertise of several collaborators:
- Structural Engineering: Alf Skelander
- Plumbing Design: Jan Berglund
- Electrical Installations: Tim Gillström
- Construction: Fidior Bygg AB, led by site manager Bosse Andersson
- Custom Interiors: Site-built by Peter Lynch
Each contributor brought a unique skill set, ensuring the project’s seamless execution.



Why Villa JJ Stands Out in Modern Scandinavian Architecture
Villa JJ exemplifies the best of modern Scandinavian architecture. It respects traditional design methods while pushing boundaries, resulting in a home that feels timeless yet innovative. The focus on natural materials, minimalism, and functionality resonates deeply with contemporary architectural ideals.
Villa JJ by Metropolis Arkitekter is more than a house—it’s a tribute to the harmony between architecture and nature. Its thoughtful design, sustainable approach, and timeless beauty make it a standout example of modern Scandinavian architecture. Whether you're an architect, a design enthusiast, or simply seeking inspiration, Villa JJ offers a profound lesson in blending tradition with innovation



All the photographs are work of Mikael Lundblad
Popular Articles
Popular articles from the community
Gunawarman 35: Jakarta's Corner of Quiet Complexity
WOFF's mixed-use building in Jakarta pairs translucent glass block walls with a buff brick cylinder to hold coffee, wellness, and work under one roof.
MAKER architecten Rewire a 1972 Brutalist Dormitory on the VUB Campus as a Living Lab
A modular renovation strategy in Belgium breathes new life into Willy Van Der Meeren's modernist student housing without erasing its concrete bones.
Guangzhou's Twin Towers Interiors Move Like Water
DuShe Architectural Design shapes the lobbies of a massive Guangzhou transit hub with undulating ceilings and deep geological materiality.
Bood Design Bureau Splits a Gilan Residence in Two to Let the Forest In
Double Side House negotiates privacy and openness through interlocking concrete volumes and planted courtyards in northern Iran's humid Caspian lowlands.
Similar Reads
You might also enjoy these articles
Filtering Space: A Gradual Spatial Experience
From urban intensity to spatial calm.
The Ken Roberts Memorial Delineation Competition (Krob)
As the most senior architectural drawing competition currently in operation anywhere in the world, it draws hundreds of entries each year, awarding the very best submissions in a series of medium-based categories.
Waterfront Redevelopment and Urban Revitalization in Mumbai: Forging a New Dawn for Darukhana
A transformative waterfront redevelopment project reimagining Darukhana’s shipbreaking heritage into an inclusive urban future.
OUT-OF-MAP: A Call for Postcards on Feminist Narratives of Public Space
Rhizoma Design and Research Lab invites artists, designers, architects, researchers, and students to reflect on how feminist perspectives can reshape public space. Selected works will be exhibited in Barcelona, October 2026. Submissions open until 15 April 2026.
Explore Architecture Competitions
Discover active competitions in this discipline
The International Standard for Design Portfolios
The Global Benchmark for Architecture Dissertation Awards
The Global Benchmark for Graduation Excellence
Challenge to reimagine the Iron Throne
Comments (0)
Please login or sign up to add comments
No comments yet. Be the first to comment!