Modern School Architecture: Syndal South Primary School by WHDA
Syndal South Primary School exemplifies modern school architecture by integrating flexible learning spaces, sustainable design, and strong community engagement.
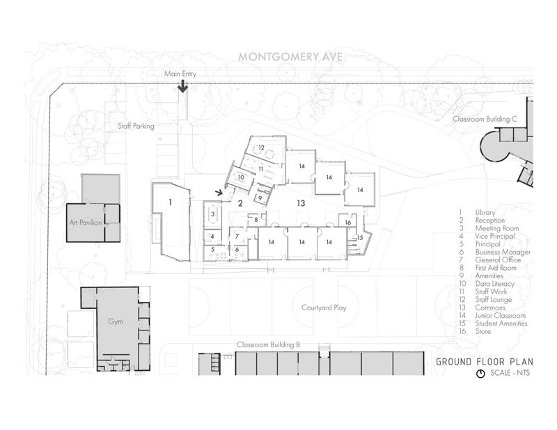
The Syndal South Primary School in Mount Waverley, Australia, designed by WHDA, represents a forward-thinking approach to modern school architecture. This newly constructed Block A replaces an aging structure, creating a dynamic learning environment that prioritizes flexibility, sustainability, and community engagement. The school’s architectural design integrates domestic and civic elements, reinterpreting familiar neighborhood archetypes to foster an inviting, functional, and inclusive educational space.



A Vision for Educational Spaces
The design of Syndal South Primary School reflects a commitment to creating a welcoming educational hub. By blending elements from traditional homes and civic buildings, the architecture bridges the gap between intimate learning spaces and expansive social areas. The school replaces its old asbestos-laden LTC building with a structure that houses administrative offices, junior classrooms, and a publicly accessible library.


The new building is unified under a single roof that pitches north and south, aligning with the surrounding neighborhood and ensuring minimal overshadowing of outdoor play areas. This approach enhances the connection between indoor and outdoor learning environments, reinforcing a seamless transition between structured and informal educational settings.


Integration of Domestic and Civic Architectural Elements
A fundamental aspect of the school’s design is its ability to integrate familiar domestic features into an institutional setting. The concept of the front porch and the verandah is reimagined in the circulation spaces, offering students and staff areas to gather, interact, and engage with the surroundings. The entry forecourt is anchored by the library pavilion, which serves as both a reading space and a community hub, emphasizing the importance of accessibility and openness.


This design strategy enhances the wayfinding experience, ensuring that visitors and students can intuitively navigate key spaces such as the reception, library, meeting rooms, and sports courtyard. The interconnected nature of these spaces fosters a sense of community while allowing for flexible use throughout the day.


Innovative Classroom and Learning Environments
The junior classrooms embrace a hybrid model, combining open-plan learning with traditional structured teaching. Each classroom is directly connected to outdoor learning areas, encouraging a blend of indoor and outdoor educational experiences. The inclusion of play equipment, mud kitchens, and a newly installed yarning circle extends the boundaries of traditional classrooms, creating spaces that facilitate both structured learning and free play.

Adaptability is a key principle in the classroom design. Spaces are configured to accommodate various teaching methods, from independent study to collaborative group discussions. The integration of interactive technologies, such as digital displays for art and literacy activities, further enriches the learning experience, ensuring that students have access to diverse educational tools.

The Commons: A Central Gathering Space
At the heart of the new building is The Commons, a multipurpose space that functions as an indoor gathering area and a collaborative learning environment. Designed as an internal "street" within the junior learning base, this space allows for school assemblies, informal discussions, and group projects.

The entryways to each classroom feature porch-like elements, complete with seating nooks, pinboards for showcasing student work, and storage for personal belongings. This thoughtful design enhances both functionality and engagement, making classrooms feel like an extension of the larger school community.

Sustainable and Community-Oriented Design
Sustainability and community integration play a crucial role in the architectural vision of Syndal South Primary School. The building’s orientation and layout maximize natural light and ventilation, reducing reliance on artificial lighting and climate control systems. By prioritizing environmentally conscious design elements, the school fosters an atmosphere that is both energy-efficient and conducive to student well-being.

The school’s library, designed as a "Living Room" for the community, remains accessible beyond school hours, reinforcing its role as a shared resource. This dual functionality allows the school to serve not only its students but also the broader neighborhood, strengthening ties between education and the local community.

Syndal South Primary School stands as a benchmark for modern school architecture, demonstrating how educational buildings can be both functional and inviting. By incorporating familiar architectural elements, prioritizing flexibility in learning spaces, and fostering a sense of community, WHDA has created an environment that enhances the student experience. With its thoughtful integration of indoor and outdoor learning areas, sustainable design principles, and adaptable classrooms, the school exemplifies a contemporary approach to educational architecture, setting a new standard for future learning environments.

All Photographs are works of Anthony Richardson
Popular Articles
Popular articles from the community
20 Most Popular Office Building Projects of 2025
From biophilic workspaces in India to net-positive energy offices in New Delhi, 20 office building projects that defined architecture in 2025.
Rojkind Arquitectos and Think Parametric Build a Glueless Pavilion from 67 Interlocking Panels
A serpentine fiber-cement installation in Chapultepec Park celebrates a decade of architectural media in Mexico City.
BAST Slots a Four-Story Glass House into a Narrow Gap Between Toulouse Townhouses
In the dense Bonnefoy district, a stepped infill building merges home and office while preserving a majestic hackberry tree.
Takeshi Hosaka Architects Suspends a Concrete Cross Above a Yokohama Cemetery
A 28-square-meter burial renovation in Yokohama lifts the symbol of resurrection into the sky so mourners see it against heaven.
Similar Reads
You might also enjoy these articles
Olio Towers: A Mid-Rise for Performers That Fuses Housing, Rehearsal, and Stage
Located blocks from Houston's Theater District, this modular tower stacks living units around a central performance atrium.
Oasis: Modular Green Housing Carved into Dhaka's Urban Fabric
A shortlisted Plugin Housing entry reclaims unauthorized settlements in Dhaka with stepped concrete volumes, green roofs, and ventilation-driven design.
Black Hole: A Floating Megastructure for the Post-Physical Era
Emiliano Mazzarotto envisions a spherical, self-scaling arena where e-sports, digital hotels, and holographic stadiums replace traditional public space.
Compact & Sustainable Living in Piraeus: A Four-Level Family Home Built Around Light and Air
A narrow townhouse in one of Greece's densest port cities uses a central atrium and passive strategies to house three generations under one roof.
Explore Architecture Competitions
Discover active competitions in this discipline
The International Standard for Design Portfolios
The Global Benchmark for Architecture Dissertation Awards
The Global Benchmark for Graduation Excellence
Challenge to reimagine the Iron Throne
Comments (0)
Please login or sign up to add comments
No comments yet. Be the first to comment!