Modernist Apartment Renovation in Athens: Transforming the Three Object Apartment
The article details the renovation of a modernist apartment in Athens, focusing on flexibility, light optimization, and innovative design elements.
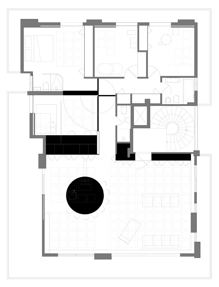
The Three Object Apartment, redesigned by DeMachinas and Elina Loukou, stands as a testament to the innovative transformation of a first-floor flat in a modernist building in Athens, Greece. Facing the challenges of a densely packed urban area and limited natural light, the architects embarked on a journey to redefine the living space, emphasizing openness and functional aesthetics.




Rediscovering the Structure's Core
The renovation peels back layers of the past, exposing the building's skeleton to reveal and celebrate its original modernist architecture. This process not only recaptures the essence of the building's design but also aligns with the current homeowners' desires for a space that resonates with architectural integrity and simplicity.





Innovative Design Elements: Function Meets Art
Central to the apartment's transformation are three bespoke architectural elements that blend functionality with social interaction:
- The Round Kitchen Island: More than just a culinary workspace, this feature doubles as a dining area, fostering social cooking experiences and gatherings.
- The Storage Block: Seamlessly integrating storage and utility areas, this element maintains the aesthetic flow while providing essential functionality.
- The Cross Partition: This inventive system uses pivot panels to dynamically define or merge living spaces, offering flexibility that adapts to the family's changing needs.




Material Reuse and Aesthetic Integration
During the renovation, original materials such as marble flooring were repurposed to create terrazzo surfaces, adding both historical continuity and a touch of modernity. This thoughtful approach not only preserves but also enhances the character of the space through a sustainable lens.





A Model for Modern Urban Living
The Three Object Apartment exemplifies how modernist principles can be revitalized through contemporary design to meet today's lifestyle demands. It stands as a model for urban apartment renovations, offering valuable insights into the use of space, light, and materials in densely populated city environments.


All photographs are work of Vassilis Makris
Popular Articles
Popular articles from the community
Alton Cliff House: A Harmonious Retreat by f2a Architecture in Lake Country, Canada
Alton Cliff House blends corten steel, prefabrication, and sustainable design, creating a luxurious, energy-efficient retreat perched on Canadian cliffs.
Atelier Macri Concept Store Interior Design by CASE-REAL
Atelier Macri store features a "ko" counter, walnut wood details, cork displays, blending retail, gallery, and seamless customer experiences.
Inverted Architecture Installation by Studio Link-Arc: Exploring the Intersection of Architecture and Living Organisms
Inverted Architecture Installation by Studio Link-Arc blends mycelium, sustainability, inverted design, ecological cycles, and urban adaptive architecture in Shenzhen.
Similar Reads
You might also enjoy these articles
Free Architecture Competitions You Can Enter Right Now
No entry fees, real prizes. Here are the best free architecture competitions open for submissions in 2026.
Top 15 Architecture Competitions to Enter in 2026
From student-friendly idea competitions to prestigious international awards, here are the best architecture competitions open for entries in 2026. Updated regularly.
DIY & Engineering in Computational Design : Enter the BeeGraphy Design Awards
Showcase Your Creativity with Computational Design and Open Source Projects

Innovative Design Solutions: Award-Winning Projects from Recent Architecture Competitions
Exploring award-winning architectural projects shaping the future of design, sustainability, and community.
Explore Architecture Competitions
Discover active competitions in this discipline
The International Standard for Design Portfolios
The Global Benchmark for Architecture Dissertation Awards
The Global Benchmark for Graduation Excellence
Challenge to design mud housing for contemporary communities
Comments (0)
Please login or sign up to add comments
No comments yet. Be the first to comment!