MONOCHROME in Fukuoka: A Beacon of Innovative Residential Design by SAKO Architects
Explore MONOCHROME in Fukuoka, a revolutionary residential complex by SAKO Architects, blending innovative design with urban privacy solutions.
In the heart of Fukuoka, a new paradigm in residential architecture is being set by the MONOCHROME Residential Complex, designed by SAKO Architects. This project exemplifies how innovative residential design can transform urban living, providing both aesthetic appeal and functional solutions to common urban living challenges.




Design Philosophy and Architectural Innovation
Privacy and Urban Adaptation
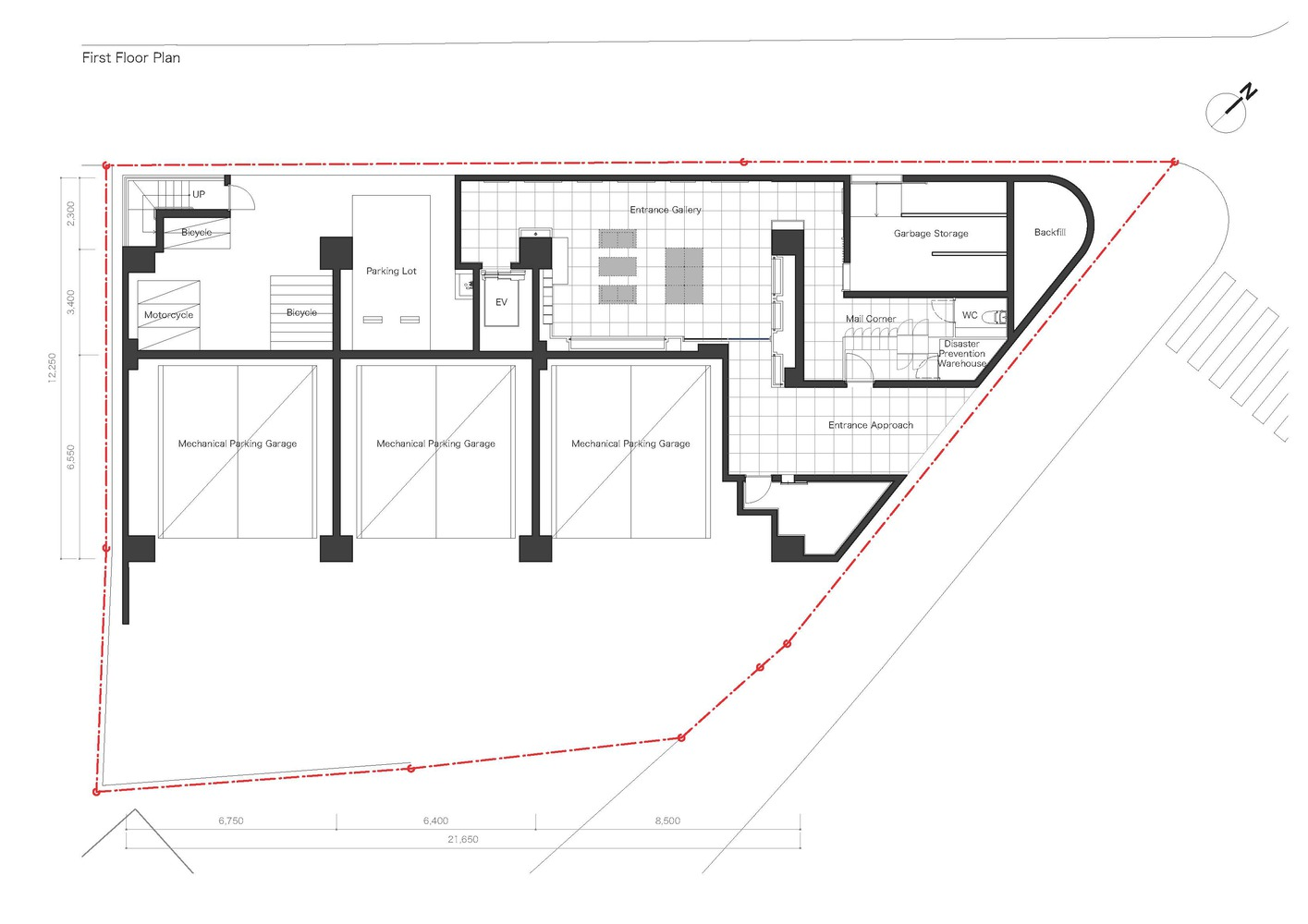
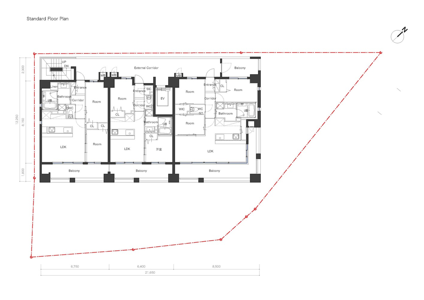
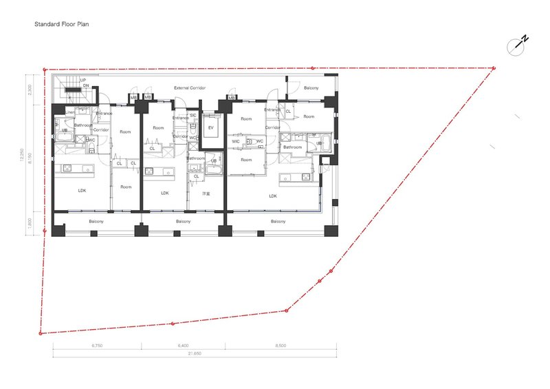
Located just minutes from a bustling subway station, the MONOCHROME complex addresses the privacy challenges inherent in dense urban environments. Traditional apartment layouts often fail to consider the necessity for privacy, leading to the permanent closure of curtains and underutilization of balconies. In response, SAKO Architects crafted a façade that minimizes exposure while maximizing utility and aesthetic value.




Picture Window Concept
The building features a unique "picture window" design, where the façade presents a checkerboard pattern of windows that carefully modulates the boundary between interior and exterior spaces. These windows extend the living space into semi-indoor balconies, offering controlled engagement with the urban surroundings and additional room-like areas that enrich residential life.




Structural Innovations and Interior Continuity
Inverse Beam Structure
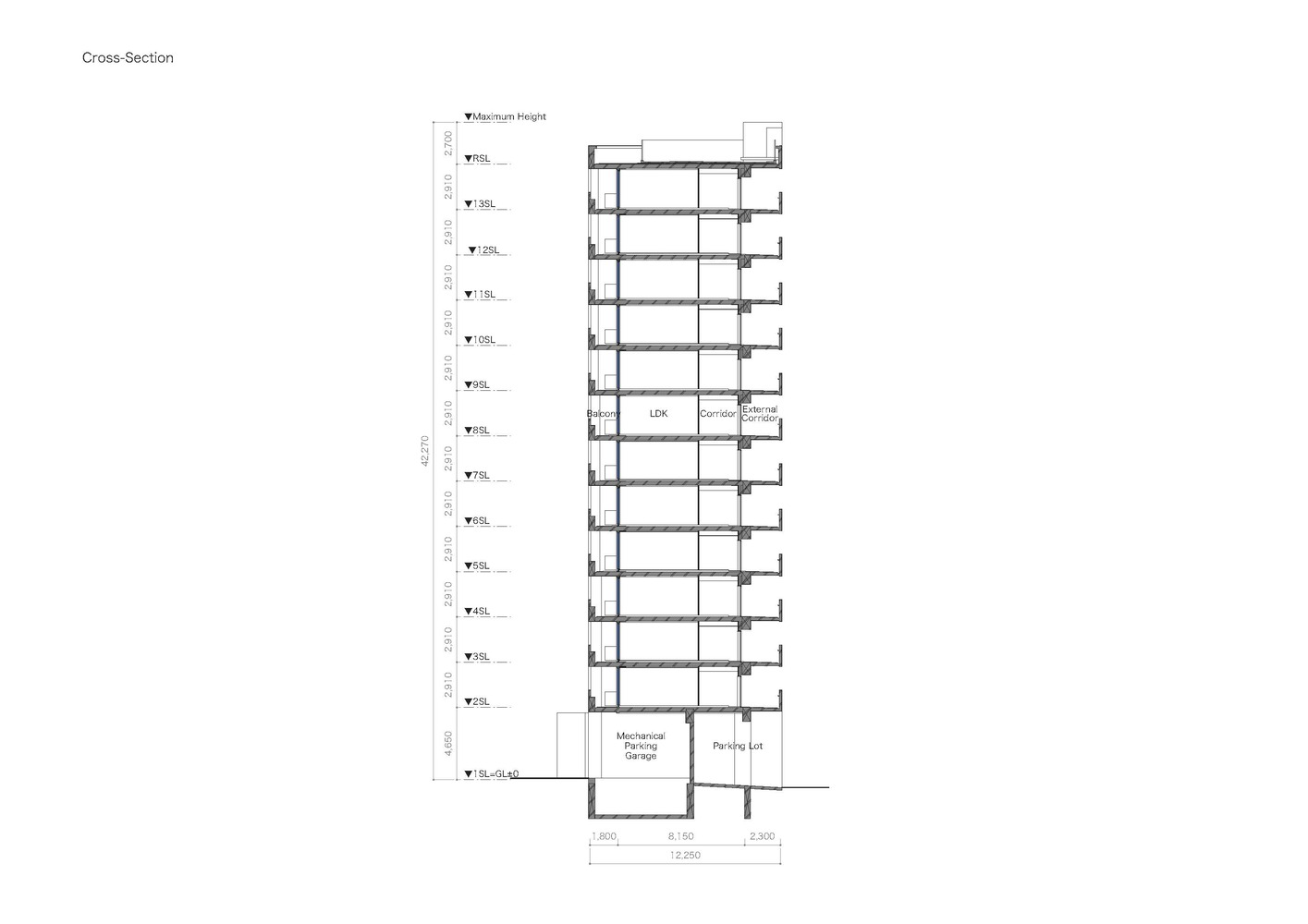
A significant architectural innovation in the MONOCHROME complex is the inverse beam structure, which allows for ceiling-height windows that seamlessly integrate the balcony with the internal living areas. This design choice not only enhances the spatial continuity but also serves as a platform for residents to engage in hobbies protected from the elements, such as gardening.




Aesthetic and Functional Elements
Anonymous Volume and Aesthetic Detailing
The exterior of the building utilizes a sophisticated monochrome theme, with surfaces painted in stark white contrasted by deep black elements that mask utilities like air conditioning units and downspouts. This design approach helps maintain a clean and uncluttered appearance, contributing to the building’s mystique and appeal.


Ground Floor and Entrance Design
The ground floor contrasts sharply with the upper levels, featuring raw concrete and cedar boards that anchor the building’s visual identity. The sharply angled site resembles the bow of a ship, enhancing the building's dynamic form. Cherry trees planted at this level provide a soothing green counterpoint to the monochrome theme.



Redefining Urban Residential Architecture
The MONOCHROME Residential Complex in Fukuoka is more than just a housing development; it is a landmark of innovative residential design that redefines what modern urban living can be. With its unique approach to privacy, aesthetic coherence, and structural innovation, SAKO Architects have created a space that is both a refuge from and a connection to the urban environment.


All photographs are work of Yousuke Harigane
Popular Articles
Popular articles from the community
A Contemporary Take on Iranian Residential Architecture
A modern interior design in Mashhad that reinterprets brick, light, and spatial flow to create a warm, contemporary residential architecture.
Solar Steam: A Climate-Responsive Architecture That Redefines the Monument
A climate-responsive memorial architecture that transforms heat, decay, and time into a living system reflecting humanity’s ecological impact.
The Ken Roberts Memorial Delineation Competition (Krob)
As the most senior architectural drawing competition currently in operation anywhere in the world, it draws hundreds of entries each year, awarding the very best submissions in a series of medium-based categories.
Flamboyant House by Juliana Camargo + Prumo Projetos
Modern Brazilian house integrating existing tree, pool, and volumes with glass, wood, and transitional spaces blending interior, exterior, and landscape seamlessly.
Similar Reads
You might also enjoy these articles
The Ken Roberts Memorial Delineation Competition (Krob)
As the most senior architectural drawing competition currently in operation anywhere in the world, it draws hundreds of entries each year, awarding the very best submissions in a series of medium-based categories.
Waterfront Redevelopment and Urban Revitalization in Mumbai: Forging a New Dawn for Darukhana
A transformative waterfront redevelopment project reimagining Darukhana’s shipbreaking heritage into an inclusive urban future.
OUT-OF-MAP: A Call for Postcards on Feminist Narratives of Public Space
Rhizoma Design and Research Lab invites artists, designers, architects, researchers, and students to reflect on how feminist perspectives can reshape public space. Selected works will be exhibited in Barcelona, October 2026. Submissions open until 15 April 2026.
Documentation Work on Buddhist Wooden Temple
Architectural syncretism and cultural hybridity: A comparative study of the Buddhist temples in Chattogram Hill tracks
Explore Architecture Competitions
Discover active competitions in this discipline
The International Standard for Design Portfolios
The Global Benchmark for Architecture Dissertation Awards
The Global Benchmark for Graduation Excellence
Challenge to design mud housing for contemporary communities
Comments (0)
Please login or sign up to add comments
No comments yet. Be the first to comment!