Nanhai Primary School Renovation: A Sustainable, Flexible Architectural Approach by Chen Donghua Architects
The article explores the Nanhai Primary School renovation by Chen Donghua Architects, focusing on sustainable, flexible design solutions.
The Need for Renovation at Nanhai Primary School
Located in Shenzhen, China, Nanhai Primary School required a significant renovation to address its functional and spatial constraints. This project, led by Chen Donghua Architects, aimed to maximize the use of space within the constraints of a tight timeline—using the summer vacation as an opportunity to carry out the necessary changes. The goal was to transform the school's environment, making it more flexible, sustainable, and operational.







Spatial Reorganization: Filling the "Remaining Spaces"
One of the main challenges of the renovation was dealing with the "remaining spaces" created by the collision of orthogonal structures inside the campus and the polygonal street interface outside. These spaces, often underutilized, were redesigned through various elements such as entrance corridors, parking sheds, folding courtyards, and pavilion installations. These adjustments not only met the school’s functional needs but also enriched the spatial character of the campus, offering students and faculty an engaging and dynamic environment.









Expanding Vertical Space: Sheds and Mezzanines
In response to the growing demand for usable space, Chen Donghua Architects introduced several semi-outdoor structures such as rooftop multifunctional sheds, roof gardens, and reading sheds. These elements not only provided much-needed space but also adapted to the subtropical climate, offering shaded areas for daily activities without the reliance on air conditioning. The vertical expansion also included the addition of mezzanine levels and sheds, making use of the building's roof to introduce new spaces and functionalities.








A Closer Look at the Shed Structures: Inspiration from Local Traditions
The renovation took cues from the everyday sheds found in the Pearl River Delta, which are known for their adaptable, climate-responsive design and lightweight structures. These sheds, crafted from affordable materials and simple construction techniques, provided a sustainable and cost-effective solution. The architects drew on these local traditions to create a cohesive design that met the practical and aesthetic needs of the school. The different sheds, though varied in form and size, shared a unified structural language, allowing them to perform similarly while adapting to their unique environments.








The Multifunctional Roof Shed: An Elegant Structural Solution
The renovation of the rooftop multifunctional shed presented a unique structural challenge due to the limited span of the existing columns. Chen Donghua Architects implemented an innovative design where the shed’s truss system incorporated reverse beam forms, creating a dislocation in the original order of the columns. This design resulted in a natural yet dominant structural mutation, which was both relaxed and visually striking. The light, floating nature of the shed was achieved through the use of slender steel frames, making it feel as if it were hovering above the treetops.








Parking Sheds: Enhancing Functionality and Space
The existing parking sheds were redesigned to address issues such as roof leakage and column interference. The new parking sheds, one triangular and one rectangular, followed the orthogonal grid of the school’s main building but improved the functionality by eliminating columns and incorporating cantilevered roof structures. These roof structures allowed for a column-free space, enhancing the usability of the parking areas and enabling more efficient vehicle maneuverability.





Bicycle Shed and Playground Shading: Enhancing Outdoor Spaces
The renovation of outdoor spaces also included the creation of a cantilevered bicycle shed and playground shading structures. These elements were integrated into the existing fence, utilizing the height difference between the campus and the street. The shading structures were designed with lightweight, translucent roofs that allowed for natural light and air circulation, while simultaneously providing shelter from the elements. The playful design of these spaces complemented the overall goal of creating a functional yet visually stimulating environment for students.
The Entrance Wind-and-Rain Corridor: Connecting Spaces
The entrance wind-and-rain corridor served as a vital link between the teaching building and the main entrance of the school. The design of the corridor was based on a diagonal layout that incorporated folded roof structures, creating a sense of movement and dynamic spatial flow. The truss beams and cantilevered columns added to the structural intrigue of the space, while the double-layer aluminum roof provided both aesthetic appeal and functional waterproofing.





Pavilion and Folding-Corridor Courtyard: A Spatial Play
The pavilion and folding-corridor courtyard spaces between the main building and the flower pond were designed as multifunctional areas for school exhibitions and social gatherings. The folding walls and roof structures formed a dynamic, playful space that allowed students to explore and interact with their environment. The single-column pavilion with its cantilevered roof was carefully designed to complement the spatial relationships between the various elements of the school’s architecture, ensuring a harmonious blend of form and function.





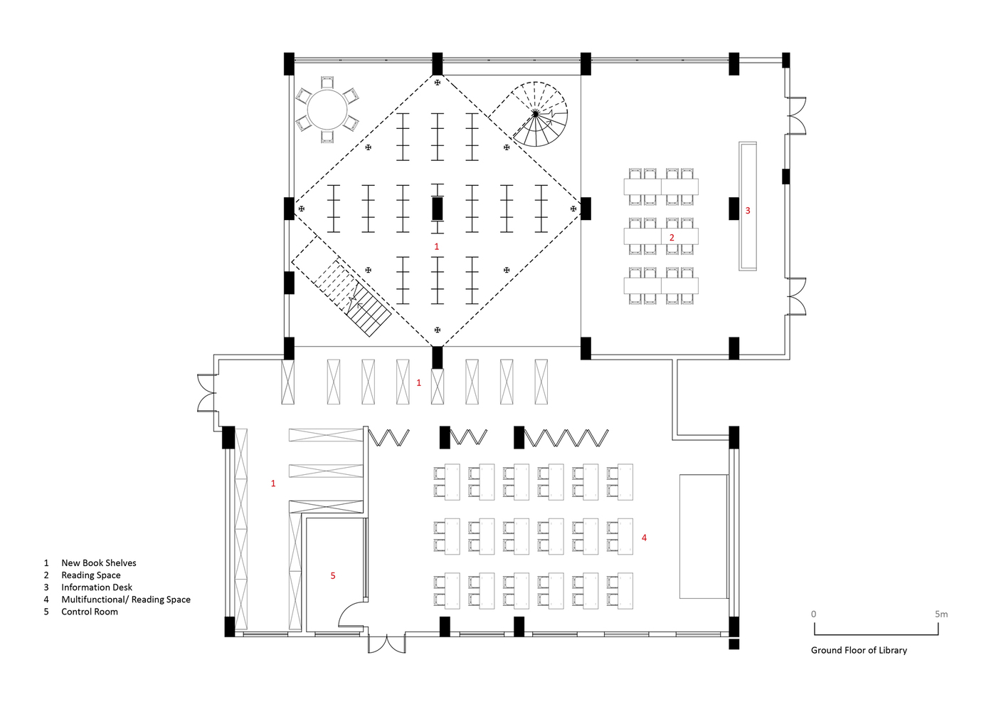
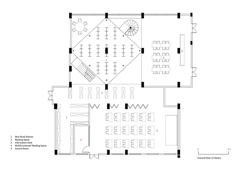
Library Renovation: Maximizing Vertical Space
In the library, the introduction of a mezzanine added new functional space while respecting the building’s original layout. The architects implemented a creative solution by using steel plate-lattice columns under the mezzanine, minimizing structural thickness while ensuring stability. The mezzanine was rotated 45 degrees to optimize natural lighting, ensuring that students could continue to enjoy the library’s west-facing windows. The overall design created a fluid space that integrated new and old elements seamlessly.





A Holistic Renovation Approach
The Nanhai Primary School renovation is an excellent example of how architectural interventions can transform a space into a more functional, sustainable, and visually stimulating environment. Chen Donghua Architects approached this project with a deep understanding of the school’s needs and the local context, creating a space that is not only practical but also beautiful and inspiring for its users. Through the use of flexible structures, natural materials, and innovative designs, this renovation project has set a new standard for school architecture in Shenzhen.







All Photographs are work of Siming Wu