Narrow House Renovation: House of Pipu and Marta by Menhir Arquitectura
A poetic and sustainable narrow house renovation transforming a 3.5-meter-wide plot into a spatially rich urban sanctuary in Spain.
A Creative Renovation of a 3.5-Meter-Wide Urban Dwelling in Spain
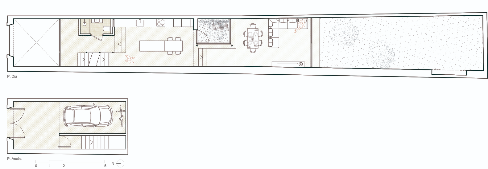
Nestled in the historic heart of Vilafranca del Penedès, Spain, the House of Pipu and Marta by Menhir Arquitectura is a striking example of how a narrow house renovation can breathe new life into a compact urban plot. Measuring just 3.5 meters in width and 35 meters in length, the property posed a spatial challenge transformed into architectural opportunity through strategic intervention, sectional planning, and preservation of original materials.



Sectional Architecture that Elevates Spatial Flow
Originally comprising a ground floor, mezzanine, first floor, and attic, the existing structure offered limited ceiling heights and irregular levels. Menhir Arquitectura responded with a sectional approach—each space assigned a unique elevation—creating a cascading sequence of rooms. This deliberate layering allows the home to flow between communal and private areas while embracing vertical and horizontal circulation.


Seamless Integration of Old and New
Only the street-facing facade, key structural slabs, and the robust party walls were retained, meticulously dismantled, and restored. The restoration emphasizes texture and material honesty, enhancing the home’s identity through its heritage fabric. Stone party walls are left exposed throughout, offering a tactile journey from the entrance to the attic, while the new interventions integrate seamlessly into the old footprint.


Garden Living: A Pavilion Immersed in Nature
At the rear, a high-walled patio garden defined by mature mulberry trees becomes the heart of the home. The living room is relocated here, encased in glass, and topped by a monolithic concrete slab roof. This new pavilion is subtly detached from the original structure by an intermediate courtyard, creating a moment of transition and planting one of the original mulberry trees as a symbol of continuity.



Green Roof and Private Terraces
The roof of the garden pavilion is transformed into a green rooftop terrace, offering direct access from the main bedroom and reinforcing the vertical integration of nature. This private retreat merges sustainable design with thoughtful architecture, providing outdoor living within the confines of an urban envelope.


Passive Solar Design and Efficient Climate Control
With a southeast-facing glass facade, the house is designed to maximize passive solar gain in winter while utilizing traditional Alicante shutters and the mass of the party walls for summer shading. Energy efficiency is further ensured through underfloor heating powered by an aerothermal system, while careful attention to thermal insulation, airtight detailing, and bridge-free construction enhances environmental performance.


An Urban Sanctuary of Architectural Precision
More than a renovation, the House of Pipu and Marta exemplifies how narrow urban dwellings can be reimagined through intelligent design, sustainable strategies, and spatial creativity. With its rhythmic transitions, material honesty, and refined detailing, the house becomes a modern sanctuary—where past and present coexist, and every square meter is activated with purpose and beauty.

Popular Articles
Popular articles from the community
Atelier Macri Concept Store Interior Design by CASE-REAL
Atelier Macri store features a "ko" counter, walnut wood details, cork displays, blending retail, gallery, and seamless customer experiences.
Fifth NRE Jazz Club – De Bever Architecten: Eindhoven’s Revitalized Cultural Hub
Historic gas factory transformed into Fifth NRE Jazz Club blending modern sustainability, jazz culture, dining, and heritage architecture seamlessly.
Inverted Architecture Installation by Studio Link-Arc: Exploring the Intersection of Architecture and Living Organisms
Inverted Architecture Installation by Studio Link-Arc blends mycelium, sustainability, inverted design, ecological cycles, and urban adaptive architecture in Shenzhen.
Solar Steam: A Climate-Responsive Architecture That Redefines the Monument
A climate-responsive memorial architecture that transforms heat, decay, and time into a living system reflecting humanity’s ecological impact.
Similar Reads
You might also enjoy these articles
The Ken Roberts Memorial Delineation Competition (Krob)
As the most senior architectural drawing competition currently in operation anywhere in the world, it draws hundreds of entries each year, awarding the very best submissions in a series of medium-based categories.
Waterfront Redevelopment and Urban Revitalization in Mumbai: Forging a New Dawn for Darukhana
A transformative waterfront redevelopment project reimagining Darukhana’s shipbreaking heritage into an inclusive urban future.
OUT-OF-MAP: A Call for Postcards on Feminist Narratives of Public Space
Rhizoma Design and Research Lab invites artists, designers, architects, researchers, and students to reflect on how feminist perspectives can reshape public space. Selected works will be exhibited in Barcelona, October 2026. Submissions open until 15 April 2026.
Documentation Work on Buddhist Wooden Temple
Architectural syncretism and cultural hybridity: A comparative study of the Buddhist temples in Chattogram Hill tracks
Explore Architecture Competitions
Discover active competitions in this discipline
The International Standard for Design Portfolios
The Global Benchmark for Architecture Dissertation Awards
The Global Benchmark for Graduation Excellence
Challenge to reimagine the Iron Throne
Comments (0)
Please login or sign up to add comments
No comments yet. Be the first to comment!