Newood Housing: A Model of Sustainable Timber Housing in France
Newood Housing is a sustainable timber housing project in France that integrates eco-friendly materials, diverse living spaces, and urban coherence.
Redefining Urban Living with Timber Architecture
Newood Housing, designed by La Architectures and AQMA, stands as an innovative example of sustainable timber housing in France. Located in Noisy-le-Grand, near Paris, this residential complex embraces ecological construction techniques while harmonizing with its natural and urban surroundings. The project reimagines modern living by integrating wooden structures, diverse housing typologies, and thoughtfully designed communal spaces.



Site Context: A Natural Extension of the Marne Landscape
Positioned in the "l'île de la Marne" neighborhood, Newood Housing is built on a steeply sloped plot, necessitating a carefully planned architectural response. The project arranges its built forms around the perimeter, creating a central open space that fosters connectivity and fluid movement. This inward-facing design ensures a balance between density and openness, allowing residents to engage with both the architecture and the natural landscape.




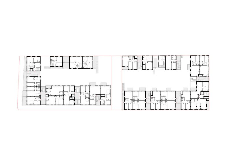
Architectural Concept: Timber Construction and Urban Coherence
The project employs a mix of materials and construction techniques to create a visually cohesive yet structurally diverse development. The lower levels and technical rooms utilize concrete for durability, while the superstructure is primarily composed of timber (MOB – Maison Ossature Bois), enhancing sustainability. The façade treatment varies, incorporating wide-slatted wood cladding, deep tight wood cladding, and white metal elements, offering both textural richness and energy efficiency.

The design of Newood Housing also emphasizes dynamic roofscapes, featuring single-slope, double-slope, and green terrace configurations. This variety adds a distinct architectural identity while improving insulation and rainwater management.


Spatial Design: Maximizing Natural Light and Outdoor Access
Every apartment within Newood Housing is designed to provide ample outdoor space, including private gardens, terraces, and balconies, many of which offer unobstructed views of the Marne River. The building’s circulation is strategically placed in external recesses, enhancing permeability and reducing the perceived density of the complex. These exterior corridors not only animate the façade but also create natural ventilation pathways, improving overall indoor air quality.


The project includes a mix of unit types, ranging from compact single-room apartments to spacious five-room duplexes. This diversity ensures inclusivity, accommodating different lifestyles while fostering a vibrant residential community.

Sustainability: A Commitment to Eco-Friendly Living
Newood Housing exemplifies sustainable urban development through its reliance on timber construction, which significantly reduces the project's carbon footprint. The integration of green roofs further supports ecological balance by promoting biodiversity, improving insulation, and managing rainwater runoff. Additionally, the use of prefabricated wooden components enhances efficiency by minimizing construction waste and lowering energy consumption.


The careful selection of materials, passive design strategies, and the emphasis on outdoor spaces collectively contribute to a living environment that is not only aesthetically appealing but also environmentally responsible.


The Future of Timber Housing in France
Newood Housing serves as a benchmark for sustainable timber housing in France, demonstrating how ecological design can coexist with urban density. By prioritizing timber construction, flexible living spaces, and environmental harmony, this project sets a new standard for contemporary residential developments. As cities continue to evolve, Newood Housing exemplifies a forward-thinking approach to sustainable architecture that fosters both community engagement and ecological stewardship.






All Photographs are works of Jean Baptiste Thiriet
Popular Articles
Popular articles from the community
Fifth NRE Jazz Club – De Bever Architecten: Eindhoven’s Revitalized Cultural Hub
Historic gas factory transformed into Fifth NRE Jazz Club blending modern sustainability, jazz culture, dining, and heritage architecture seamlessly.
Inverted Architecture Installation by Studio Link-Arc: Exploring the Intersection of Architecture and Living Organisms
Inverted Architecture Installation by Studio Link-Arc blends mycelium, sustainability, inverted design, ecological cycles, and urban adaptive architecture in Shenzhen.
Gads Hill Early Learning Center by JGMA: Adaptive Reuse Shaping Community-Focused Educational Architecture
Adaptive reuse transforms fragmented structure into vibrant early learning center with playful façade, natural light, and community-focused sustainable design.
Solar Steam: A Climate-Responsive Architecture That Redefines the Monument
A climate-responsive memorial architecture that transforms heat, decay, and time into a living system reflecting humanity’s ecological impact.
Similar Reads
You might also enjoy these articles
The Ken Roberts Memorial Delineation Competition (Krob)
As the most senior architectural drawing competition currently in operation anywhere in the world, it draws hundreds of entries each year, awarding the very best submissions in a series of medium-based categories.
Waterfront Redevelopment and Urban Revitalization in Mumbai: Forging a New Dawn for Darukhana
A transformative waterfront redevelopment project reimagining Darukhana’s shipbreaking heritage into an inclusive urban future.
OUT-OF-MAP: A Call for Postcards on Feminist Narratives of Public Space
Rhizoma Design and Research Lab invites artists, designers, architects, researchers, and students to reflect on how feminist perspectives can reshape public space. Selected works will be exhibited in Barcelona, October 2026. Submissions open until 15 April 2026.
Documentation Work on Buddhist Wooden Temple
Architectural syncretism and cultural hybridity: A comparative study of the Buddhist temples in Chattogram Hill tracks
Explore Architecture Competitions
Discover active competitions in this discipline
The International Standard for Design Portfolios
The Global Benchmark for Architecture Dissertation Awards
The Global Benchmark for Graduation Excellence
Challenge to reimagine the Iron Throne
Comments (0)
Please login or sign up to add comments
No comments yet. Be the first to comment!