Ocean View House in Jakarta: From Inside Looking Out by K-Thengono Design Studio
From Inside Looking Out House blends tropical design, privacy, and panoramic ocean views in Jakarta’s prestigious Pantai Mutiara neighborhood.
A Tropical Residence Balancing Privacy and Openness
Located in Jakarta’s prestigious Pantai Mutiara neighborhood, From Inside Looking Out House by K-Thengono Design Studio is a four-story tropical residence designed for a couple seeking both privacy and sweeping ocean views. With a generous 1,435 m² of living space, the home blends the serene atmosphere of a resort with the practicality of urban living.

The site’s east-west orientation shapes the design strategy. To the east, a tranquil canal opens up to scenic views, while the west faces a bustling street and a lively café. The architects skillfully respond to this dual context by arranging spaces to maximize vistas while shielding private areas from public exposure.
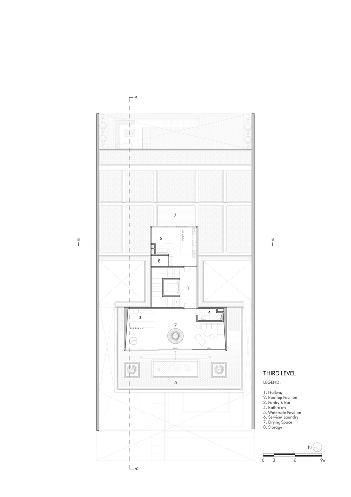
Two Blocks, One Harmonious Flow
The residence is composed of two distinct volumes — a western block for private bedrooms and an eastern block for communal living and dining. Between them lies a central circulation zone, which creates two courtyards: a welcoming front entrance and a secluded private garden.



This spatial configuration enhances natural ventilation and daylight penetration, making the home feel light, airy, and connected to nature. The courtyards also serve as transitional buffers, softening the shift between public and private areas.



Balconies with Bifold Wooden Screens
In the western block, shared balconies on each floor link the bedrooms and provide shaded outdoor spaces. These balconies feature bifold wooden screens that control sunlight and preserve privacy. The screens have a tapered design — thicker at the bottom for visual shielding and slimmer at the top to allow diffused daylight to enter.


At the highest level, above the café across the street, the volume extends into an entertainment room with breathtaking views of the open sea and sunset. A reflecting pool in front of this room acts as both a cooling element and a visual extension of the horizon.



A Contemporary Tropical Sanctuary
From Inside Looking Out House captures the essence of tropical living through thoughtful orientation, climate-responsive features, and a sensitive balance of openness and seclusion. By framing views, controlling sunlight, and integrating courtyards, K-Thengono Design Studio has created a residence that offers its owners a private retreat without disconnecting from its vibrant surroundings.








All the photographs are works of Indra Wiras
Popular Articles
Popular articles from the community
Fifth NRE Jazz Club – De Bever Architecten: Eindhoven’s Revitalized Cultural Hub
Historic gas factory transformed into Fifth NRE Jazz Club blending modern sustainability, jazz culture, dining, and heritage architecture seamlessly.
Alton Cliff House: A Harmonious Retreat by f2a Architecture in Lake Country, Canada
Alton Cliff House blends corten steel, prefabrication, and sustainable design, creating a luxurious, energy-efficient retreat perched on Canadian cliffs.
Gads Hill Early Learning Center by JGMA: Adaptive Reuse Shaping Community-Focused Educational Architecture
Adaptive reuse transforms fragmented structure into vibrant early learning center with playful façade, natural light, and community-focused sustainable design.
Inverted Architecture Installation by Studio Link-Arc: Exploring the Intersection of Architecture and Living Organisms
Inverted Architecture Installation by Studio Link-Arc blends mycelium, sustainability, inverted design, ecological cycles, and urban adaptive architecture in Shenzhen.
Similar Reads
You might also enjoy these articles
Bamboo Housing Challenge 2026: Design Affordable, Sustainable Homes Using Bamboo
An international design competition by Bamboo U and IBUKU inviting architects and designers to reimagine affordable housing using bamboo — with the winning design built full-scale in Bali.
Computational Design & Education: Beegraphy Design Awards Introduces 7th Category (Featuring Jiyun's Innovative Approach)
Dive into Beegraphy’s 7th Design Awards category, where computational design meets education to create immersive, interactive learning tools, inspired by Jiyun’s work.
From Parametric Lighting to Urban Furniture: Join the 2nd Workshop in Beegraphy’s Computational Design Series
Dive into Cutting-Edge Design Techniques and Practical Applications with Industry Experts
Explore Architecture Competitions
Discover active competitions in this discipline
The International Standard for Design Portfolios
The Global Benchmark for Architecture Dissertation Awards
The Global Benchmark for Graduation Excellence
Challenge to reimagine the Iron Throne
Comments (0)
Please login or sign up to add comments
No comments yet. Be the first to comment!