Olympic Social Housing: A Landmark Design by SOA Architectes in Greater Paris
This article highlights SOA Architectes' Olympic Social Housing, blending innovative bioclimatic design and art for sustainable urban living.
The Olympic Social Housing project in Saint-Ouen-sur-Seine, designed by SOA Architectes, exemplifies how innovative urban planning and architectural ingenuity can create sustainable, functional, and aesthetically pleasing housing solutions. Situated on the banks of the Seine and forming part of the Paris 2024 Olympic and Paralympic Village, this development breathes new life into a historic industrial site, blending modern bioclimatic design with artistic inspiration.


Context and Urban Vision
The project is located at the heart of the Paris 2024 Olympic Village, on a site steeped in industrial history. Master-planned by Dominique Perrault, the village features large "ships" running perpendicular to the Seine. SOA Architectes designed the Belvedere block as one of these ships, comprising a tall building (R+10) and two mid-rise buildings (R+5 and R+6) that together form a cohesive and striking architectural ensemble.

The development integrates seamlessly into the urban fabric, with its monumental two-level urban plinth. This base structure connects the buildings with a dual-aspect hall that includes a large bicycle storage area, creating a visual and functional link between the landscaped Mail Finot and the central block.

Architectural Features
Design and Materiality
The facade design is a collaboration between SOA Architectes, contemporary artist Morgane Tschiember, and AkzoNobel factories. Inspired by the concept of "skin building," the design fuses Saint-Ouen's iconic red brick with natural skin tones, creating a visually rich and textured facade. The steel cladding of the main building not only protects it from the elements but also supports extended exterior spaces such as balconies and planted gardens, enhancing the livability of the apartments.


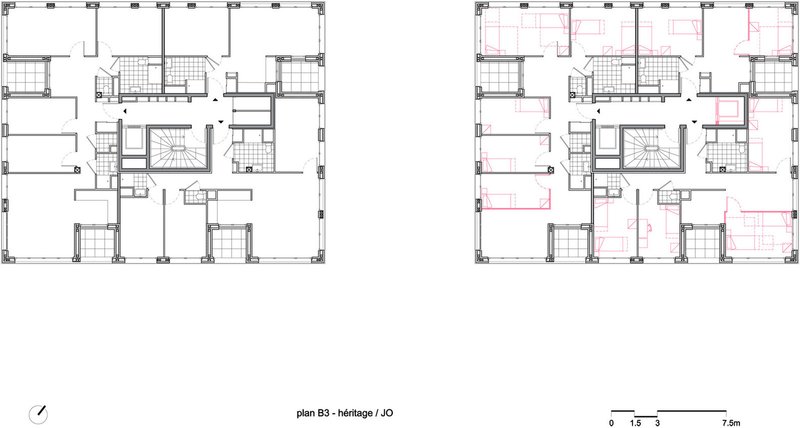
Layout and Spatial Configuration
The buildings take advantage of the generous dimensions of 21 meters by 21 meters. Servant spaces and floor cellars are efficiently centralized, freeing up the building’s perimeter for spacious living areas. Apartments are designed with dual orientations to maximize natural light and ventilation. Living rooms, positioned at the corners, provide unobstructed views, while kitchens and living areas open onto loggias or expansive balconies, promoting indoor-outdoor living.


Bioclimatic Design
The project employs bioclimatic principles to optimize thermal performance and energy efficiency. Facade openings are carefully calibrated based on orientation. Large north-facing openings provide sweeping urban views, while south-facing openings are shaded by deep terraces to prevent overheating. Smaller east- and west-facing windows offer privacy for bedrooms while minimizing visibility into neighboring buildings. This thoughtful design balances energy efficiency with comfort and aesthetics.

Sustainability and Community Integration
The Olympic Social Housing project underscores the importance of sustainability in contemporary architecture. The inclusion of planted balconies, efficient thermal insulation, and dual-aspect apartments demonstrates a commitment to creating eco-friendly housing that enhances quality of life. The project also prioritizes community integration by fostering connections between residents through shared spaces and seamless links to the surrounding urban environment.


SOA Architectes’ Olympic Social Housing project in Greater Paris represents a bold step forward in urban housing design. Combining artistic vision, bioclimatic principles, and functional layouts, the project serves as a model for sustainable and innovative social housing. It not only addresses the needs of its residents but also contributes to the broader urban landscape, showcasing the transformative potential of thoughtful architecture.


All Photographs are works of Giaime Meloni
Popular Articles
Popular articles from the community
The Ken Roberts Memorial Delineation Competition (Krob)
As the most senior architectural drawing competition currently in operation anywhere in the world, it draws hundreds of entries each year, awarding the very best submissions in a series of medium-based categories.
Split House: A Compact Urban Home Blending Privacy, Light, and Flexible Living in Japan
Compact Japanese home featuring DOMA space, flexible café potential, passive lighting, privacy zoning, and sustainable urban living design.
Fifth NRE Jazz Club – De Bever Architecten: Eindhoven’s Revitalized Cultural Hub
Historic gas factory transformed into Fifth NRE Jazz Club blending modern sustainability, jazz culture, dining, and heritage architecture seamlessly.
Similar Reads
You might also enjoy these articles
The Ken Roberts Memorial Delineation Competition (Krob)
As the most senior architectural drawing competition currently in operation anywhere in the world, it draws hundreds of entries each year, awarding the very best submissions in a series of medium-based categories.
Waterfront Redevelopment and Urban Revitalization in Mumbai: Forging a New Dawn for Darukhana
A transformative waterfront redevelopment project reimagining Darukhana’s shipbreaking heritage into an inclusive urban future.
OUT-OF-MAP: A Call for Postcards on Feminist Narratives of Public Space
Rhizoma Design and Research Lab invites artists, designers, architects, researchers, and students to reflect on how feminist perspectives can reshape public space. Selected works will be exhibited in Barcelona, October 2026. Submissions open until 15 April 2026.
Documentation Work on Buddhist Wooden Temple
Architectural syncretism and cultural hybridity: A comparative study of the Buddhist temples in Chattogram Hill tracks
Explore Architecture Competitions
Discover active competitions in this discipline
The International Standard for Design Portfolios
The Global Benchmark for Architecture Dissertation Awards
The Global Benchmark for Graduation Excellence
Challenge to reimagine the Iron Throne
Comments (0)
Please login or sign up to add comments
No comments yet. Be the first to comment!