OneTwoHouse: A Dual-Identity Home Blending Unity, Illusion, and Sustainable Living
Single-family house disguised as semi-detached, combining open and private spaces with sustainable materials, passive systems, and a strong indoor-outdoor connection.
Located in Berlin, Germany, OneTwoHouse by rundzwei Architekten presents a compelling architectural narrative that challenges perception while redefining contemporary domestic living. At first glance, the house appears to be a semi-detached dwelling, two mirrored units placed side by side. However, this visual impression is carefully constructed. In reality, the building is a single-family home, unified under one roof. This deliberate ambiguity forms the conceptual foundation of the project, where duality and unity coexist in both form and experience.


The exterior composition is defined by staggered volumes and a symmetrical façade that reinforces the illusion of two separate entities. This play on perception not only engages the viewer but also reflects the internal organization of the house, where contrasting spatial qualities are brought together into a cohesive whole. The architecture becomes a dialogue between apparent division and actual continuity.

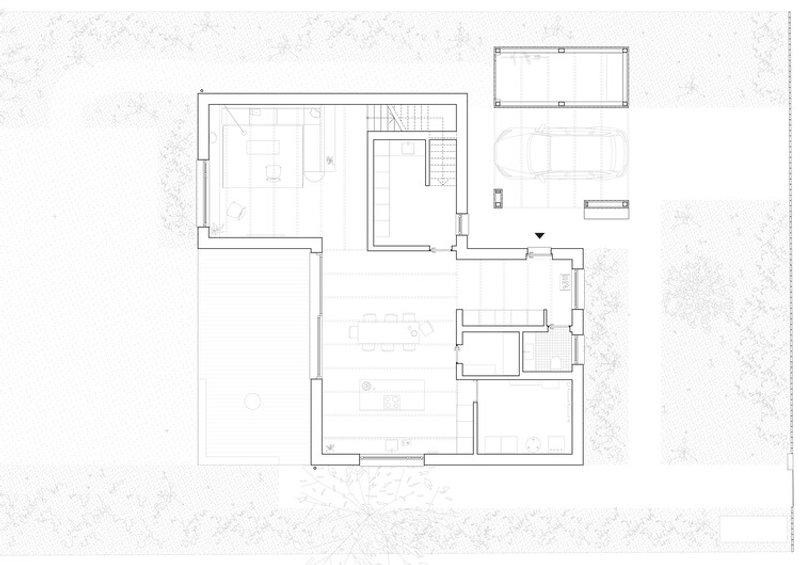
Internally, the house is organized across two primary levels, each responding to different modes of living. The ground floor is conceived as an open, expansive environment dedicated to shared activities. Living, dining, and kitchen spaces flow seamlessly into one another, creating a generous and flexible layout. Large openings and carefully positioned windows frame views of the surrounding garden, establishing a strong visual and spatial connection between interior and exterior.

The architectural language of the ground floor emphasizes lightness and openness. High ceilings, combined with a refined wooden ceiling structure, enhance the sense of volume and warmth. Natural light filters through the spaces, creating an inviting atmosphere that encourages social interaction and daily life to unfold effortlessly.


In contrast, the upper floor is designed as a more intimate and private domain. Bedrooms are intentionally compact, fostering a sense of comfort and retreat. A central hallway serves as the organizing spine of this level, connecting the rooms while offering a flexible space that can accommodate both circulation and moments of pause. This transitional zone reinforces the idea of balance, between movement and stillness, connection and solitude.


The name OneTwoHouse encapsulates this duality. It speaks not only to the external illusion of two houses but also to the internal coexistence of two distinct spatial conditions: openness and privacy. The project successfully merges these seemingly opposing qualities, creating a home that is both expansive and introspective.


Materiality and construction play a crucial role in reinforcing the project’s sustainable ambitions. The building is constructed using clay blocks with perlite insulation, assembled in a way that allows for disassembly and reuse in alignment with circular economy principles. The design intentionally minimizes the use of concrete, opting instead for environmentally responsible alternatives such as foamed glass gravel for the foundation layer.


Energy performance is addressed through a combination of passive and active strategies. A ground probe system paired with a heat pump provides efficient underfloor heating, while a full-roof photovoltaic system with battery storage supports renewable energy generation. The north-facing roof is designed as an inclined green roof, enhancing insulation and contributing to biodiversity.



The interior environment is carefully calibrated to ensure comfort without relying heavily on mechanical systems. Ventilation is achieved naturally through operable windows, while clay plaster surfaces and construction boards regulate indoor humidity by absorbing and releasing moisture. This creates a stable and healthy indoor climate, aligned with principles of low-energy design.

Ultimately, OneTwoHouse is more than a residential building, it is an exploration of architectural identity. By merging the visual language of a semi-detached house with the functionality of a single-family dwelling, the project challenges conventional typologies. Through its thoughtful integration of spatial design, material logic, and sustainability, it offers a contemporary model of living that is both innovative and deeply grounded in environmental responsibility.



All the Photographs are works of Nate Cook Photography
Popular Articles
Popular articles from the community
Alton Cliff House: A Harmonious Retreat by f2a Architecture in Lake Country, Canada
Alton Cliff House blends corten steel, prefabrication, and sustainable design, creating a luxurious, energy-efficient retreat perched on Canadian cliffs.
Split House: A Compact Urban Home Blending Privacy, Light, and Flexible Living in Japan
Compact Japanese home featuring DOMA space, flexible café potential, passive lighting, privacy zoning, and sustainable urban living design.
Inverted Architecture Installation by Studio Link-Arc: Exploring the Intersection of Architecture and Living Organisms
Inverted Architecture Installation by Studio Link-Arc blends mycelium, sustainability, inverted design, ecological cycles, and urban adaptive architecture in Shenzhen.
Similar Reads
You might also enjoy these articles
Free Architecture Competitions You Can Enter Right Now
No entry fees, real prizes. Here are the best free architecture competitions open for submissions in 2026.
Top 15 Architecture Competitions to Enter in 2026
From student-friendly idea competitions to prestigious international awards, here are the best architecture competitions open for entries in 2026. Updated regularly.
DIY & Engineering in Computational Design : Enter the BeeGraphy Design Awards
Showcase Your Creativity with Computational Design and Open Source Projects

Innovative Design Solutions: Award-Winning Projects from Recent Architecture Competitions
Exploring award-winning architectural projects shaping the future of design, sustainability, and community.
Explore Architecture Competitions
Discover active competitions in this discipline
The International Standard for Design Portfolios
The Global Benchmark for Architecture Dissertation Awards
The Global Benchmark for Graduation Excellence
Challenge to reimagine the Iron Throne
Comments (0)
Please login or sign up to add comments
No comments yet. Be the first to comment!