Pet-Friendly Restaurant Design in Suwon: Exploring 032 Brunch Restaurant by Studio Studio
Explore 032 Brunch Restaurant in Suwon, a unique example of pet-friendly restaurant design that seamlessly integrates style and functionality.
As modern dining experiences evolve, restaurant designs increasingly cater to unique customer needs, including those of pet owners. In Suwon, South Korea, the 032 Brunch Restaurant designed by Studio Studio stands out as a prime example of pet-friendly restaurant design in Suwon, blending functional dining spaces with dedicated areas for pets.


Overview of 032 Brunch Restaurant
Concept and Design Approach
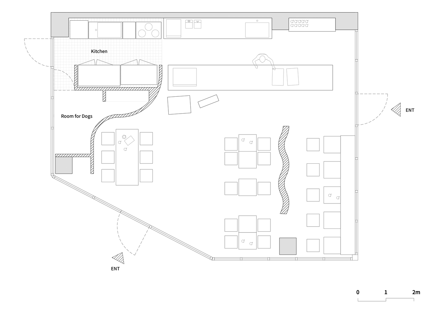
Located in the bustling city of Suwon, the 032 Brunch Restaurant occupies a modest area of 80 m². The lead architect, Do Gwanghun, was tasked with a specific and unique client request: to integrate a separate room within the restaurant specifically designed for the client’s pet dog. This feature is not just an add-on but a central aspect of the restaurant's identity and layout.


Architectural Features and Space Utilization
The restaurant's design cleverly incorporates a curved wall that not only serves as a room divider but also adds a distinctive aesthetic to the interior. This wall extends into a low divider that echoes the brick composition used throughout the restaurant, maintaining a cohesive design theme.


Key Elements of the Design
Pet-Centric Architecture
The dedicated pet room is an innovative solution that addresses the growing demand for pet-friendly amenities in public spaces. This room allows pets to relax in a comfortable environment tailored to their needs while owners enjoy their meal, highlighting the inclusive nature of pet-friendly restaurant design in Suwon.


Custom Furniture and Interior Decor
To complement the unique architectural features, all furniture in 032 Brunch Restaurant was custom-designed, except for the Thonet chair, which adds a classic touch to the modern setup. The furniture's calm and serene demeanor contrasts with the vibrant walls, creating a balanced and inviting atmosphere.


Integration with Customer Experience
Enhancing Dining with Design
The design of 032 Brunch Restaurant goes beyond aesthetic appeal, focusing on enhancing the customer experience through thoughtful spatial planning and interior design. The integration of pet-friendly features with human-centric dining areas makes the restaurant a model for future developments in the industry.


Material Selection and Craftsmanship
The choice of materials, from the brickwork to the bespoke furniture, reflects a commitment to quality and sustainability. These elements are carefully selected to ensure durability and comfort, both for human guests and their furry companions.


Setting Trends in Restaurant Design
032 Brunch Restaurant by Studio Studio is not just a dining location but a trendsetter in pet-friendly restaurant design in Suwon. It showcases how architects can create spaces that cater to detailed client requests while maintaining a broad appeal. This project serves as an inspiration for restaurant owners and architects worldwide, promoting inclusivity and innovation in commercial architecture.


All photographs are work of Park Sehee
Popular Articles
Popular articles from the community
Solar Steam: A Climate-Responsive Architecture That Redefines the Monument
A climate-responsive memorial architecture that transforms heat, decay, and time into a living system reflecting humanity’s ecological impact.
On the Brooks House by Monsoon Collective – A Contemporary Kerala Home Rooted in Tradition
Kerala home blending tradition and modernity with water-inspired design, brick architecture, courtyard planning, and sustainable rainwater harvesting strategies.
The Ken Roberts Memorial Delineation Competition (Krob)
As the most senior architectural drawing competition currently in operation anywhere in the world, it draws hundreds of entries each year, awarding the very best submissions in a series of medium-based categories.
An Miên Lumière Cafe by xưởng xép, Ho Chi Minh City, Vietnam
An industrial-inspired café where layered steel and warm light create a dynamic, immersive environment shaped by reflection, depth, and perception.
Similar Reads
You might also enjoy these articles
The Ken Roberts Memorial Delineation Competition (Krob)
As the most senior architectural drawing competition currently in operation anywhere in the world, it draws hundreds of entries each year, awarding the very best submissions in a series of medium-based categories.
Waterfront Redevelopment and Urban Revitalization in Mumbai: Forging a New Dawn for Darukhana
A transformative waterfront redevelopment project reimagining Darukhana’s shipbreaking heritage into an inclusive urban future.
OUT-OF-MAP: A Call for Postcards on Feminist Narratives of Public Space
Rhizoma Design and Research Lab invites artists, designers, architects, researchers, and students to reflect on how feminist perspectives can reshape public space. Selected works will be exhibited in Barcelona, October 2026. Submissions open until 15 April 2026.
Documentation Work on Buddhist Wooden Temple
Architectural syncretism and cultural hybridity: A comparative study of the Buddhist temples in Chattogram Hill tracks
Explore Architecture Competitions
Discover active competitions in this discipline
The International Standard for Design Portfolios
The Global Benchmark for Architecture Dissertation Awards
The Global Benchmark for Graduation Excellence
Challenge to reimagine the Iron Throne
Comments (0)
Please login or sign up to add comments
No comments yet. Be the first to comment!