Phu Luong House: Tradition Inside a Vietnamese Tube House
AICC Architecture designed a Vietnamese tube house with a traditional carved wooden ancestral hall in the central courtyard, surrounded by modern living.
In Phu Luong, a town in northern Vietnam, a 212 square metre family house combines a modern concrete tube house with a traditional wooden ancestral hall sitting in the courtyard between its two main volumes. Phu Luong House, designed by AICC Architecture and completed in 2021, is a contemporary Vietnamese tube house that refuses to discard its cultural inheritance. The ancestral worship hall, built in traditional carved wood, sits at the centre of the plan as both a sacred space and a connecting room between the modern volumes around it.
The house occupies a narrow plot in a busy commercial neighbourhood. The ground floor functions as a shop. The upper floors contain the family residence: bedrooms, kitchen, dining, and living areas wrapped around an inner courtyard. The ancestral hall sits in this courtyard as a freestanding pavilion, accessed from the modern house through glass doors. The contrast between the white concrete house and the dark carved timber hall is the design's central gesture.
The Street: Tube House in a Busy Block


From the street, Phu Luong House reads as a typical Vietnamese shophouse. White concrete walls, large openings on the ground floor for the shop, and upper-level balconies planted with tropical greenery. Motorbikes blur past on the road. The aerial view at night shows the house as one of many narrow plots in a dense urban block, distinguished by the warm glow of the ancestral hall's tile roof at the centre. The architecture is invisible from the street and entirely revealed from inside.
The Ancestral Hall: Wood at the Centre



The ancestral hall is the heart of the project. It is a traditional Vietnamese wooden pavilion with dark carved columns, ornate ceiling beams, a gilded altar, and traditional throne chairs. The craftsmanship is genuine: carved screens, lattice railings, and timber joinery built using techniques that predate modern construction by centuries. The hall sits in the courtyard between the modern volumes, accessed through glass doors that frame it like a vitrine. From inside the ancestral hall, you look out through carved wooden screens at the white concrete walls and planted balconies of the modern house. The juxtaposition is the project's strongest spatial idea.

The Courtyard: Tradition Meets Modern



The courtyard is the negotiating ground between the two architectures. The terracotta tile floor connects the ancestral hall to the modern house. Plants spill over the balconies above, providing greenery and shade. Glass doors open the modern interior to the courtyard, blurring the boundary. At night, the ancestral hall's tile roof glows warm under spotlights, and the courtyard becomes the most photographed space in the house. This is where the family gathers for ceremonies, meals, and quiet moments.
Modern Living: Kitchen, Dining, Living


The modern volumes contain a contemporary family home. The kitchen has oak cabinets, a green tile backsplash, a stainless steel sink, and a polished concrete counter. The dining and living room has oak cabinets along one wall, grey tile floors, and a red rug. The view from the dining room frames the carved wooden screens of the ancestral hall through the glass doors. The two architectures are visually connected at every meal. The traditional and the contemporary are not in separate rooms. They share the same view.
Light and Air: Brick Screens and Side Gaps


The west-facing facade required heat protection. The architects used perforated brick screen walls (jaali) along the stairwell to filter sunlight while allowing cross-ventilation. A narrow side gap with a glass corridor brings light and tropical planting into the depth of the plan. An upper balcony with a polished concrete floor and glass partitions opens onto the surrounding rooftops, providing outdoor space at every level. These details solve the practical problems of a narrow tube house: heat, light, ventilation, and privacy.
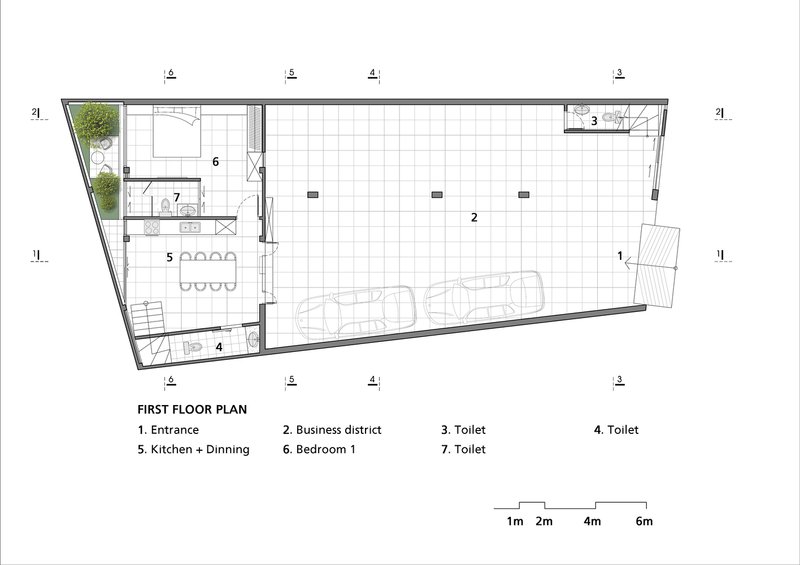
Plan

The first floor plan shows the layout: a long narrow plot with the entrance and business district shop at the front, the kitchen and dining behind, a bedroom, toilets, and the courtyard with the ancestral hall set into the deep middle of the plan. The plan is the typical Vietnamese tube house, modified to give the ancestral hall a central courtyard rather than a corner.
Why This Project Matters
Vietnamese tube houses are one of the most studied housing typologies in Southeast Asian architecture: long, narrow, urban, and dense. Most contemporary versions strip out tradition in favour of modern minimalism. Phu Luong House does the opposite. It puts the ancestral worship hall at the centre, in full traditional craftsmanship, and builds the modern house around it. The result is a home where the family's cultural inheritance is not relegated to a back room or a small altar but is the architectural anchor of the entire plan.
If you are designing a tube house, a multi-generational home, or any project where tradition and contemporary living need to coexist, Phu Luong House is worth studying for how a traditional element can be the structural and spiritual centre of a modern building rather than an afterthought.
About the Studio
Share Your Own Work on uni.xyz
If you are working on Vietnamese tube houses, multi-generational homes, or contemporary residential architecture rooted in tradition, uni.xyz is a place to publish your work and connect with a global design community.
Project credits: Phu Luong House by AICC Architecture. Phu Luong, Vietnam. Completed 2021.
Popular Articles
Popular articles from the community
Rede Arquitetos Builds an Open-Air School in Fortaleza That Doubles as a Neighborhood Living Room
Educar II SESC-CE folds sports, dance, and community gathering into a courtyard campus wrapped in mesh and tropical color.
TGK Nirasaki Plant: A Smart Factory Blending Technology, Landscape, and Wellness
Smart factory in Japan blending IoT manufacturing, scenic trail design, natural ventilation, and landscape integration to enhance user experience and sustainability.
Marvila Apartment Renovation in Lisbon: A Bright Minimalist Attic Transformation by KEMA Studio
Bright attic transformed into minimalist Lisbon apartment with skylights, sustainable materials, open plan layout, and industrial-inspired interior design elements.
20 Most Popular Commercial Architecture Projects of 2025
From sustainable market concepts to heritage factories, the commercial buildings and proposals that drew the most attention on uni.xyz this year.
Similar Reads
You might also enjoy these articles
Filtering Space: A Gradual Spatial Experience
From urban intensity to spatial calm.
The Ken Roberts Memorial Delineation Competition (Krob)
As the most senior architectural drawing competition currently in operation anywhere in the world, it draws hundreds of entries each year, awarding the very best submissions in a series of medium-based categories.
Waterfront Redevelopment and Urban Revitalization in Mumbai: Forging a New Dawn for Darukhana
A transformative waterfront redevelopment project reimagining Darukhana’s shipbreaking heritage into an inclusive urban future.
OUT-OF-MAP: A Call for Postcards on Feminist Narratives of Public Space
Rhizoma Design and Research Lab invites artists, designers, architects, researchers, and students to reflect on how feminist perspectives can reshape public space. Selected works will be exhibited in Barcelona, October 2026. Submissions open until 15 April 2026.
Explore Architecture Competitions
Discover active competitions in this discipline
The International Standard for Design Portfolios
The Global Benchmark for Architecture Dissertation Awards
The Global Benchmark for Graduation Excellence
Challenge to reimagine the Iron Throne
Comments (0)
Please login or sign up to add comments
No comments yet. Be the first to comment!