Plot 33: A Beacon of Sustainable Urban Architecture
Plot 33 combines sustainable design with urban living, creating a flexible, open-plan architecture that harmonizes with Rajkot's climate and landscape.
Nestled in the bustling urban landscape of Rajkot, India, the Plot 33 Residence and Studio stands as a testament to sustainable urban architecture. Designed by playball studio, this 402 m² project combines the dual aspirations of an architect duo with diverse cultural backgrounds from India and Spain. The result is a space that expertly balances work-life, privacy-openness, and adaptability with a keen focus on environmental harmony.




A Site Responsive Design
Climate-Conscious Orientation
The architects at playball studio approached the site with a climate-first mindset, prioritizing the natural environment over programmatic demands. Situated adjacent to a university campus, Plot 33 strategically opens up towards the north, facing a lush public park, while shielding itself on other sides to maintain a comfortable microclimate.




The Courtyard: A Transitional Space
Central to the design is a north-edge courtyard, serving as a natural buffer that bridges the interior with the external world. This thoughtful addition ensures that the residence and studio remain intimately connected with the surrounding greenery and park views, reinforcing the project's sustainable ethos.




Architectural Elements and Materiality
Cascading Volumes and Green Terraces
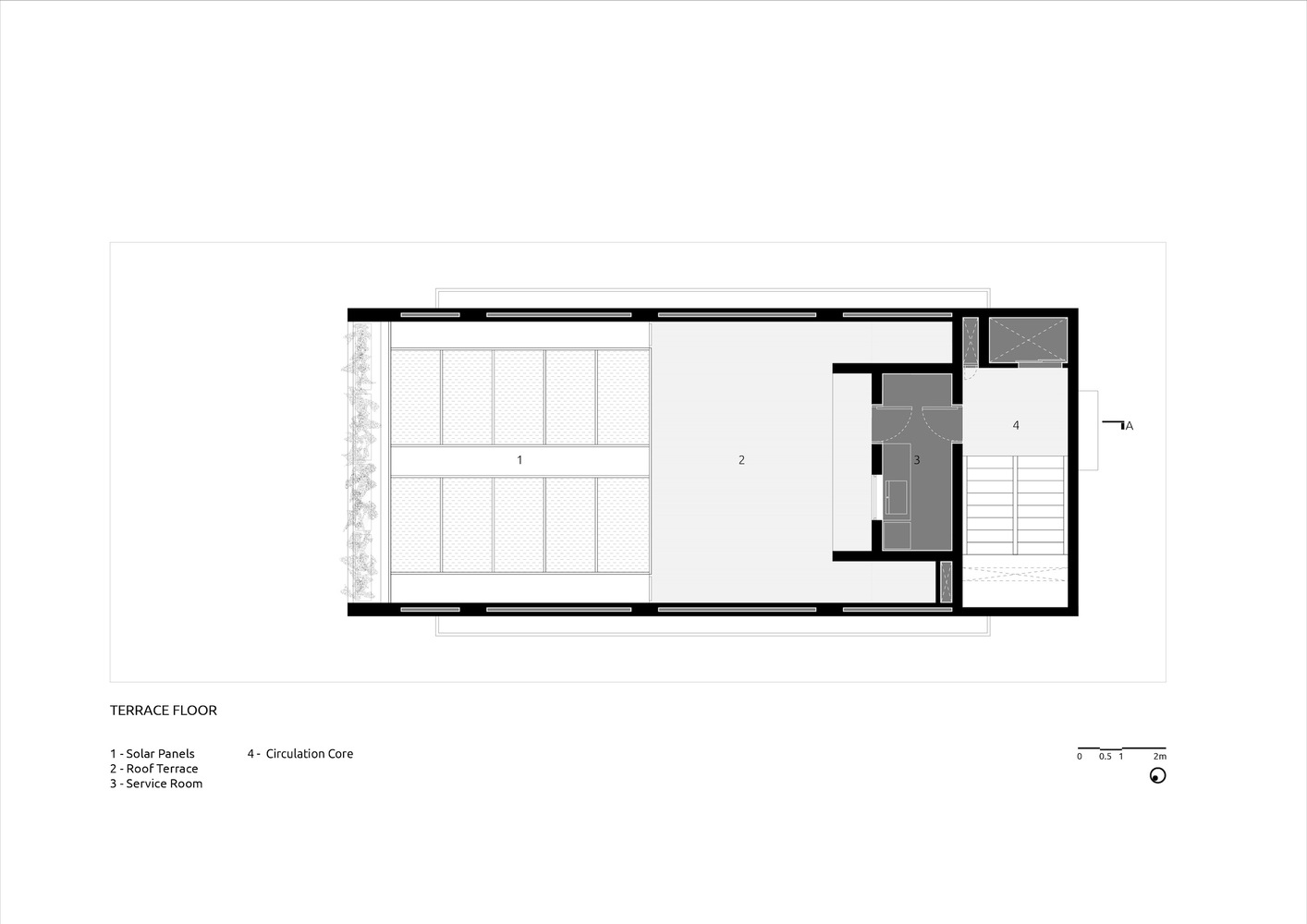
The project unfolds over three levels, each designed with specific functions in mind – from the studio on the ground floor to private living spaces above. The architectural volumes cascade back, creating green terraces that weave the outdoors into every floor, promoting a seamless inside-outside living experience.


Innovative Use of Materials
Plot 33 showcases a commitment to material sustainability, from the perforated metal sheets that envelop the dynamic volumes to the solar panels that both generate energy and provide shade. The use of reclaimed wood, waste marble, and glass bottles for terrazzo tiles exemplifies the project's circular approach to construction materials.


Sustainable Features and Spatial Dynamics
Open-Plan Living and Flexibility
The absence of internal walls, apart from essential privacy areas, embodies the fluidity of modern urban living. Furniture and spatial arrangements offer flexible configurations, adapting to changing needs while maintaining an open, airy atmosphere.





Natural Ventilation and Lighting
Strategic openings and skylights ensure that natural light and air permeate the entire structure, reducing the need for artificial lighting and cooling. The lightweight metal staircase further enhances this effect, acting as a conduit for environmental elements.




Plot 33 as a Model of Sustainable Urban Architecture
Plot 33 Residence and Studio by playball studio is more than just a building; it is a model of sustainable urban architecture that responds to its climate, context, and the needs of its inhabitants. Through its innovative design, material reuse, and environmental consciousness, it sets a precedent for future urban developments, proving that architecture can indeed be both beautiful and kind to our planet.




All photographs are work of Atik Bheda
Popular Articles
Popular articles from the community
An Miên Lumière Cafe by xưởng xép, Ho Chi Minh City, Vietnam
An industrial-inspired café where layered steel and warm light create a dynamic, immersive environment shaped by reflection, depth, and perception.
Treehouse Apartment: A Warm Timber Interior Blending Craft, Play, and Contemporary Living
Warm timber apartment with integrated treehouse, combining natural materials, craftsmanship, and playful design to create a flexible, family-oriented living environment.
The Ken Roberts Memorial Delineation Competition (Krob)
As the most senior architectural drawing competition currently in operation anywhere in the world, it draws hundreds of entries each year, awarding the very best submissions in a series of medium-based categories.
Atelier Macri Concept Store Interior Design by CASE-REAL
Atelier Macri store features a "ko" counter, walnut wood details, cork displays, blending retail, gallery, and seamless customer experiences.
Similar Reads
You might also enjoy these articles
Top 15 Architecture Competitions to Enter in 2026
From student-friendly idea competitions to prestigious international awards, here are the best architecture competitions open for entries in 2026. Updated regularly.
DIY & Engineering in Computational Design : Enter the BeeGraphy Design Awards
Showcase Your Creativity with Computational Design and Open Source Projects

Innovative Design Solutions: Award-Winning Projects from Recent Architecture Competitions
Exploring award-winning architectural projects shaping the future of design, sustainability, and community.
Explore Architecture Competitions
Discover active competitions in this discipline
The International Standard for Design Portfolios
The Global Benchmark for Architecture Dissertation Awards
The Global Benchmark for Graduation Excellence
Challenge to reimagine the Iron Throne
Comments (0)
Please login or sign up to add comments
No comments yet. Be the first to comment!