PR House by Plus Idea Studio: A Vietnamese Climate-Responsive House Design for Sustainable Family Living
A climate-responsive Vietnamese home by Plus Idea Studio blending raw materials, passive design, and flexible spaces for sustainable family living.
Introduction to a Context-Driven Home in Phan Rang
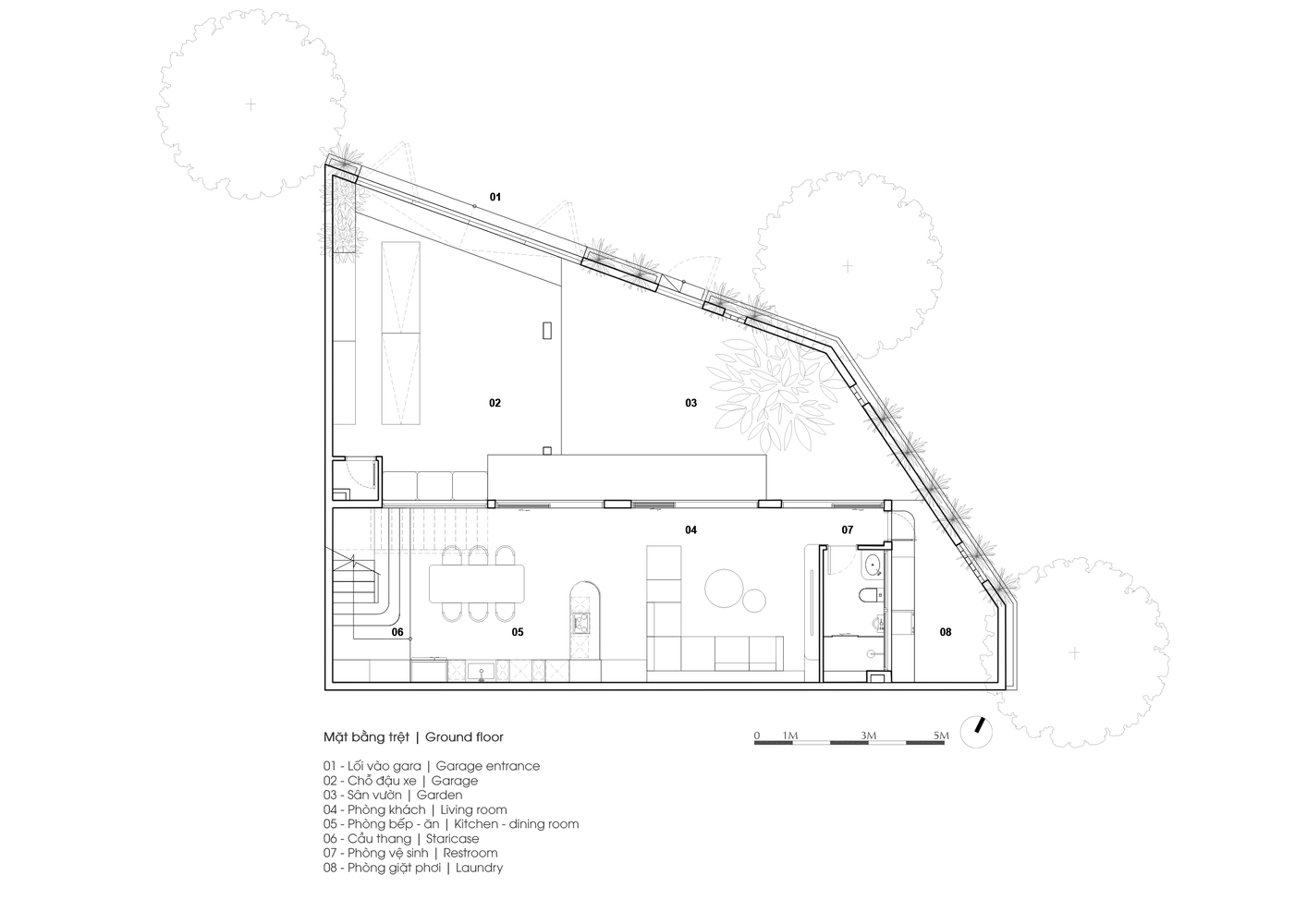
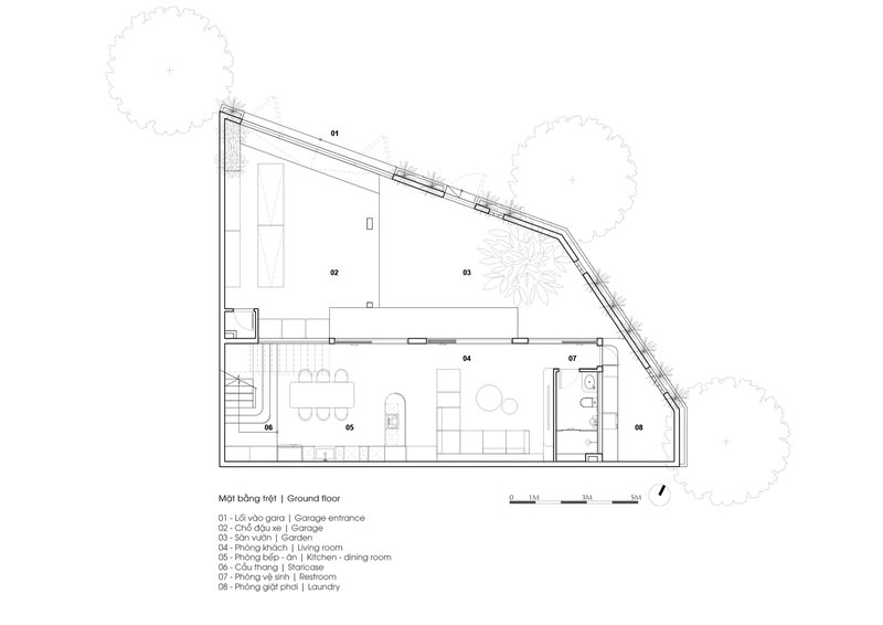
Situated in the coastal city of Phan Rang–Tháp Chàm, Vietnam, PR House by Plus Idea Studio is a 513 m² residence that exemplifies a thoughtful Vietnamese climate-responsive house design. Located in a high-density neighborhood exposed to intense sun and sea winds, this project is a model for sustainable living, blending architectural innovation with environmental sensitivity.




Designing for Climate and Community
Responding directly to the local climatic challenges, the architects minimized direct solar gain while maximizing the cooling effects of natural sea breezes. The house, built on a compact 178 m² plot, comprises a ground floor, upper floor, and rooftop, organized to promote natural ventilation and shade. Elements such as wide eaves, dense vegetation, and shading devices are integrated into the façade to reduce heat while ensuring daylight enters softly throughout the day.




Open Plan Living to Enhance Family Connection
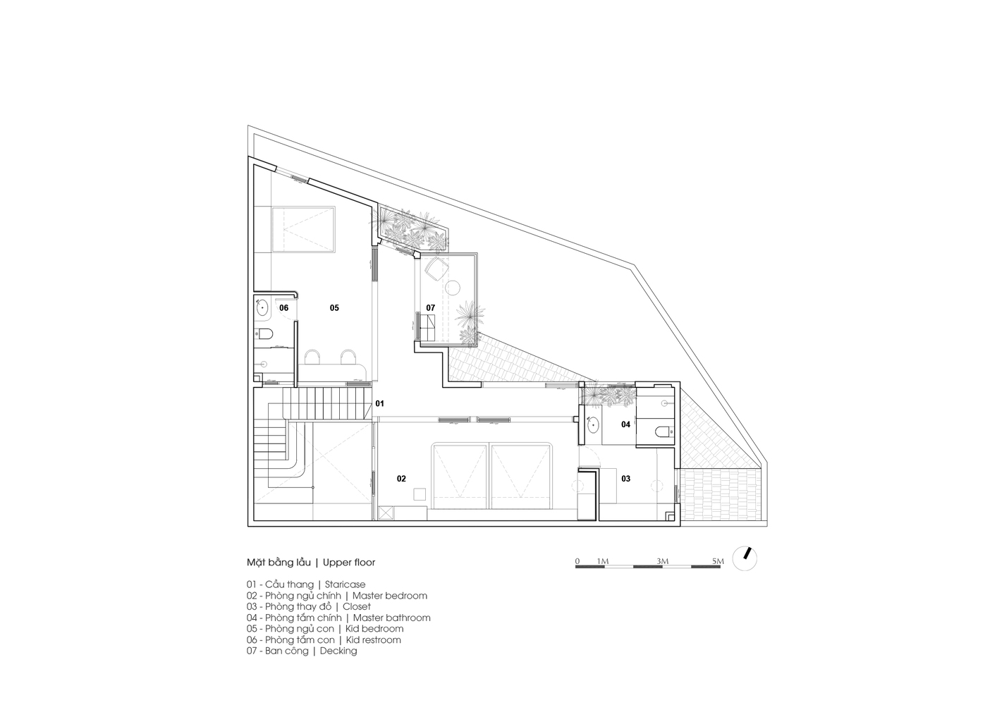
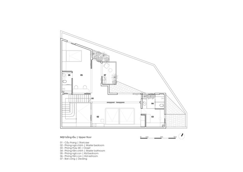
PR House was designed for a young couple with two children. The ground floor is open and fluid, allowing living, dining, and kitchen areas to merge without rigid partitions. This encourages frequent communication and shared experiences among family members. The upper level continues this open concept, using sliding partitions instead of conventional walls to create adaptable spaces that shift between private and communal as needed.




Sustainable Materials and Raw Finishes
Material choices in PR House reflect both sustainability and local identity. Rather than conventional tile or plaster finishes, the design embraces exposed raw concrete for walls, ceilings, and floors. This honest use of material adds character while reducing maintenance and energy-intensive finishes. The concrete double-slab system is structurally robust and also facilitates precise integration of technical infrastructure, maintaining the minimalist aesthetic.




Lighting and Ambience
Carefully orchestrated lighting plays a key role in shaping the home's ambiance. Directional, warm-toned fixtures contrast with the cool material palette to create a welcoming and intimate environment. These lighting decisions complement the architecture’s natural strategies, enhancing the overall comfort and spatial quality.




Architectural Expression of Sustainability
PR House goes beyond conventional domestic architecture. It is a spatial expression of sustainability, demonstrating how a Vietnamese climate-responsive house design can harmonize environmental efficiency, family intimacy, and contemporary aesthetics. The use of natural ventilation, passive cooling techniques, and thoughtful zoning underscores the home’s adaptability in a changing climate.





A Model for Modern Vietnamese Residential Architecture
In blending vernacular strategies with modern spatial principles, Plus Idea Studio crafts a home that is both future-ready and rooted in tradition. PR House stands as a prototype for new residential developments in tropical climates—an architecture that is honest, climate-conscious, and deeply humane.




All the photographs are works of Paul Phan