Privacy-Focused Home Design in Bandung: A Tour of YT House by Pranala Associates
Explore YT House in Bandung, a masterclass in privacy-focused home design that seamlessly blends indoor comfort with natural elements.
In the bustling urban landscape of Bandung, Indonesia, privacy in residential design has become increasingly sought after. YT House, designed by Pranala Associates, stands as a beacon of how architecture can embrace seclusion while maintaining a connection with nature.




Exploring the Architectural Vision of YT House
Design Philosophy and Layout
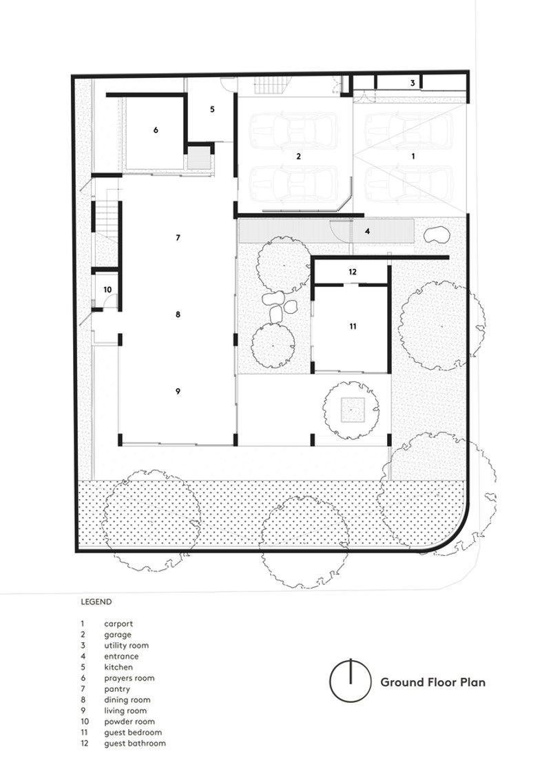
Located in a dense area of southern Bandung, YT House is strategically designed to shield its inhabitants from the public eye while offering serene views of the natural surroundings. The architects have utilized a smart placement of trees around the property's perimeter, ensuring that the interior spaces open to views of greenery rather than the busy streets.



Spatial Configuration and Natural Elements
Pranala Associates employed a strict grid system to harmonize the transition from outdoor to indoor spaces. The house's structure and layout are meticulously planned to enhance airflow and natural light, reducing the need for artificial cooling even in Bandung’s relatively warmer climate.



Key Features of YT House
Emphasis on Privacy and Openness
The ground floor hosts a versatile living and dining area adjacent to a private prayer room, which can be isolated or integrated into the wider space as needed, perfect for the homeowner who frequently entertains. The design ensures floor continuity to facilitate social gatherings, enhancing the functional aspect of the spaces.



Innovative Use of Materials and Patterns
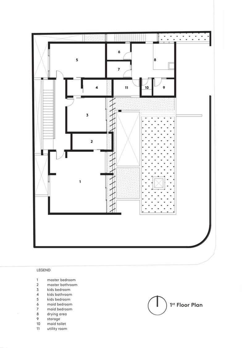
YT House features unique architectural details inspired by the kikkou pattern, which symbolizes longevity. This motif is elegantly integrated into the living room ceiling through decorative faux rattan and extends to wooden screens in the bedrooms, which not only add to the aesthetic but also bolster privacy. These screens allow for subdued sunlight to permeate the spaces without compromising seclusion.


Integrating Indoor and Outdoor Environments
Green Spaces and Natural Ventilation
Large openings in the design invite ample light and create a breezy atmosphere throughout the house. The bedroom on the second floor overlooks a lush rooftop garden, further enhancing the connection to nature. This thoughtful integration of green spaces within the urban setup is a testament to privacy-focused home design in Bandung.





Material and Textural Harmony
The architects’ choice of materials—from the flooring to the ceiling treatments—reflects a commitment to creating a cohesive and serene home environment. Each element is chosen not only for its functional benefits but also for its ability to create a warm and inviting atmosphere.





Redefining Privacy in Urban Architecture
YT House by Pranala Associates is more than just a residence; it’s a paradigm of how privacy can be artistically woven into the fabric of urban architecture. This project stands out as a pinnacle of privacy-focused home design in Bandung, offering valuable insights into creating tranquil urban retreats amidst bustling city life.





All photographs are work of Mario Wibowo Photography
Popular Articles
Popular articles from the community
Atelier Macri Concept Store Interior Design by CASE-REAL
Atelier Macri store features a "ko" counter, walnut wood details, cork displays, blending retail, gallery, and seamless customer experiences.
Treehouse Apartment: A Warm Timber Interior Blending Craft, Play, and Contemporary Living
Warm timber apartment with integrated treehouse, combining natural materials, craftsmanship, and playful design to create a flexible, family-oriented living environment.
Louis Malle Cinema: A Limestone Cultural Landmark Revitalizing Community Life in Prayssac
Limestone cinema extension with public forecourt, blending heritage and modern design to create flexible cultural spaces and strengthen community interaction.
Inverted Architecture Installation by Studio Link-Arc: Exploring the Intersection of Architecture and Living Organisms
Inverted Architecture Installation by Studio Link-Arc blends mycelium, sustainability, inverted design, ecological cycles, and urban adaptive architecture in Shenzhen.
Similar Reads
You might also enjoy these articles
Top 15 Architecture Competitions to Enter in 2026
From student-friendly idea competitions to prestigious international awards, here are the best architecture competitions open for entries in 2026. Updated regularly.
DIY & Engineering in Computational Design : Enter the BeeGraphy Design Awards
Showcase Your Creativity with Computational Design and Open Source Projects

Innovative Design Solutions: Award-Winning Projects from Recent Architecture Competitions
Exploring award-winning architectural projects shaping the future of design, sustainability, and community.
Explore Architecture Competitions
Discover active competitions in this discipline
The International Standard for Design Portfolios
The Global Benchmark for Architecture Dissertation Awards
The Global Benchmark for Graduation Excellence
Challenge to reimagine the Iron Throne
Comments (0)
Please login or sign up to add comments
No comments yet. Be the first to comment!