Radisson Blu Hotel Kaş: A Masterpiece of Mediterranean Hotel Design
The Radisson Blu Hotel Kaş blends Mediterranean design with modern luxury, offering an immersive, sustainable hotel experience in Kaş.
The Radisson Blu Hotel in Kaş, designed by Öznur Çaglayan Architectural Design Studio, is a stunning reflection of Mediterranean hotel design that seamlessly blends the region’s rich history with contemporary elegance. Situated in the picturesque town of Kaş, Antalya, Turkey, the hotel exemplifies a delicate balance between modern comfort and traditional Mediterranean architectural aesthetics. The design of this hotel not only enhances the visitor experience but also harmonizes with the natural beauty of the surroundings, capturing the essence of the Mediterranean.




Introduction to Radisson Blu Hotel Kaş
The Radisson Blu Hotel Kaş stands as a symbol of sophisticated Mediterranean hotel design, nestled in the serene coastal town of Kaş. The hotel's architecture pays homage to the ancient history of the town while embracing the sleek, modern demands of today's hospitality sector. Designed to offer a balance between comfort, privacy, and luxury, this hotel complex is a perfect example of a seamless integration of nature and architecture.





The Design Concept: A Fusion of Tradition and Modernity
The design process of the Radisson Blu Hotel Kaş began with a deep understanding of the region’s geographical features, historical influences, and natural environment. The architecture effortlessly blends traditional Mediterranean design elements, such as stone facades and earth-tone colors, with contemporary materials and minimalistic aesthetics. The design aims to provide an innovative hotel experience while respecting the region’s historical context and natural beauty.



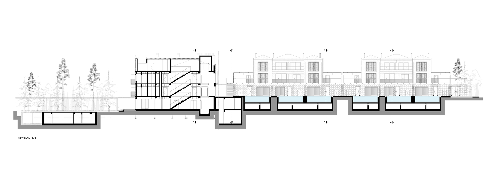
The hotel is divided into two main sections: the villa zone and the hotel block. The villas, featuring private pools and terraces, create secluded oases for relaxation, designed in a way that connects indoor and outdoor spaces, an essential element of Mediterranean architecture. The villa facades, with their continuous permeability, reflect the harmony between nature and the built environment.



The Hotel Block: A Modern Space for Social Interaction
The hotel block, designed with the goal of promoting social interaction, is positioned to offer guests panoramic views of the Mediterranean. The architectural design of this section is focused on creating spacious, inviting spaces where guests can relax, socialize, and enjoy the surrounding landscape. The hotel block’s walls extend naturally from the stone base of the hillside, providing a connection to the natural world while maintaining the building's sense of warmth and intimacy.



The communal areas within the hotel, such as the reception, lobby, and lounge, were designed with comfort and social engagement in mind. The materials used in these spaces are carefully chosen to reflect the local culture, while the open, airy designs create a sense of inclusiveness and tranquility. Guests are welcomed into a space that combines the essence of Kaş’s traditional architecture with modern design sensibilities.



Sustainability and Environmental Responsibility
One of the key considerations in the design of the Radisson Blu Hotel Kaş was its environmental impact. The architects took great care to integrate sustainable practices throughout the design process. The materials used, such as local stone and eco-friendly finishes, ensure that the hotel blends with its surroundings. Additionally, the hotel implements waste management systems, energy conservation, and water preservation techniques, which aim to protect the natural beauty of Kaş and minimize the overall environmental footprint.



A Mediterranean Experience: Indoor and Outdoor Harmony
The hotel’s outdoor spaces are as meticulously designed as the indoor areas. With indigenous trees and plants reflecting Kaş’s natural vegetation, the garden spaces provide a serene environment for guests to enjoy. The elevated pool area serves as a focal point of the design, arranged in tiers to maximize the spectacular views of the Mediterranean Sea. The design of these outdoor spaces enables a seamless transition between the interior and the exterior, offering guests a complete Mediterranean experience.


The separation of sunny and shaded areas through thoughtful landscaping ensures that the outdoor spaces can be enjoyed throughout the day, regardless of the time of year. The emphasis on natural beauty in these outdoor zones reflects the spirit of Mediterranean living, where the outdoors and the indoors are interconnected.


The Material Palette: A Tribute to Kaş’s Craftsmanship
The material palette of the Radisson Blu Hotel Kaş draws inspiration from the local architectural heritage of Kaş. The use of earth tones, stone facades, and wooden details pays tribute to the traditional craftsmanship seen in the town's historical homes. This careful selection of materials allows the hotel to feel rooted in its environment while maintaining a modern edge. Local “village plaster,” a technique passed down through generations, is used to achieve a timeless aesthetic that reflects the beauty of the Mediterranean.




An Invitation to Experience Kaş
Radisson Blu Hotel Kaş is more than just a place to stay; it is an invitation to experience the unique charm of Kaş. From its seamless integration with the surrounding natural landscape to its modern take on Mediterranean design, the hotel offers an immersive experience that celebrates the spirit of this captivating coastal town. With every design choice, the Radisson Blu Hotel Kaş conveys a sense of belonging, where the past and present coexist in perfect harmony.


All Photographs are work of İbrahim Özbunar