Rdom 2 House: Green Roof House Design by Šercel Švec in Lužianky, Slovakia
Slovakia's Rdom 2 House by Šercel Švec unites green roof, CLT interiors, passive systems, hillside site into sustainable family living.
Rdom 2 House by Šercel Švec is a 266 square meter exploration of green roof house design that fuses modern minimalism, passive environmental strategy, and site-responsive planning on a sloped parcel at the edge of Lužianky near Nitra, Slovakia. Commissioned by a client seeking durable, contemporary, and eco-friendly architecture, the home pushes beyond conventional suburban typologies by embedding itself in the land, calibrating massing to orientation, and integrating active and passive systems that support long-term sustainable living.




Site And Conceptual Approach
Located at the end of a quiet blind street overlooking a nearby golf course, the gently sloping site invited a low, elongated volume that cuts into grade rather than sitting atop it. The flat-roofed, single-storey mass steps and recesses in response to topography, using the earth’s thermal inertia and landscape screening to moderate exposure. From the North and East the house presents a compact, confident profile; from the South and West the form breaks apart, yielding terraces, recesses, and ground-level glazing that extend daily life outward into the garden.




Threshold Sequence And Weather Mediation
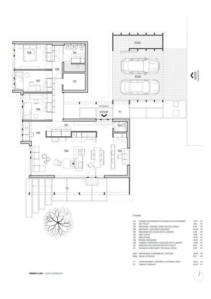
Arrival occurs from the North, where the house shifts to carve a protected entrance court linked to a detached carport and storage volume. A covered terrace binds these elements and acts as a climatic buffer—shielding from northern storms while reducing solar overload from the South through projection and shade. This intermediate outdoor threshold softens the move from street to home and sets up the project’s ongoing theme of transitional zones between interior and landscape.





Day And Night Zones In Section And Plan
The main open interior combines entry, living, dining, kitchen, and work space in a contiguous social core with direct access to the garden. Ceiling height in this daily-use zone increases slightly relative to the rest of the house, amplifying light and volume without significant energy penalty. Private bedrooms—including the main suite and children’s rooms—orient to the West and nestle deeper into the slope, lowering the façade and using the hillside as thermal mass. A central corridor links day and night wings and also serves the main bathroom, technical room, and a library niche, creating efficient circulation without wasted hallway space.




Light Management And Orientation
Large ground-level openings along the garden edge dissolve the boundary between interior life and landscape, while the recessed western façade tempers afternoon sun. Northern-facing service areas and bathrooms rely on skylights to secure daylight without heat gain. By modulating façade height, recess, and glazing proportion to orientation, the design reduces cooling loads and enhances visual comfort across seasons.




Material Language: Monochrome Outside, Warm CLT Within
Exterior expression is deliberate and restrained. Wood, coarse plaster, and fine plaster are coordinated in a monochromatic white palette that emphasizes line, rhythm, and the volumetric gradation of the building as it steps with terrain. Surface texture shifts—rough to smooth—register depth and light across planes. Inside, contrast arrives in the warmth of exposed CLT panels, whose grain animates the otherwise disciplined interior shell. The pairing of cool, abstract exterior and tactile interior underscores the project’s dual commitment to modern form and human comfort.


Integrated Passive And Active Sustainability Systems
Environmental performance anchors the green roof house design strategy. Photovoltaic panels harvest on-site solar energy. A rainwater retention tank captures roof runoff for non-potable uses and landscape support. The extensive green roof—planted with grasses and perennials—improves thermal stability, especially in hot months when evapotranspiration and shading reduce roof surface temperatures. Beneath, an accumulation base plate stores thermal energy, evening out diurnal swings. Exterior screening systems manage solar gain, while mechanical ventilation with heat recovery (recuperation) draws from a ground exchanger to precondition incoming air, lowering energy demand and improving indoor air quality.





Indoor–Outdoor Continuity And Everyday Use
Direct garden contact from the main living spaces encourages year-round engagement with the landscape and extends usable living area beyond conditioned floor plates. Covered outdoor zones enable al fresco dining in varied weather; low western glazing frames ground-level views for bedrooms partially set into the slope, reinforcing connection without exposure. The result is a residence scaled to family life that lives far larger than its footprint through landscape integration.




Health, Comfort, And Longevity
The client sought not only ecological responsibility but also a healthy domestic environment. Natural materials, daylight access, controlled ventilation, and moderated temperatures contribute to interior comfort. Durable exterior finishes and regionally appropriate construction detailing support longevity with low maintenance, aligning environmental stewardship with long-term value.


Rdom 2 House demonstrates how green roof house design can be scaled to a modest single-storey family residence without sacrificing architectural clarity or environmental performance. By cutting into the hillside, choreographing protected thresholds, differentiating day and night zones, and layering passive and active systems—from CLT interiors to photovoltaics and rainwater harvesting—Šercel Švec delivers a refined, future-ready home that is as responsive to climate and site as it is to family life.



All the photographs are works of Tomáš Manina
Popular Articles
Popular articles from the community
20 Most Popular Commercial Architecture Projects of 2025
From sustainable market concepts to heritage factories, the commercial buildings and proposals that drew the most attention on uni.xyz this year.
Split House: A Compact Urban Home Blending Privacy, Light, and Flexible Living in Japan
Compact Japanese home featuring DOMA space, flexible café potential, passive lighting, privacy zoning, and sustainable urban living design.
Magic Box Office Barcelona Innovative Sustainable Workplace Design
Innovative sustainable office design featuring triangular form, ceramic façade, flexible interiors, natural light optimization, and creative workspace for modern work culture.
Similar Reads
You might also enjoy these articles
20 Most Popular Commercial Architecture Projects of 2025
From sustainable market concepts to heritage factories, the commercial buildings and proposals that drew the most attention on uni.xyz this year.
Free Architecture Competitions You Can Enter Right Now
No entry fees, real prizes. Here are the best free architecture competitions open for submissions in 2026.
Top 15 Architecture Competitions to Enter in 2026
From student-friendly idea competitions to prestigious international awards, here are the best architecture competitions open for entries in 2026. Updated regularly.
DIY & Engineering in Computational Design : Enter the BeeGraphy Design Awards
Showcase Your Creativity with Computational Design and Open Source Projects
Explore Architecture Competitions
Discover active competitions in this discipline
The International Standard for Design Portfolios
The Global Benchmark for Architecture Dissertation Awards
The Global Benchmark for Graduation Excellence
Challenge to reimagine the Iron Throne
Comments (0)
Please login or sign up to add comments
No comments yet. Be the first to comment!