Renovated German Chalet Design in São Paulo: A Blend of Tradition and Modernity
This article explores the renovation of the Giudice House in São Paulo, blending traditional German chalet design with modern architecture.
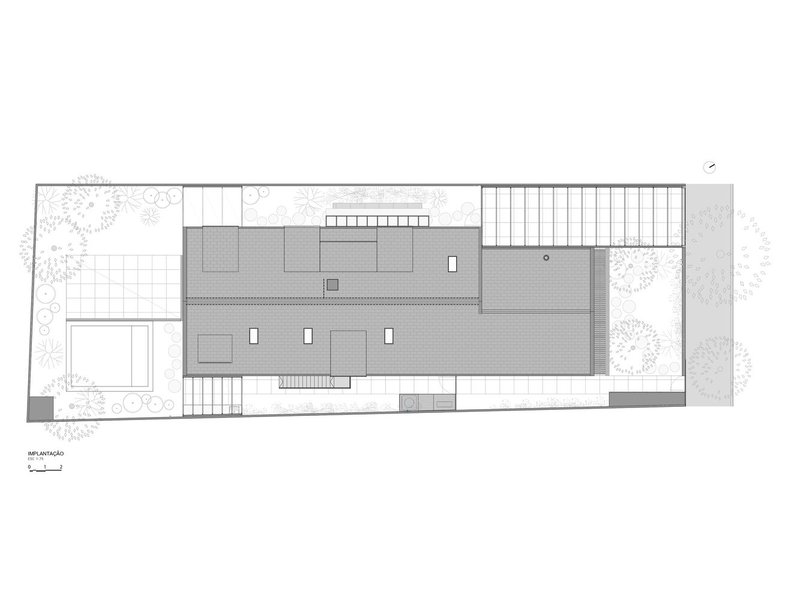
Nestled in the wooded neighborhood of Alto de Pinheiros, São Paulo, the Giudice House stands as a testament to the harmonious blend of traditional German chalet design with contemporary architectural elements. The project, masterfully executed by ARKITITO Arquitetura in 2022, showcases a renovation that respects the original architectural value while introducing modern living solutions. This article delves into the journey of transforming the Giudice House into a modern home that prioritizes integrated living and thermal comfort without sacrificing its cozy, traditional appeal.






The Design Concept
Preserving the German Chalet Aesthetic
The initial premise of the Giudice House renovation was to respect the building's architectural significance. Originally characterized by its steeply pitched wooden roof, stone-clad walls, and wooden plank ceiling, the house evoked the charm of a traditional German chalet. The design team, led by Chantal Ficarelli, Tito Ficarelli, and Stefano Fernandes, embarked on this project with the goal of preserving these key features while adapting the space to meet the needs of a family with teenage children.




Embracing Contemporary Living
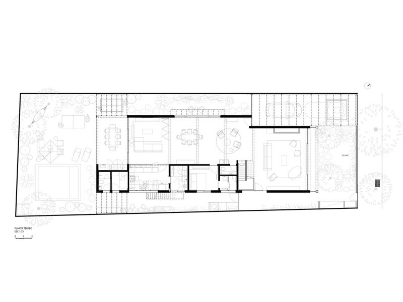
The challenge was to transform the fragmented layout of the house to allow for more natural lighting, ventilation, and integrated living spaces. By removing the attic slab, the living room's ceiling height was doubled to over 6 meters, showcasing the beautifully restored wooden trusses. The removal of partition walls facilitated a seamless flow between the social wing, kitchen, and circulation areas, creating a generous living and leisure space.




Architectural Strategies for Natural Light
To overcome the scarcity of natural light, the renovation introduced new glass windows on the main façade and utilized light-toned materials to reflect light. This strategy not only brightened the interior but also promoted visual permeability between the indoor spaces and the entrance garden. The addition of a metal structure portico, reminiscent of a pergola, filters light into the entrance, enhancing the welcoming ambiance.





Outdoor Connectivity and Material Use
The outdoor areas were thoughtfully redesigned to connect with the interior spaces. A new gourmet area facing the pool creates a lively space for family gatherings, with terracotta-colored painting and glazed tiles adding vibrancy to the design. Inside, the use of different natural textures and shades, such as porcelain flooring, white-painted surfaces, and Tauari wood planks, enhances the sense of spaciousness and comfort.



Furniture Selection and Interior Design
The interior design reimagines the traditional chalet style through the careful selection of furniture. Family-owned pieces are combined with new works by Brazilian designers, and scavenged items made of solid wood, creating a unique blend of rural retreat simplicity with urban house formality.





The Giudice House by ARKITITO Arquitetura is a prime example of how a renovation can respect and preserve architectural heritage while introducing modern elements to meet contemporary living standards. This renovated German chalet design in São Paulo stands as a beacon of innovative architecture, proving that tradition and modernity can coexist harmoniously, offering a comfortable and integrated living space for its residents.


All photographs are work of Ricardo Faiani
Popular Articles
Popular articles from the community
A Contemporary Take on Iranian Residential Architecture
A modern interior design in Mashhad that reinterprets brick, light, and spatial flow to create a warm, contemporary residential architecture.
Louis Malle Cinema: A Limestone Cultural Landmark Revitalizing Community Life in Prayssac
Limestone cinema extension with public forecourt, blending heritage and modern design to create flexible cultural spaces and strengthen community interaction.
Atelier Macri Concept Store Interior Design by CASE-REAL
Atelier Macri store features a "ko" counter, walnut wood details, cork displays, blending retail, gallery, and seamless customer experiences.
Treehouse Apartment: A Warm Timber Interior Blending Craft, Play, and Contemporary Living
Warm timber apartment with integrated treehouse, combining natural materials, craftsmanship, and playful design to create a flexible, family-oriented living environment.
Similar Reads
You might also enjoy these articles
The Ken Roberts Memorial Delineation Competition (Krob)
As the most senior architectural drawing competition currently in operation anywhere in the world, it draws hundreds of entries each year, awarding the very best submissions in a series of medium-based categories.
Waterfront Redevelopment and Urban Revitalization in Mumbai: Forging a New Dawn for Darukhana
A transformative waterfront redevelopment project reimagining Darukhana’s shipbreaking heritage into an inclusive urban future.
OUT-OF-MAP: A Call for Postcards on Feminist Narratives of Public Space
Rhizoma Design and Research Lab invites artists, designers, architects, researchers, and students to reflect on how feminist perspectives can reshape public space. Selected works will be exhibited in Barcelona, October 2026. Submissions open until 15 April 2026.
Documentation Work on Buddhist Wooden Temple
Architectural syncretism and cultural hybridity: A comparative study of the Buddhist temples in Chattogram Hill tracks
Explore Architecture Competitions
Discover active competitions in this discipline
The International Standard for Design Portfolios
The Global Benchmark for Architecture Dissertation Awards
The Global Benchmark for Graduation Excellence
Challenge to reimagine the Iron Throne
Comments (0)
Please login or sign up to add comments
No comments yet. Be the first to comment!