Renovated Warehouse Palermo: Revitalizing a historic warehouse into a modern office and showroom in Palermo, Argentina
Revitalizing Palermo's historic warehouse into a contemporary office and showroom: Ana Smud, Daniel Zelcer, and Camila Jalife's transformative design.
The Niceto Office and Showroom project embarked on the expansion and restoration journey of an aging warehouse nestled in the vibrant Palermo neighborhood of Buenos Aires. This architectural endeavor, led by Ana Smud, Daniel Zelcer, and Camila Jalife, aimed to breathe new life into the space, transforming it into a dynamic hub for offices, warehouses, and exhibition spaces. The team seamlessly blended preservation and innovation, crafting a contemporary haven while paying homage to the property's historical character.








Preserving Heritage: A Tale of Two Buildings
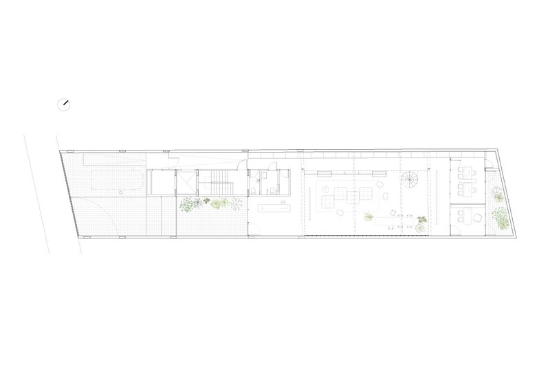
The unique challenge faced by the architects lay in the existing dual structures on the property – a dilapidated sausage-shaped house at the front and a sturdy mechanical workshop warehouse towards the rear. Bridging the two was a courtyard, a vital element that brought natural light and ventilation to both structures. The design decision hinged on preserving this courtyard as the nucleus, fostering a connection between the old and the new.




Design Concept: Courtyards and Creativity
In an unconventional move, the team chose to position the creative area in the existing warehouse, valuing its historical significance. The front side was designated for production areas and brand warehouses. This strategic decision created an intimate atmosphere within the creative spaces, fostering a sense of individuality and supporting the diverse activities of the company.






Natural Light and Connectivity: Central Design Axes
Central to the project's success was the incorporation of natural light and a harmonious coexistence with the exterior. The architects introduced a new courtyard at the back of the property, effectively sandwiching the warehouse between two courtyards. This thoughtful design not only ventilates and illuminates the delineated programs but also provides a seamless connection with the outdoor spaces. Stripping the warehouse's interior elements exposed its bare structure, contributing to the overall aesthetic appeal.













Spacious Aesthetics: Light Colors and Reflective Surfaces
To enhance the feeling of spaciousness, light colors were meticulously chosen for all spaces. A mirror coating on the dividing wall not only amplifies this perception of openness but also maximizes the infusion of natural light. The architects' attention to detail and commitment to preserving the warehouse's structure while infusing modern elements resulted in a revitalized space that seamlessly blends heritage and contemporary design.




The Niceto Office and Showroom project stands as a testament to the transformative power of architecture. Ana Smud, Daniel Zelcer, and Camila Jalife successfully navigated the delicate balance between preservation and innovation, breathing new life into a historic warehouse. This Palermo gem now serves as a dynamic and harmonious environment, where the past and the present coalesce, creating a space that celebrates Argentina's architectural heritage.
Popular Articles
Popular articles from the community
Flamboyant House by Juliana Camargo + Prumo Projetos
Modern Brazilian house integrating existing tree, pool, and volumes with glass, wood, and transitional spaces blending interior, exterior, and landscape seamlessly.
Treehouse Apartment: A Warm Timber Interior Blending Craft, Play, and Contemporary Living
Warm timber apartment with integrated treehouse, combining natural materials, craftsmanship, and playful design to create a flexible, family-oriented living environment.
Solar Steam: A Climate-Responsive Architecture That Redefines the Monument
A climate-responsive memorial architecture that transforms heat, decay, and time into a living system reflecting humanity’s ecological impact.
Louis Malle Cinema: A Limestone Cultural Landmark Revitalizing Community Life in Prayssac
Limestone cinema extension with public forecourt, blending heritage and modern design to create flexible cultural spaces and strengthen community interaction.
Similar Reads
You might also enjoy these articles
Top 15 Architecture Competitions to Enter in 2026
From student-friendly idea competitions to prestigious international awards, here are the best architecture competitions open for entries in 2026. Updated regularly.
DIY & Engineering in Computational Design : Enter the BeeGraphy Design Awards
Showcase Your Creativity with Computational Design and Open Source Projects

Innovative Design Solutions: Award-Winning Projects from Recent Architecture Competitions
Exploring award-winning architectural projects shaping the future of design, sustainability, and community.
Comments (0)
Please login or sign up to add comments
No comments yet. Be the first to comment!