Renovation of the Yangpu Bridge Water Quality Monitoring Station: A Net-Zero Carbon Industrial Revival by TJAD Atelier L+
Net-zero carbon renovation of a historic water monitoring station in Shanghai, blending sustainability, smart technology, and industrial heritage architecture.
Transforming Industrial Heritage on the Banks of the Huangpu River
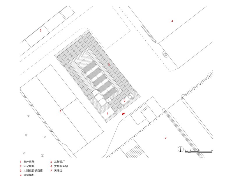
The Renovation of the Yangpu Bridge Water Quality Automatic Monitoring Station, led by TJAD Atelier L+, marks a bold transformation of an abandoned industrial facility into a net-zero carbon smart infrastructure. Located in the heart of Yangpu Riverside, Shanghai, this project revitalizes a small, long-forgotten building nestled among culturally rich industrial landmarks, including the Sanxin Cotton Mill and the Shanghai Power Station Auxiliary Equipment Factory.


Industrial Architecture Meets Sustainability
Once an obsolete water monitoring station, the structure had been left unused for years. The original building consisted of a modest 5m x 12m surface-level station and a hidden 380m² underground sewage treatment pond, forming a reinforced concrete box structure. Despite its deterioration, the core structure remained intact, making it ideal for adaptive reuse.



Maximum Preservation, Minimal Intervention
TJAD Atelier L+ adopted a strategy of “maximum preservation and lightweight intervention”. The goal was to conserve both above-ground and underground structural elements while enhancing functionality through thoughtful design. Key architectural moves include:
- Retention of original concrete textures and spatial layout
- Addition of a bamboo-steel corridor that wraps around the station
- Vertical integration between underground and surface-level zones
- Installation of water intake systems linked directly to the Huangpu River



A Model for Net-Zero Carbon Architecture
At the heart of this project lies a powerful vision: to create a Net-Zero Carbon Water Quality Monitoring Station. Achieving this required blending advanced sustainable technologies with intelligent architectural design.


Key Sustainable Features:
- Solar and Hydrogen Energy Storage Micro-Grid System: A pioneering hybrid system incorporating: Photovoltaic power generation Lithium battery storage Hydrogen electrolysis storage AI-based energy management system
- Photovoltaic power generation
- Lithium battery storage
- Hydrogen electrolysis storage
- AI-based energy management system
- Capillary Air Conditioning System: Integrated within waterproofed underground walls, this system ensures a consistent and comfortable indoor climate by regulating temperature and humidity through a buried capillary tunnel.
- Passive and Active Design Synergy: Passive solar orientation, material insulation, and active energy systems work in tandem to reduce the building’s carbon footprint across its entire life cycle.


From Infrastructure to Public Education Space
To further enhance community engagement, the project introduces an outdoor public exhibition zone centered on the theme of “Water.” This element transforms the site from a purely functional monitoring facility into a civic landmark that educates and inspires awareness around water sustainability and environmental protection.

Architectural Significance
The project is a remarkable example of how industrial renovation, green technology, and cultural preservation can coexist harmoniously. It is not only a technical showcase but also a symbol of Shanghai’s commitment to environmental innovation and sustainable development.

All Photographs are works of ZY Architectural photography
Popular Articles
Popular articles from the community
Biophilic Architecture and Regenerative Stadium Design: Biophilia Lagos by Rachel George
A regenerative stadium in Lagos transforms landfill into a living ecosystem through biophilic architecture, waste reuse, and environmental healing.
Paco Oria Estudio Rebuilds a 1949 Valencian Town House Around Timber, Terracotta, and a New Interior Patio
In Godella, Spain, a semi-detached house from the postwar era is stripped to its party walls and rebuilt with wood and ceramics.
BICA Arquitectos Buries a Coastal Home in a Man-Made Dune on Portugal's Tróia Peninsula
A 300-square-meter house of timber, sand mortar, and travertine dissolves into the dune landscape it helped regenerate on the Alentejo coast.
Architects Group RAUM Stacks Offset White Volumes into a Compact Office Tower in Busan
A 524-square-meter building on a tight corner lot in Haeundae plays with sunlight rights and shifting floor plates to create generous terraces.
Similar Reads
You might also enjoy these articles
Olio Towers: A Mid-Rise for Performers That Fuses Housing, Rehearsal, and Stage
Located blocks from Houston's Theater District, this modular tower stacks living units around a central performance atrium.
Oasis: Modular Green Housing Carved into Dhaka's Urban Fabric
A shortlisted Plugin Housing entry reclaims unauthorized settlements in Dhaka with stepped concrete volumes, green roofs, and ventilation-driven design.
Black Hole: A Floating Megastructure for the Post-Physical Era
Emiliano Mazzarotto envisions a spherical, self-scaling arena where e-sports, digital hotels, and holographic stadiums replace traditional public space.
Compact & Sustainable Living in Piraeus: A Four-Level Family Home Built Around Light and Air
A narrow townhouse in one of Greece's densest port cities uses a central atrium and passive strategies to house three generations under one roof.
Explore Architecture Competitions
Discover active competitions in this discipline
The International Standard for Design Portfolios
The Global Benchmark for Architecture Dissertation Awards
The Global Benchmark for Graduation Excellence
Challenge to reimagine the Iron Throne
Comments (0)
Please login or sign up to add comments
No comments yet. Be the first to comment!