Residential Renovation in Olhão: Preserving Industrial History While Embracing Modern Design
This article discusses a residential renovation in Olhão, Portugal, blending industrial history with modern design for sustainable living.
The Residential Renovation in Olhão by Estudio ODS is a remarkable example of how architectural design can successfully blend history and modernity. Located in Olhão, Portugal, the project transformed an early 20th-century industrial building once used for fish canning into a contemporary residence. The thoughtful preservation of the building's original structure and the addition of modern elements reflect the area’s rich industrial past while meeting contemporary needs. This article explores the design philosophy, architectural innovations, and sustainable practices integrated into this unique renovation.





Historical Context of the Olhão Industrial Area
The site of this renovation is located on Rua João da Rosa, once home to a group of five buildings constructed in the early 1900s. These buildings were originally part of the fish canning factories that played a crucial role during the two World Wars. Strategically positioned near the railway line, these factories facilitated the growing demands of the canning industry. Over time, the surrounding area evolved into a residential neighborhood as the industrial activity waned and the factories were demolished. The last remaining factory became the focal point for this residential project.





Preserving the Past: Retaining the Industrial Framework
The architectural approach taken by Estudio ODS focused on preserving the building’s strong historical elements. The original structure’s perimeter and volumetric envelope were retained, providing the basis for the new design. The northern façade, with its stone-framed openings, was meticulously preserved, while new window frames were introduced. A yellow pigment was added to highlight the transformation from industrial use to residential living, visually marking the building’s new function.






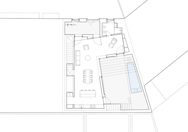
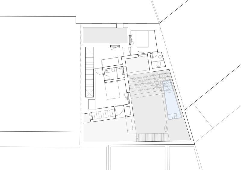
Designing for Modern Living: The Integration of New Architectural Elements
Inside, a modern architectural volume was inserted within the existing industrial framework. The design sought to retain the gabled form of the original structure while making necessary adjustments for residential use. One of the most significant interventions was the creation of two distinct courtyards that enhanced both the spatial experience and functionality of the home.


Courtyards as Central Design Features
The smaller entry courtyard serves as a transitional space, helping to separate the public and private areas of the home. It is designed to promote cross-ventilation and natural light, establishing a smooth flow between the exterior and interior. Meanwhile, the larger southern courtyard becomes the heart of the home’s outdoor living spaces. It provides ample room for relaxation and outdoor activities, benefiting from excellent solar orientation.


Interplay of Indoor and Outdoor Spaces
Access to the roof is facilitated through a series of terraces that lead up from the central courtyard. These terraces emphasize the relationship between the interior spaces and the exterior environment. In the courtyard, a small water feature and climbing plants add to the ambiance, creating a serene atmosphere. The sound of water and the play of light and shadow enrich the sensory experience, making this space ideal for quiet reflection.



Material Selection: Balancing the Old and the New
The material palette was carefully chosen to strike a balance between honoring the building's historical elements and introducing modern finishes. The original stone masonry was preserved, its texture and history celebrated within the design. New materials, including natural pigmented lime plasters, terrazzo flooring, natural stone, and exposed concrete, create a contrast that enhances the contemporary aesthetic while respecting the building’s industrial roots.


Sustainable Design and Modern Functionality
This renovation project not only preserved the architectural heritage of Olhão but also incorporated modern sustainable practices. The design prioritizes energy efficiency and the use of natural materials, ensuring that the home meets contemporary standards of comfort and environmental responsibility.


The Residential Renovation in Olhão by Estudio ODS successfully blends the old with the new, creating a modern home that respects and celebrates its industrial heritage. The integration of thoughtful design elements such as courtyards, terraces, and a balanced material palette highlights the importance of preserving history while adapting to modern needs. This project stands as a testament to how architecture can adapt and evolve, creating spaces that are both functional and reflective of their cultural context.


All photographs are works of Frederico Martinho
Popular Articles
Popular articles from the community
20 Most Popular Commercial Architecture Projects of 2025
From sustainable market concepts to heritage factories, the commercial buildings and proposals that drew the most attention on uni.xyz this year.
Free Architecture Competitions You Can Enter Right Now
No entry fees, real prizes. Here are the best free architecture competitions open for submissions in 2026.
Split House: A Compact Urban Home Blending Privacy, Light, and Flexible Living in Japan
Compact Japanese home featuring DOMA space, flexible café potential, passive lighting, privacy zoning, and sustainable urban living design.
TGK Nirasaki Plant: A Smart Factory Blending Technology, Landscape, and Wellness
Smart factory in Japan blending IoT manufacturing, scenic trail design, natural ventilation, and landscape integration to enhance user experience and sustainability.
Similar Reads
You might also enjoy these articles
Bamboo Housing Challenge 2026: Design Affordable, Sustainable Homes Using Bamboo
An international design competition by Bamboo U and IBUKU inviting architects and designers to reimagine affordable housing using bamboo — with the winning design built full-scale in Bali.
Computational Design & Education: Beegraphy Design Awards Introduces 7th Category (Featuring Jiyun's Innovative Approach)
Dive into Beegraphy’s 7th Design Awards category, where computational design meets education to create immersive, interactive learning tools, inspired by Jiyun’s work.
From Parametric Lighting to Urban Furniture: Join the 2nd Workshop in Beegraphy’s Computational Design Series
Dive into Cutting-Edge Design Techniques and Practical Applications with Industry Experts
Explore Architecture Competitions
Discover active competitions in this discipline
The International Standard for Design Portfolios
The Global Benchmark for Architecture Dissertation Awards
The Global Benchmark for Graduation Excellence
Challenge to design mud housing for contemporary communities
Comments (0)
Please login or sign up to add comments
No comments yet. Be the first to comment!