Restaurant Interior Design Lebanon: Father & Bun by Atelier130 Blends Nostalgia, Craft, and Spatial DramaRestaurant Interior Design Lebanon: Father & Bun by Atelier130 Blends Nostalgia, Craft, and Spatial Drama

Restaurant Interior Design Lebanon: Father & Bun by Atelier130 Blends Nostalgia, Craft, and Spatial Drama

UNI EditorialUNI Editorial
UNI Editorial published Story under Architecture on Apr 18, 2025

A Refined and Whimsical Dining Space Rooted in Cultural Heritage

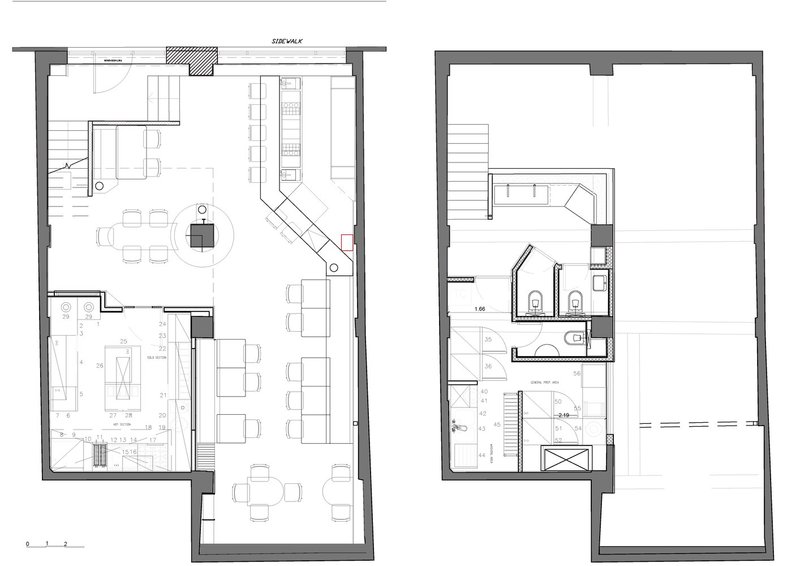
Father & Bun, a restaurant bar located in Lebanon and designed by Atelier130, stands as a compelling example of restaurant interior design in Lebanon that intertwines nostalgia, narrative, and craftsmanship. Spanning 150 square meters, the project references mid-century Manhattan venues and the cinematic charm of Wes Anderson, creating a distinct ambiance of elevated intimacy and raw elegance.

Challenging Site Becomes Design Inspiration

The project site came with significant spatial constraints, including a structural column, a narrow mezzanine layout, and a main floor positioned 90 cm below street level. The landlord's requirement to preserve a striking double-height stone wall from the original structure added further complexity — yet it became the soul of the design. Instead of concealing it, Atelier130 celebrated its natural presence, using it as the emotional and material anchor of the space.

Architectural Storytelling Through Materials and Layout

At the heart of the design is a commitment to authenticity. Exposed structural ceilings were left raw while acoustic foam panels, crafted by 21dB, were seamlessly integrated to improve sound quality without visual interference. The lighting strategy, designed in collaboration with PSLAB, focuses on discreet technical fixtures that cast dramatic, theatrical beams onto tables — transforming each dining moment into an intimate visual experience.

Harmonizing Functionality with Aesthetic Warmth

A key design move was cladding the lower half of the preserved stone wall with wood paneling, effectively concealing the kitchen while maintaining a clean visual language. This layering of materials not only addresses functional needs but also reinforces a sense of cozy sophistication. The spatial layout was deliberately compact, yet highly efficient, using architectural sleight of hand to create a generous, flowing experience.

Celebrating Local Craft Through Custom Furnishings

In a gesture of cultural and economic resilience, all furniture was custom-designed and locally crafted to support Lebanese artisans. Rich materials define the seating palette: velvet mustard-yellow and soft grey chairs, leather-wrapped bar stools, and deep green-topped tables with coffee-toned stainless steel bases. The chromatic warmth grounds the eclectic interiors in a cohesive visual narrative.

A Bar That Bridges Levels and Atmospheres

The restaurant's unique sunken positioning below the sidewalk level informed the spatial choreography. A descending staircase welcomes guests into the space, guiding them toward a sculptural bar — built in steel, clad in vertical wood, and topped with a green counter aligned to street height. This element acts as both a centerpiece and a functional threshold, blending art and utility.

Distinct Zones for a Layered Experience

The interior unfolds into two main zones. Beneath the mezzanine, a relaxed bar area offers casual seating for cocktails and bites. Deeper inside, a more intimate dining area emerges, defined by continuous bench seating lining three walls. This layout fosters communal experiences without compromising comfort or circulation. The clever use of narrow proportions enhances a sense of exclusivity and warmth.

A Surreal Mural Sets the Tone

Even before entering, the visual identity of Father & Bun asserts itself with a dramatic double-height mural visible through the facade. Painted using traditional church techniques, the artwork depicts a surreal, indulgent party — a tongue-in-cheek fusion of sacred and profane, art and appetite. This mural encapsulates the project’s ethos: storytelling through architecture, art, and cultural references.

A Cohesive Identity Built from Collaboration

The restaurant's interior architecture was developed in close collaboration with creative director Mo Al Ghossein, ensuring a holistic narrative that ties together branding, atmosphere, and materiality. Father & Bun is more than a dining venue — it is an immersive spatial journey shaped by history, humor, and handcrafted detail. In the broader context of restaurant interior design in Lebanon, it stands as a vibrant testament to the power of storytelling through space.

All photographs are works of Walid Rashid

UNI EditorialUNI Editorial

UNI Editorial

Where architecture meets innovation, through curated news, insights, and reviews from around the globe.

UNI EditorialUNI Editorial
Search in