Revitalizing Heritage: The Buenavista Cultural Center Transformation
Exploring the transformative refurbishment and extension of Madrid's Buenavista Cultural Center by Padilla Nicás Arquitectos, blending history with modern urban spaces.
In the bustling heart of Madrid, Spain, the Buenavista Cultural Center emerges as a beacon of architectural innovation, merging the past with the present. Led by the visionary duo Mariluz Sánchez Moral and Padilla Nicás Arquitectos, this project showcases a remarkable transformation. Spanning 2500 m², completed in 2023, and captured through the lens of José Hevia, it represents a milestone in cultural center architecture renovation.





The Vision Behind the Project
The refurbishment and extension of the Buenavista Cultural Center embarked on a unique mission: to weave an urban fabric connecting the inner courtyard with Cartagena Street's adjoining square. This initiative not only aimed to enhance the urban landscape but also to spotlight the historic Casa de Baños de la Guindalera's façades, integrating them back into the city's visual narrative.





Architectural Strategy and Design
Elevating Urban Space
To align with the project's ambitious program, the new addition elevates above ground, supported by slender pillars of concrete and steel. This architectural decision creates a versatile urban space beneath, adaptable to varying uses and schedules, thereby redefining public interaction with cultural institutions.






A Harmonious Ensemble
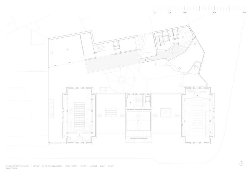
The project site, a 2000 m² trapezoid block, is home to structures of diverse ages and architectural expressions. The existing cultural center, a converted bathhouse from 1932, and a 2006 adjacent building, together with the new extension, form a cohesive urban ensemble. This strategic coexistence respects the site's historical essence while introducing contemporary dynamism.




Functional Distribution and Use
In the refurbished Casa de Baños, traditional functions like the library and assembly hall persist, honoring the building's established role in the community. Contrastingly, the new extension houses recreational and educational spaces, such as multi-purpose rooms and workshops, tailored to foster creative and cultural engagements.


Structural and Material Innovation
Supporting Large Spans
The covered urban space's creation necessitated a robust structure capable of spanning large distances. A sophisticated slab system with 95 cm high ribs facilitates this, extending its utility to sports halls and other large-scale activities without obstructions.




Aesthetic Dialogue Between Old and New
The restoration emphasizes the original mortars of the Casa de Baños, rejuvenating its façade while maintaining its character. This texture and tone continuity extends to the new building's lower floors, ensuring visual and material coherence. The upper floors introduce a modern twist with vertical porcelain pieces, subtly nodding to the neighborhood's brickwork tradition.





A New Chapter in Cultural Architecture
The Buenavista Cultural Center stands as a testament to thoughtful cultural center architecture renovation, balancing heritage preservation with contemporary needs. This project not only revitalizes a historic site but also reimagines its role in the urban fabric of Madrid, inviting community engagement and cultural exploration.



Looking Ahead: The Impact of Renovation on Cultural Spaces
As cities evolve, projects like the Buenavista Cultural Center highlight the potential of architectural interventions in redefining cultural landmarks. Through innovative design and respectful integration, such renovations can breathe new life into our communal spaces, ensuring their relevance and vitality for generations to come.



All photographs are work of José Hevia
Popular Articles
Popular articles from the community
Louis Malle Cinema: A Limestone Cultural Landmark Revitalizing Community Life in Prayssac
Limestone cinema extension with public forecourt, blending heritage and modern design to create flexible cultural spaces and strengthen community interaction.
Inverted Architecture Installation by Studio Link-Arc: Exploring the Intersection of Architecture and Living Organisms
Inverted Architecture Installation by Studio Link-Arc blends mycelium, sustainability, inverted design, ecological cycles, and urban adaptive architecture in Shenzhen.
An Miên Lumière Cafe by xưởng xép, Ho Chi Minh City, Vietnam
An industrial-inspired café where layered steel and warm light create a dynamic, immersive environment shaped by reflection, depth, and perception.
A Contemporary Take on Iranian Residential Architecture
A modern interior design in Mashhad that reinterprets brick, light, and spatial flow to create a warm, contemporary residential architecture.
Similar Reads
You might also enjoy these articles
Bamboo Housing Challenge 2026: Design Affordable, Sustainable Homes Using Bamboo
An international design competition by Bamboo U and IBUKU inviting architects and designers to reimagine affordable housing using bamboo — with the winning design built full-scale in Bali.
Computational Design & Education: Beegraphy Design Awards Introduces 7th Category (Featuring Jiyun's Innovative Approach)
Dive into Beegraphy’s 7th Design Awards category, where computational design meets education to create immersive, interactive learning tools, inspired by Jiyun’s work.
From Parametric Lighting to Urban Furniture: Join the 2nd Workshop in Beegraphy’s Computational Design Series
Dive into Cutting-Edge Design Techniques and Practical Applications with Industry Experts
Introducing Sphere by UNI: Pioneering a New Era in AEC Industry
Unlocking Global Potential with BIM and Agile Management
Explore Architecture Competitions
Discover active competitions in this discipline
The International Standard for Design Portfolios
The Global Benchmark for Architecture Dissertation Awards
The Global Benchmark for Graduation Excellence
Challenge to reimagine the Iron Throne
Comments (0)
Please login or sign up to add comments
No comments yet. Be the first to comment!