Reviving Charm: The Lanoma Residence Federation House Renovation
The article explores the transformation of a Federation house into a modern, light-filled home while preserving its historical charm and details.
Nestled in the heart of East Launceston, Tasmania, the Lanoma Residence stands as a testament to the timeless elegance of Federation house renovation. With a design spearheaded by Licht Architecture, this 1914-built home has been meticulously transformed to meet the needs of a modern family while preserving its historical essence.


A Blend of History and Modernity
The Lanoma Residence project embarked on a journey to breathe new life into a Federation-era home, which, despite its character and charm, suffered from a lack of connection with its outdoor space. The renovation focused on removing an outdated lean-to, making room for a kitchen/dining extension that opens up to a new courtyard and extends the view to the backyard beyond.



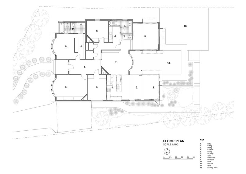
Enhancing Flow and Functionality
With a keen eye on improving the home's functionality, the floor plan was reimagined to streamline movement and integrate essential modern amenities such as an ensuite and laundry within the existing structure. This careful planning ensured that the charm of the old world seamlessly blends with the conveniences of the new.


Inviting Light and Nature Inside
A pivotal aspect of the Federation house renovation was to draw natural light deeper into the home, creating sunlit spaces that invite relaxation and connection with nature. The addition of a garden and terraced courtyard not only enhances the home's aesthetic appeal but also smoothly transitions the significant level difference between the indoors and the outdoors.



A Modern Interpretation of Federation Details
The renovation pays homage to the Federation details through a contemporary lens. Vaulted dining ceilings and external shade structures echo the archways of the original verandah, while sweeping curves throughout the house, from the bathroom shower to the transition between living spaces, add a playful yet elegant touch to the design.



A Celebration of Heritage and Home
The Lanoma Residence’s Federation house renovation stands as a vibrant example of how historical homes can be thoughtfully preserved and adapted for contemporary living. Through its thoughtful design and execution, Licht Architecture has ensured that this humble Federation home is not only a place of comfort and style but also a lasting legacy for generations to come.




All photographs are work of Anjie Blair
Popular Articles
Popular articles from the community
Flamboyant House by Juliana Camargo + Prumo Projetos
Modern Brazilian house integrating existing tree, pool, and volumes with glass, wood, and transitional spaces blending interior, exterior, and landscape seamlessly.
Louis Malle Cinema: A Limestone Cultural Landmark Revitalizing Community Life in Prayssac
Limestone cinema extension with public forecourt, blending heritage and modern design to create flexible cultural spaces and strengthen community interaction.
Inverted Architecture Installation by Studio Link-Arc: Exploring the Intersection of Architecture and Living Organisms
Inverted Architecture Installation by Studio Link-Arc blends mycelium, sustainability, inverted design, ecological cycles, and urban adaptive architecture in Shenzhen.
A Contemporary Take on Iranian Residential Architecture
A modern interior design in Mashhad that reinterprets brick, light, and spatial flow to create a warm, contemporary residential architecture.
Similar Reads
You might also enjoy these articles
The Ken Roberts Memorial Delineation Competition (Krob)
As the most senior architectural drawing competition currently in operation anywhere in the world, it draws hundreds of entries each year, awarding the very best submissions in a series of medium-based categories.
Waterfront Redevelopment and Urban Revitalization in Mumbai: Forging a New Dawn for Darukhana
A transformative waterfront redevelopment project reimagining Darukhana’s shipbreaking heritage into an inclusive urban future.
OUT-OF-MAP: A Call for Postcards on Feminist Narratives of Public Space
Rhizoma Design and Research Lab invites artists, designers, architects, researchers, and students to reflect on how feminist perspectives can reshape public space. Selected works will be exhibited in Barcelona, October 2026. Submissions open until 15 April 2026.
Documentation Work on Buddhist Wooden Temple
Architectural syncretism and cultural hybridity: A comparative study of the Buddhist temples in Chattogram Hill tracks
Explore Architecture Competitions
Discover active competitions in this discipline
The International Standard for Design Portfolios
The Global Benchmark for Architecture Dissertation Awards
The Global Benchmark for Graduation Excellence
Challenge to reimagine the Iron Throne
Comments (0)
Please login or sign up to add comments
No comments yet. Be the first to comment!