Ring on the Green Apartment: A Multifunctional Renovation by HAMS and Studio
A dynamic renovation blending residence, studio, and showroom, redefining urban apartment living with green layers and innovative design.
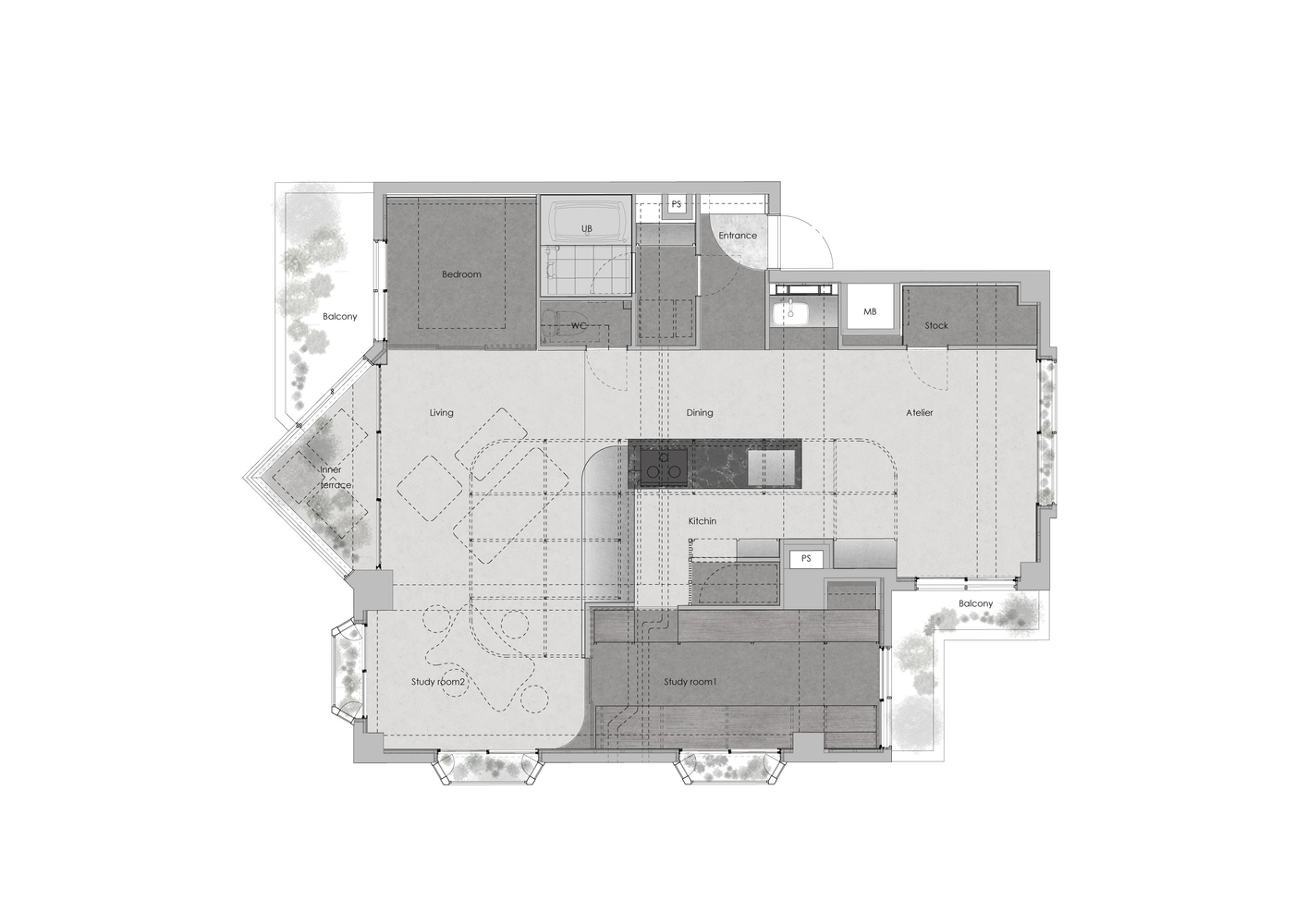
The Ring on the Green Apartment, located in Setagaya City, Japan, is a testament to the ingenuity and vision of its lead architect, Yota Hokibara, and the team at HAMS and Studio. This ambitious renovation project transforms a 90-square-meter second-floor apartment into a multifunctional space that merges residence, studio, office, and showroom under one roof.





Designing Around Existing Conditions
The project’s foundation lies in respecting the apartment's original architectural elements, including the "bright space with eight openings" and the aged materiality of the concrete structure. By emphasizing these characteristics, the renovation preserves the integrity of the original building while integrating modern functionality. A large, open-concept design connects the dining, living, kitchen, and studio areas into one fluid space, partitionable with sliding doors. This layout maximizes both airflow and line of sight, creating an inviting and adaptable environment.






The Central "Linkaged Ring"
A standout feature of the apartment is the "Linkaged Ring," a central hardware installation that anchors the design concept. Suspended from the ceiling, it traverses the core living areas, serving as both a visual and functional element. Comprising two steel flat bars, the ring integrates lighting fixtures above and below, making it a lighting baton for the studio space. Its sleek, sharp lines contrast with the raw, irregular concrete frame, highlighting the interplay between old and new.





Green Living in High-Density Tokyo
In a densely populated urban setting, privacy and comfort take precedence. The architects addressed this by creating a "Green Back" surrounding the one-room layout. This green layer, populated with plants and integrated into existing bow windows, provides a buffer between the apartment and its surroundings. Rounded inner sashes hide structural elements, while a four-layered system balances natural light, privacy, and thermal insulation. This innovative solution harmonizes the interior with the exterior, enhancing both aesthetics and functionality.





A Flexible Space for Modern Living
The renovation eliminates traditional residential markers, focusing instead on versatility. As a multifunctional space, the apartment adapts to the shifting needs of its occupants, seamlessly blending work and private life. The minimalist design emphasizes simplicity while creating an environment that evolves alongside the architects' lifestyle.








The Ring on the Green Apartment is a remarkable example of thoughtful design that reimagines residential spaces for modern, multifaceted living. Through its seamless integration of original architectural features, innovative additions like the Linkaged Ring, and nature-inspired solutions, the project redefines urban apartment living. HAMS and Studio have created a dynamic and adaptive space that not only meets current needs but anticipates future transformations.




All Photographs are work of Akira Nakamura
Popular Articles
Popular articles from the community
H&P Architects Stack a Vertical River of Brick and Greenery in Hanoi
A perforated terracotta tower in Dong Anh channels water, light, and air through eight staggered levels of domestic life.
Studio Gram Unfurls a Concrete Curve Through an Adelaide Queen Anne Villa
In Rose Park, a billowing concrete threshold stitches a century-old house to a sun-chasing pavilion organized around an existing pool.
BICA Arquitectos Buries a Coastal Home in a Man-Made Dune on Portugal's Tróia Peninsula
A 300-square-meter house of timber, sand mortar, and travertine dissolves into the dune landscape it helped regenerate on the Alentejo coast.
20 Most Popular Office Building Projects of 2025
From biophilic workspaces in India to net-positive energy offices in New Delhi, 20 office building projects that defined architecture in 2025.
Similar Reads
You might also enjoy these articles
Olio Towers: A Mid-Rise for Performers That Fuses Housing, Rehearsal, and Stage
Located blocks from Houston's Theater District, this modular tower stacks living units around a central performance atrium.
Oasis: Modular Green Housing Carved into Dhaka's Urban Fabric
A shortlisted Plugin Housing entry reclaims unauthorized settlements in Dhaka with stepped concrete volumes, green roofs, and ventilation-driven design.
Black Hole: A Floating Megastructure for the Post-Physical Era
Emiliano Mazzarotto envisions a spherical, self-scaling arena where e-sports, digital hotels, and holographic stadiums replace traditional public space.
Compact & Sustainable Living in Piraeus: A Four-Level Family Home Built Around Light and Air
A narrow townhouse in one of Greece's densest port cities uses a central atrium and passive strategies to house three generations under one roof.
Explore Architecture Competitions
Discover active competitions in this discipline
The International Standard for Design Portfolios
The Global Benchmark for Architecture Dissertation Awards
The Global Benchmark for Graduation Excellence
Challenge to reimagine the Iron Throne
Comments (0)
Please login or sign up to add comments
No comments yet. Be the first to comment!