Roche Fatale Social Housing Renovation: Transforming Urban Living Through Architectural Renewal
Roche Fatale Social Housing Renovation revitalizes Brussels’ residential blocks by merging historical restoration with modern extensions and sustainability.
Introduction to Social Housing Renovation
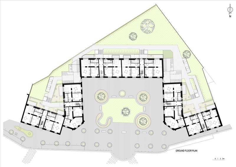
The Roche Fatale Social Housing Renovation project by P&P Architectes and Atelier d'Architecture A4 in Brussels, Belgium, exemplifies the transformative power of social housing renovation. This ambitious undertaking revitalizes a cluster of three aging residential buildings situated around a tree-lined square, enhancing both their aesthetic appeal and functional performance while preserving their historical character. The project reflects the growing importance of architectural interventions that address both heritage preservation and modern standards of living.


Context and Architectural Background
Located at the intersection of Rue de la Roche Fatale and Rue Montagne des Cerisiers, the housing complex is nestled within a verdant setting, closely connected to the nearby Georges Henri Park. Over the decades, the buildings underwent several alterations, particularly in the 1980s, which compromised their original architectural coherence. P&P Architectes and Atelier d'Architecture A4 were commissioned to reverse the disjointed transformations and elevate the quality of social housing through a thoughtful renovation process.


The design team embraced a dual approach, focusing on restoring the original façade details while introducing contemporary elements that enhance spatial efficiency, energy performance, and the overall livability of the apartments.


Restoring the Architectural Identity
One of the primary objectives of the social housing renovation was to restore the front façades to their original design. The architects replaced unsympathetic 1970s window frames with new installations that respect the proportions and divisions of the original openings. Entrance doors were likewise updated to align with the historical aesthetic. Heritage features on the façade were carefully restored, ensuring that the buildings’ architectural identity was reinstated.

The rear and side façades, lacking notable architectural elements, underwent a transformation aimed at improving insulation and thermal performance. These surfaces were clad with flat terracotta tiles, creating a visually understated yet durable envelope that complements the restored front elevations.

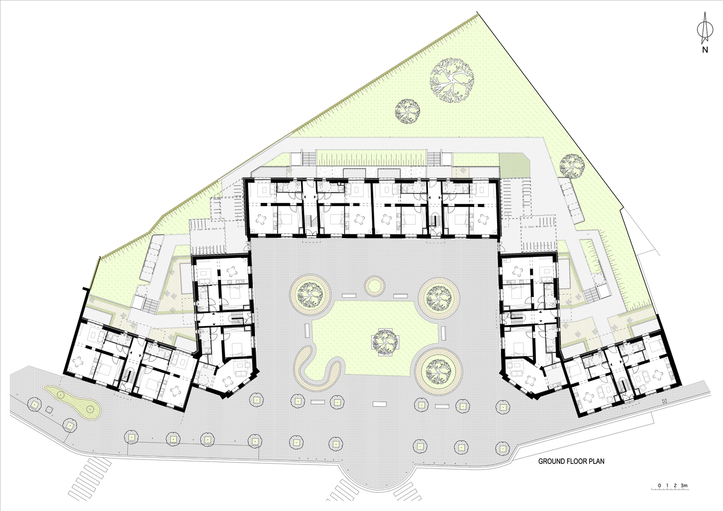
Spatial Reconfiguration and Vertical Circulation
A significant aspect of the social housing renovation involved the rational reorganization of interior spaces. The design sought to enhance spatial flow while maintaining the existing vertical circulation systems. This strategy minimized structural disruption while optimizing the budget, ensuring that the intervention was both cost-effective and architecturally coherent.

The reconfigured layouts addressed the evolving needs of contemporary residents, ensuring that each apartment was more spacious, better lit, and conducive to modern lifestyles.

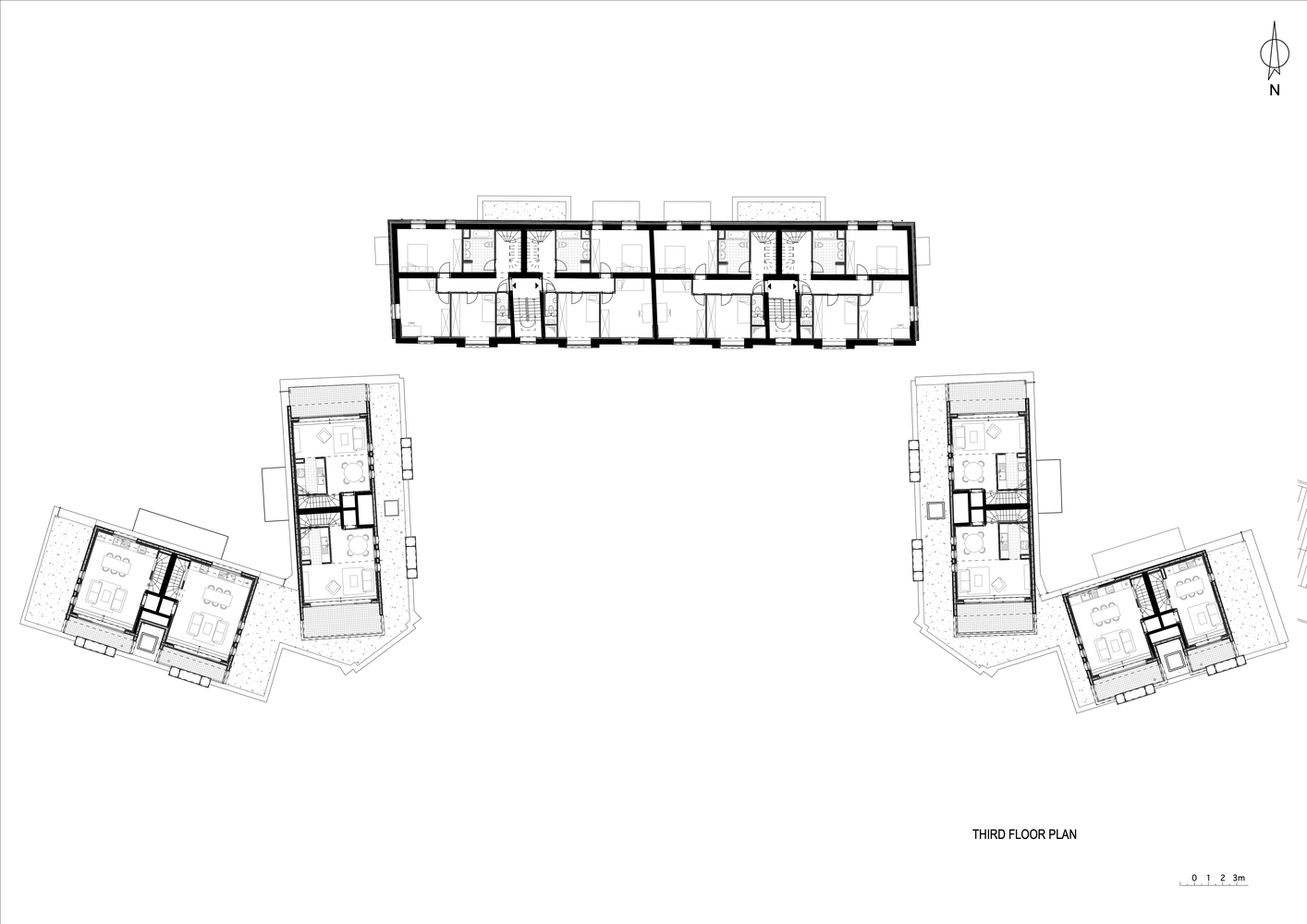
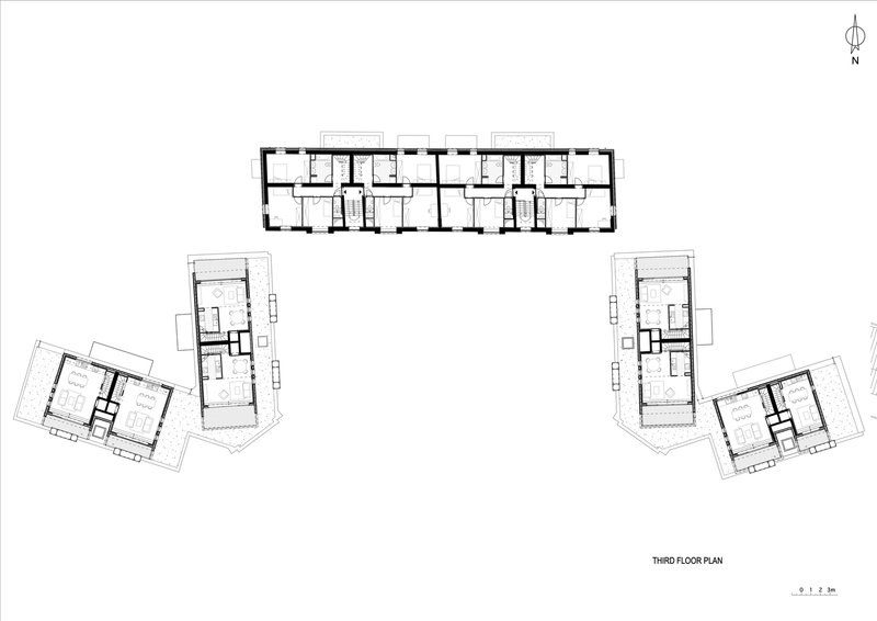
Addition of Lightweight Extensions
To increase the living area and bring the apartments in line with modern habitability standards, the architects introduced additional volumes at the rear façades and rooftops. These extensions were constructed using lightweight timber frameworks, reducing the structural load on the existing buildings. Clad in pre-patinated zinc siding in a heather-gray hue, the new additions establish a subtle contrast with the terracotta tiles and brickwork of the original structure.

The extensions are deliberately set back from the historical façades, ensuring that the modern interventions remain visually discreet while expanding the internal living spaces. This balance between contemporary functionality and historical sensitivity is a hallmark of the social housing renovation project.

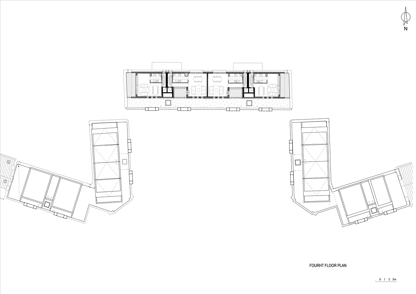
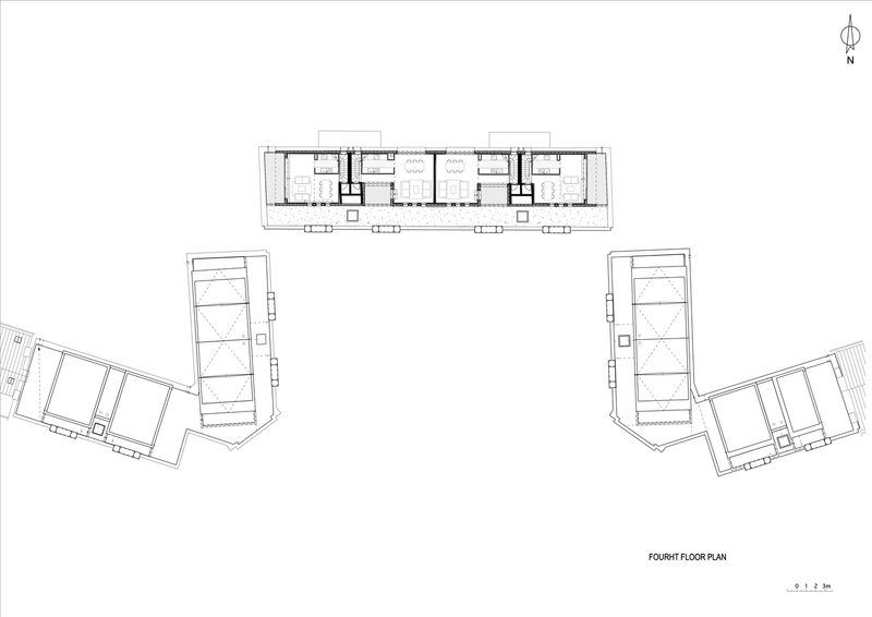
Roof Restoration and Volume Integration
The non-original pitched roofs, added during past alterations, were dismantled to restore the buildings’ original flat roof profiles. This approach allowed the architects to integrate new rooftop volumes seamlessly into the architectural composition. The restored roofline enhances the visual unity of the ensemble while providing additional interior space for upper-level apartments.


Enhancing Accessibility and Outdoor Spaces
The social housing renovation extended beyond the buildings themselves to improve the surrounding environment. Two existing pedestrian passages were preserved to ensure that residents, including those with reduced mobility, retained easy access to the inner courtyard. The rear garden was redesigned to function as a communal space accessible to all tenants, reinforcing the social dimension of the project.


Ground-floor apartments were enhanced with private terraces that extend into the garden. These outdoor spaces are separated from shared areas by carefully curated plantings, fostering both privacy and a sense of community. Bicycle parking facilities were integrated into the landscape design, promoting sustainable urban mobility.


Sustainability and Energy Efficiency
Energy efficiency was a fundamental consideration throughout the social housing renovation. The addition of insulation to the rear and side façades significantly improved thermal performance, reducing heating demands and enhancing indoor comfort. The lightweight timber and zinc extensions not only minimized the structural load but also aligned with sustainable construction principles.

The project exemplifies how social housing renovation can achieve energy efficiency without compromising architectural quality. By combining heritage restoration with contemporary construction techniques, the architects delivered a future-proof residential environment that meets the demands of both residents and environmental standards.

Social Impact and Urban Revitalization
Roche Fatale Social Housing Renovation stands as a model for urban revitalization through architectural renewal. The project demonstrates that social housing can transcend its utilitarian origins to become a vibrant, dignified living environment. By restoring the buildings’ historical identity while introducing thoughtful extensions and modern amenities, the architects fostered a sense of pride and ownership among residents.

The intervention also contributes to the broader urban fabric of Brussels, enhancing the visual quality of the neighborhood while promoting inclusivity and sustainable living. This project underscores the role of social housing renovation as a catalyst for positive change in cities.

The Roche Fatale Social Housing Renovation by P&P Architectes and Atelier d'Architecture A4 is a compelling example of how architectural intervention can elevate the standard of social housing. Through a meticulous blend of heritage preservation, modern extensions, and energy-efficient solutions, the project transforms aging residential buildings into contemporary homes tailored to the needs of urban residents.


This social housing renovation not only enhances the quality of life for tenants but also revitalizes the neighborhood, setting a benchmark for future renovation projects in Belgium and beyond. It stands as a testament to the enduring potential of social housing when approached with architectural vision and social responsibility.


All Photographs are works of Nicolas Da Silva Lucas
Popular Articles
Popular articles from the community
Atelier Macri Concept Store Interior Design by CASE-REAL
Atelier Macri store features a "ko" counter, walnut wood details, cork displays, blending retail, gallery, and seamless customer experiences.
Fifth NRE Jazz Club – De Bever Architecten: Eindhoven’s Revitalized Cultural Hub
Historic gas factory transformed into Fifth NRE Jazz Club blending modern sustainability, jazz culture, dining, and heritage architecture seamlessly.
Gads Hill Early Learning Center by JGMA: Adaptive Reuse Shaping Community-Focused Educational Architecture
Adaptive reuse transforms fragmented structure into vibrant early learning center with playful façade, natural light, and community-focused sustainable design.
Similar Reads
You might also enjoy these articles
The Ken Roberts Memorial Delineation Competition (Krob)
As the most senior architectural drawing competition currently in operation anywhere in the world, it draws hundreds of entries each year, awarding the very best submissions in a series of medium-based categories.
Waterfront Redevelopment and Urban Revitalization in Mumbai: Forging a New Dawn for Darukhana
A transformative waterfront redevelopment project reimagining Darukhana’s shipbreaking heritage into an inclusive urban future.
OUT-OF-MAP: A Call for Postcards on Feminist Narratives of Public Space
Rhizoma Design and Research Lab invites artists, designers, architects, researchers, and students to reflect on how feminist perspectives can reshape public space. Selected works will be exhibited in Barcelona, October 2026. Submissions open until 15 April 2026.
Documentation Work on Buddhist Wooden Temple
Architectural syncretism and cultural hybridity: A comparative study of the Buddhist temples in Chattogram Hill tracks
Explore Architecture Competitions
Discover active competitions in this discipline
The International Standard for Design Portfolios
The Global Benchmark for Architecture Dissertation Awards
The Global Benchmark for Graduation Excellence
Challenge to reimagine the Iron Throne
Comments (0)
Please login or sign up to add comments
No comments yet. Be the first to comment!