S House: A Masterpiece of Minimalist Residential Architecture by PL.Architekci
A minimalist house in Poland shaped like an “S” blends seamlessly with nature through sculptural form and serene interiors.
A Sculptural Residence Immersed in Nature in Poznań, Poland
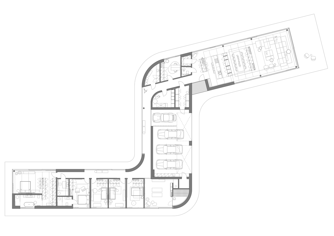
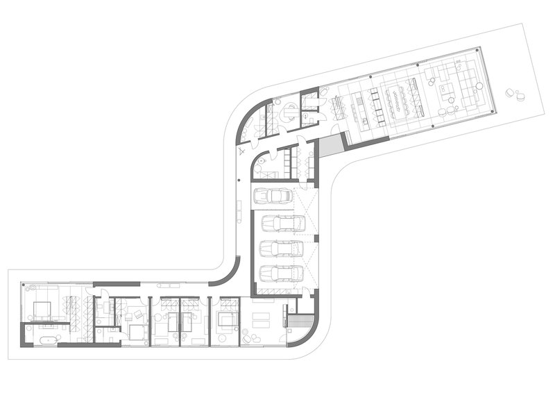
The S House, designed by PL.Architekci, is a visionary example of minimalist residential architecture that dissolves the boundaries between built form and nature. Located in Poznań, Poland, the 439-square-meter residence is sculpted with a sinuous S-shaped layout that responds organically to the site’s mature forested landscape. The home is not only named after the clients, whose surname begins with “S,” but also embodies the curving, spatial flow of its namesake in both plan and experience.



From the project's inception, the architects prioritized preserving the existing trees, leading to a winding architectural form that adapts rather than dominates the landscape. The result is a structure that winds gracefully between the trees, integrating the architecture with the environment and erasing the boundary between home and garden.



Architecture as a Garden Walk: Blending Indoors and Outdoors
Rather than separating the house from its surroundings, the design treats the home as a continuation of the garden. With glazed corridors that meander through the plot, the spatial experience is akin to a meditative walk. Each turn of the corridor offers framed views and direct interaction with nature, allowing light, greenery, and seasonal change to animate the interiors. The architecture becomes a quiet observer of the landscape, enhancing the experience of living within a sculptural pavilion that is as much garden as it is home.



This formal gesture elevates the S House beyond a mere dwelling—it becomes a living, breathing structure that changes with the environment and invites constant sensory engagement. Its monochrome facade and minimalist interior palette contribute to its character as a sculptural object within the forest.



Adaptive Roof Design: Formal Constraints Reimagined
While the initial concept was for a single-story horizontal volume, local zoning regulations mandated sloped roofs with a minimum pitch. In response, PL.Architekci introduced a folded, concertina-style roof with a 20-degree slope. This intervention not only complied with regulations but also introduced dynamic spatial conditions within the house. The roof’s undulating geometry translates into varying ceiling heights and spatial drama inside.



Rather than hiding the roof structure, the architects celebrated it by exposing its folds within the interiors. This decision enriches the architectural identity of each room while accommodating hidden lighting, acoustics, and mechanical systems. The spatial rhythm of the interior aligns with the roof geometry, allowing function and form to work together seamlessly.



Silence, Contemplation, and the Essence of Minimalism
The interiors of the S House are guided by the same philosophy that informs its architecture: silence, clarity, and contemplative living. The color palette is restrained and serene. White resin floors extend throughout the space, blending effortlessly with the surrounding concrete edge that frames the exterior. This whiteness is subtly offset by oak-veneered built-ins in dark brown, adding warmth and texture to the refined material composition.



Every design decision echoes the commitment to minimalism—not in the sense of emptiness, but as a conscious reduction to the essential. Art is present, but carefully selected. Lighting is unobtrusive and integrated. The space becomes a gallery for both nature and the soul, offering moments of stillness and introspection.



A Holistic Vision of Architecture and Interior
For PL.Architekci, there is no separation between architecture and interior design. In the S House, this philosophy manifests in the seamless continuity between external form and internal atmosphere. Each material, angle, and line participates in a holistic architectural language. The interplay of structure, view, volume, and material creates a singular spatial narrative that supports both everyday living and a contemplative relationship with the surroundings.




The S House is not only the most ambitious project in the office’s portfolio, but it is also a complete embodiment of their design values. It is a place where art, architecture, and landscape are fused into a minimalist whole—a residence that resonates with both aesthetic restraint and emotional depth.




A New Standard for Minimalist Residential Architecture
With the S House, PL.Architekci set a new benchmark in minimalist residential architecture. By embracing site constraints, preserving natural surroundings, and integrating interior and exterior design into one continuous experience, the project serves as a quiet but powerful argument for architecture that is both disciplined and deeply humane.



This is a home where architecture frames life—fluidly, gently, and without excess. It is minimalist, but never cold; sculptural, but never self-serving. It is a space of deep thought, sensory pleasure, and harmonious coexistence with nature.



All Photographs are works of Tom Kurek
Popular Articles
Popular articles from the community
Inverted Architecture Installation by Studio Link-Arc: Exploring the Intersection of Architecture and Living Organisms
Inverted Architecture Installation by Studio Link-Arc blends mycelium, sustainability, inverted design, ecological cycles, and urban adaptive architecture in Shenzhen.
A Contemporary Take on Iranian Residential Architecture
A modern interior design in Mashhad that reinterprets brick, light, and spatial flow to create a warm, contemporary residential architecture.
Louis Malle Cinema: A Limestone Cultural Landmark Revitalizing Community Life in Prayssac
Limestone cinema extension with public forecourt, blending heritage and modern design to create flexible cultural spaces and strengthen community interaction.
Flamboyant House by Juliana Camargo + Prumo Projetos
Modern Brazilian house integrating existing tree, pool, and volumes with glass, wood, and transitional spaces blending interior, exterior, and landscape seamlessly.
Similar Reads
You might also enjoy these articles
The Ken Roberts Memorial Delineation Competition (Krob)
As the most senior architectural drawing competition currently in operation anywhere in the world, it draws hundreds of entries each year, awarding the very best submissions in a series of medium-based categories.
Waterfront Redevelopment and Urban Revitalization in Mumbai: Forging a New Dawn for Darukhana
A transformative waterfront redevelopment project reimagining Darukhana’s shipbreaking heritage into an inclusive urban future.
OUT-OF-MAP: A Call for Postcards on Feminist Narratives of Public Space
Rhizoma Design and Research Lab invites artists, designers, architects, researchers, and students to reflect on how feminist perspectives can reshape public space. Selected works will be exhibited in Barcelona, October 2026. Submissions open until 15 April 2026.
Documentation Work on Buddhist Wooden Temple
Architectural syncretism and cultural hybridity: A comparative study of the Buddhist temples in Chattogram Hill tracks
Explore Architecture Competitions
Discover active competitions in this discipline
The International Standard for Design Portfolios
The Global Benchmark for Architecture Dissertation Awards
The Global Benchmark for Graduation Excellence
Challenge to reimagine the Iron Throne
Comments (0)
Please login or sign up to add comments
No comments yet. Be the first to comment!