Sanders Mello Building by Buro/S Architects: A Masterpiece of Historic Building Renovation
This article explores the historic building renovation of Sanders Mello Building, blending heritage preservation with sustainable, modern orthodontic design.
Preserving Heritage Through Thoughtful Design
Buro/S Architects have brilliantly transformed the Sanders Mello Building in Wassenaar, The Netherlands, into a modern orthodontic clinic, demonstrating the power of historic building renovation. Originally constructed in the early 17th century, this national monument once served as a farmhouse and later a shop. The architects approached the project with deep respect for its historic value, carefully preserving its distinctive gabled roof and narrow front façade while introducing contemporary architectural elements that meet today’s healthcare needs.



Blending History with Contemporary Architecture
The Sanders Mello Building’s renovation balances preservation and innovation. The existing structure, characterized as a “deep house” with a floor plan stretching deep into the plot, was restored both internally and externally. Buro/S Architects added a new extension to the right and rear, designed for a possible future vertical addition, making the building adaptable for coming decades.


At the front, the architects introduced a striking new façade composed of two dark brown brick piers flanking a glass wall that reveals the silhouette of the historic structure. The main entrance, crafted from a glazed steel frame in a sophisticated earth green, and a polished dark green concrete lintel above, seamlessly link the old and new elements.


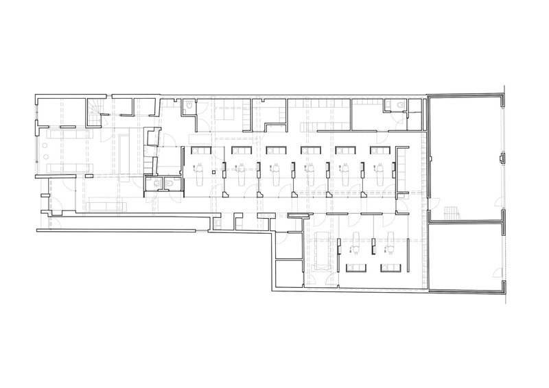
Designing for Functionality and Patient Comfort
Inside, the clinic offers eight treatment rooms and essential supporting facilities. The interior was carefully reimagined to preserve original details like exposed brick walls and historic ceiling colors while improving functionality for a modern orthodontic practice. Patients enter through the new entrance, greeted by a polished concrete reception desk and a waiting area within the monument’s original section.


A skylight positioned along the axis of the main entrance floods the corridor with daylight, guiding visitors through the space and enhancing orientation. The separation of patient and staff circulation routes creates a serene and hygienic environment, ensuring smooth clinic operations.

Sustainable Innovation in Historic Building Renovation
Sustainability was a guiding principle in this renovation. The new extension incorporates sustainable materials and energy-efficient mechanical systems, integrated thoughtfully to preserve the monument’s historic value. Buro/S Architects’ sensitive approach illustrates how historic building renovation can simultaneously protect architectural heritage and meet contemporary standards for energy performance and environmental responsibility.


Honoring the Past, Embracing the Future
The transformation of the Sanders Mello Building shows that honoring the past does not mean freezing it in time. By blending authentic materials, historic craftsmanship, and cutting-edge architectural design, Buro/S Architects have created a sustainable, functional, and visually stunning space. The Sanders Mello Building now stands as an inspiring example of how thoughtful renovation can breathe new life into historic architecture while safeguarding its legacy for future generations.




All the photographs are works of Aiste Rakauskaite
Popular Articles
Popular articles from the community
Solar Steam: A Climate-Responsive Architecture That Redefines the Monument
A climate-responsive memorial architecture that transforms heat, decay, and time into a living system reflecting humanity’s ecological impact.
Alton Cliff House: A Harmonious Retreat by f2a Architecture in Lake Country, Canada
Alton Cliff House blends corten steel, prefabrication, and sustainable design, creating a luxurious, energy-efficient retreat perched on Canadian cliffs.
Atelier Macri Concept Store Interior Design by CASE-REAL
Atelier Macri store features a "ko" counter, walnut wood details, cork displays, blending retail, gallery, and seamless customer experiences.
Inverted Architecture Installation by Studio Link-Arc: Exploring the Intersection of Architecture and Living Organisms
Inverted Architecture Installation by Studio Link-Arc blends mycelium, sustainability, inverted design, ecological cycles, and urban adaptive architecture in Shenzhen.
Similar Reads
You might also enjoy these articles
Free Architecture Competitions You Can Enter Right Now
No entry fees, real prizes. Here are the best free architecture competitions open for submissions in 2026.
Top 15 Architecture Competitions to Enter in 2026
From student-friendly idea competitions to prestigious international awards, here are the best architecture competitions open for entries in 2026. Updated regularly.
DIY & Engineering in Computational Design : Enter the BeeGraphy Design Awards
Showcase Your Creativity with Computational Design and Open Source Projects

Innovative Design Solutions: Award-Winning Projects from Recent Architecture Competitions
Exploring award-winning architectural projects shaping the future of design, sustainability, and community.
Explore Architecture Competitions
Discover active competitions in this discipline
The International Standard for Design Portfolios
The Global Benchmark for Architecture Dissertation Awards
The Global Benchmark for Graduation Excellence
Challenge to reimagine the Iron Throne
Comments (0)
Please login or sign up to add comments
No comments yet. Be the first to comment!