ÔCO Architects Crack Open a Narrow Lisbon Lot to Build a Home Around a Diagonal Courtyard
A historic renovation in Lisbon splits a deep, slender footprint into two volumes joined by light, air, and a carefully angled open court.
Lisbon's older residential fabric is full of deep, narrow lots that tunnel away from the street, often starved of light at their centers. The typical renovation response is to insert a lightwell or push a small patio into the plan. ÔCO Architects took a more aggressive position with SB 44, a historic building renovation in the city's dense urban core. They split the footprint into two distinct volumes and carved a diagonal courtyard between them, turning a liability of proportion into the building's central organizing idea.
What makes the project worth studying is not the gesture itself, which is simple enough on paper, but how thoroughly it restructures the experience of a very constrained site. Every room, every stair, every corridor is calibrated to the courtyard's presence. Natural light enters from directions you would not expect in a building this tight. Circulation becomes spatial rather than purely functional. The result is a residence that feels substantially larger and more varied than its footprint suggests.
Street Face and Context


The street entry retains the building's historic character: a limestone surround framed by a border of blue azulejo tiles that anchors the project firmly within Lisbon's architectural traditions. There is no attempt to announce a contemporary intervention from the sidewalk. The renovation's ambitions are directed inward.
From the rear courtyard, the picture shifts entirely. White rendered facades rise in stacked balconies punctuated by timber screens, all of it clean and precise against the sky. The contrast between the preserved public face and the openly modern courtyard elevations is deliberate. ÔCO lets the two architectural languages coexist without forcing a hybrid.
The Diagonal Court as Engine


The courtyard is not ornamental. It is the building's lung, its primary light source, and its circulation spine all at once. A young tree stands in a gravel bed framed by white horizontal beams, giving the narrow outdoor room a measured, almost cloistered quality. Because the court is set on a diagonal rather than aligned with the lot boundaries, it widens sightlines and admits light at oblique angles that a perpendicular cut never could.
A corridor runs alongside the court beneath a rhythmic timber slat pergola, its exposed concrete ceiling left honestly above. The pergola filters light into shifting bars across the white walls, transforming a passage that might have been purely transitional into one of the most atmospheric moments in the house. It is a small piece of architecture doing a great deal of work.
Concrete Stairs as Vertical Sculpture



The staircase deserves its own discussion. Cast in concrete with chamfered corners and a continuous light slot running alongside the flights, it spirals upward through a vaulted volume that softens what could have been a brutally heavy element. The curved metal balustrade is restrained, almost delicate against the mass of the treads. ÔCO clearly invested serious design energy here, and it shows.



From below, the folded concrete planes and the narrow skylight above create a compressed vertical composition that pulls your eye upward. At the landing, a glass guardrail and a rectangular skylight open the shaft to the sky, flooding the stair with diffused natural light. The integration of linear lighting beneath the exposed ceiling beams means the stairwell reads as a deliberate sequence of spatial events rather than a utilitarian connector.
Living Spaces and Material Restraint



Inside, the material palette is deliberately narrow: white walls, warm timber floors, and exposed concrete at the ceilings and stairs. The discipline pays off. Rooms feel calm rather than blank, and the timber elements, a staircase with a built-in desk, flush closet doors, a dining table, read as carefully placed objects in a luminous field.
The open-plan living area on the upper level connects a white kitchen to a timber dining area with direct access to an exterior terrace. Skylights wash the space from above. Through framed openings you catch layered views of the kitchen, the stair, the courtyard beyond. ÔCO has organized the plan so that almost every interior position offers a diagonal or through-view, which counteracts the narrowness of the lot at every turn.


Cork makes a quiet appearance as a wall panel adjacent to the concrete stair, a nod to Portuguese material tradition that also introduces a softer acoustic and tactile register. It is a small gesture, but it signals that ÔCO is thinking about the sensory experience of the home, not just its geometry.
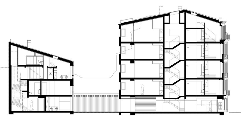
Plans and Drawings







The site plan makes the constraint legible at a glance: a sliver of land hemmed in by neighboring structures on three sides. The floor plans reveal how the diagonal courtyard slices between the two volumes, creating surprisingly varied room configurations at each level. Hatched paving, skylights above the court, and the clear separation of served and servant spaces are all legible in the drawings.
The longitudinal section is perhaps the most revealing document. It shows three stacked levels distributed across the two volumes, with the open courtyard acting as a vertical break that admits light deep into the plan. The roof plan indicates corrugated cladding patterns and strategically placed skylights, confirming that the section was designed with as much care as the plan.
Why This Project Matters
SB 44 is a case study in how to unlock a difficult urban lot without resorting to gimmicks. The diagonal courtyard is a single, legible move that restructures light, circulation, and spatial perception across the entire building. ÔCO Architects prove that you do not need a generous site or a spectacular budget to produce architecture that rewards close attention. You need a clear idea and the conviction to follow it through every detail.
For anyone working on dense residential renovation in historic European cities, this project offers a practical lesson. Respecting the street elevation and concentrating invention on the interior and courtyard allows the building to participate in its neighborhood while giving its inhabitants something genuinely new. That balance between deference and ambition is harder than it looks, and ÔCO lands it cleanly.
SB 44 Residential Building by ÔCO Architects. Lisbon, Portugal. Photography by Lourenço Teixeira de Abreu.
About the Studio
Share Your Own Work on uni.xyz
If projects like this are the kind of work you want to make, uni.xyz is a place to publish your own, find collaborators, and enter design competitions.
Popular Articles
Popular articles from the community
Filtering Space: A Gradual Spatial Experience
From urban intensity to spatial calm.
Marvila Apartment Renovation in Lisbon: A Bright Minimalist Attic Transformation by KEMA Studio
Bright attic transformed into minimalist Lisbon apartment with skylights, sustainable materials, open plan layout, and industrial-inspired interior design elements.
20 Most Popular Commercial Architecture Projects of 2025
From sustainable market concepts to heritage factories, the commercial buildings and proposals that drew the most attention on uni.xyz this year.
Free Architecture Competitions You Can Enter Right Now
No entry fees, real prizes. Here are the best free architecture competitions open for submissions in 2026.
Similar Reads
You might also enjoy these articles
Filtering Space: A Gradual Spatial Experience
From urban intensity to spatial calm.
The Ken Roberts Memorial Delineation Competition (Krob)
As the most senior architectural drawing competition currently in operation anywhere in the world, it draws hundreds of entries each year, awarding the very best submissions in a series of medium-based categories.
Waterfront Redevelopment and Urban Revitalization in Mumbai: Forging a New Dawn for Darukhana
A transformative waterfront redevelopment project reimagining Darukhana’s shipbreaking heritage into an inclusive urban future.
OUT-OF-MAP: A Call for Postcards on Feminist Narratives of Public Space
Rhizoma Design and Research Lab invites artists, designers, architects, researchers, and students to reflect on how feminist perspectives can reshape public space. Selected works will be exhibited in Barcelona, October 2026. Submissions open until 15 April 2026.
Explore Architecture Competitions
Discover active competitions in this discipline
The International Standard for Design Portfolios
The Global Benchmark for Architecture Dissertation Awards
The Global Benchmark for Graduation Excellence
Challenge to reimagine the Iron Throne
Comments (0)
Please login or sign up to add comments
No comments yet. Be the first to comment!