Shiv Nadar School Faridabad by Stephane Paumier Architects: A Landmark in Educational Architecture
Shiv Nadar School blends modular design, natural ventilation, and sustainable materials, creating a vibrant, flexible, and student-centric learning environment.
A Campus Designed for Progressive Learning
Set within a lush greenbelt of Faridabad, the Shiv Nadar School Faridabad (SNSF) is a visionary educational campus that redefines spatial learning environments in India. It is the third and largest campus in the Shiv Nadar School group, following Gurgaon and Noida. Occupying a 13-acre linear plot, the school integrates nature, climate responsiveness, and modular flexibility to support holistic education for all age groups—from pre-primary to senior secondary.


Masterplan: A Porous Linear Typology
The site, 600 meters long, is bisected by a central road. The southern part is dedicated to a cluster of pre-primary pavilions built around courtyards, fostering a nurturing, child-scaled environment. The northern side features an L-shaped linear academic block that houses the primary, middle, and senior schools.
This orientation maximizes cross ventilation, mimicking traditional Indian architectural principles like those found in Delhi’s Hauz Khas complex, capturing prevailing northern and western winds for thermal comfort.

Architectural Form and Modularity
The design is structured around 15-meter-long modules, which form a chessboard-like built-to-void ratio across two floors. Each module can accommodate four classrooms or be adapted into double-height verandahs, art studios, science labs, or terrace gardens. This systematic yet flexible approach ensures a balance between openness and functionality.
The first floor acts like a large plinth, integrating covered playgrounds, verandahs, and outdoor spill-over zones, blending seamlessly into the natural landscape.

Integrating Learning with Nature
SNSF champions an indoor-outdoor spatial relationship, allowing creative disciplines like theater, music, painting, and arts & crafts to extend beyond traditional classroom boundaries. These activity zones have direct access to landscaped terraces, encouraging interaction with nature and enhancing creative freedom.

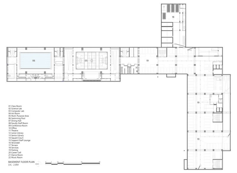
Auditorium, Pool & Sports Infrastructure
At the core of the school lies a multi-functional hall, which doubles as a sports arena and a 1,000-seat auditorium, nestled within a semi-basement. A covered swimming pool complements the school’s expansive athletic offerings, which include two football fields, a 400-meter athletics track, and a cricket pitch.

Structural Innovation
Pushing the boundaries of school architecture, SNSF utilizes pre-stressed precast double T slabs—15 meters long and 2.4 meters wide—cast on-site and lifted with mobile cranes. This method enabled the creation of wide-span spaces, redefining the typical 600 sq ft classroom module. The result is a denser, more vertical structure that remains open, breathable, and light-filled.
Material Palette and Aesthetic Identity
The building showcases a monochromatic palette dominated by exposed grey RCC (Reinforced Cement Concrete)and clay or concrete bricks, juxtaposed with industrial color elements—metal doors, ceramic tiles, and colorful signage. This restraint in materials allows form and function to shine while retaining a timeless architectural aesthetic.

Conclusion: A New Standard for School Design
Shiv Nadar School Faridabad is a benchmark in contemporary Indian educational architecture. With its climate-responsive design, modular planning, structural innovation, and deep integration with nature, the campus not only nurtures young minds but also inspires a more holistic and sustainable approach to institutional design in urban India.


All the photographs are works of Amit Pasricha
Popular Articles
Popular articles from the community
20 Most Popular Commercial Architecture Projects of 2025
From sustainable market concepts to heritage factories, the commercial buildings and proposals that drew the most attention on uni.xyz this year.
Magic Box Office Barcelona Innovative Sustainable Workplace Design
Innovative sustainable office design featuring triangular form, ceramic façade, flexible interiors, natural light optimization, and creative workspace for modern work culture.
Marvila Apartment Renovation in Lisbon: A Bright Minimalist Attic Transformation by KEMA Studio
Bright attic transformed into minimalist Lisbon apartment with skylights, sustainable materials, open plan layout, and industrial-inspired interior design elements.
TGK Nirasaki Plant: A Smart Factory Blending Technology, Landscape, and Wellness
Smart factory in Japan blending IoT manufacturing, scenic trail design, natural ventilation, and landscape integration to enhance user experience and sustainability.
Similar Reads
You might also enjoy these articles
Filtering Space: A Gradual Spatial Experience
From urban intensity to spatial calm.
The Ken Roberts Memorial Delineation Competition (Krob)
As the most senior architectural drawing competition currently in operation anywhere in the world, it draws hundreds of entries each year, awarding the very best submissions in a series of medium-based categories.
Waterfront Redevelopment and Urban Revitalization in Mumbai: Forging a New Dawn for Darukhana
A transformative waterfront redevelopment project reimagining Darukhana’s shipbreaking heritage into an inclusive urban future.
OUT-OF-MAP: A Call for Postcards on Feminist Narratives of Public Space
Rhizoma Design and Research Lab invites artists, designers, architects, researchers, and students to reflect on how feminist perspectives can reshape public space. Selected works will be exhibited in Barcelona, October 2026. Submissions open until 15 April 2026.
Explore Architecture Competitions
Discover active competitions in this discipline
The International Standard for Design Portfolios
The Global Benchmark for Architecture Dissertation Awards
The Global Benchmark for Graduation Excellence
Challenge to design public laboratory
Comments (0)
Please login or sign up to add comments
No comments yet. Be the first to comment!