Sihaon Cafe and House Wedding by SPACE CHA: A Masterpiece of Wedding Venue Architecture
A captivating exploration of Sihaon Cafe and House Wedding, blending wedding venue architecture, romance, and cultural expression.
Introduction to Sihaon Cafe and House Wedding
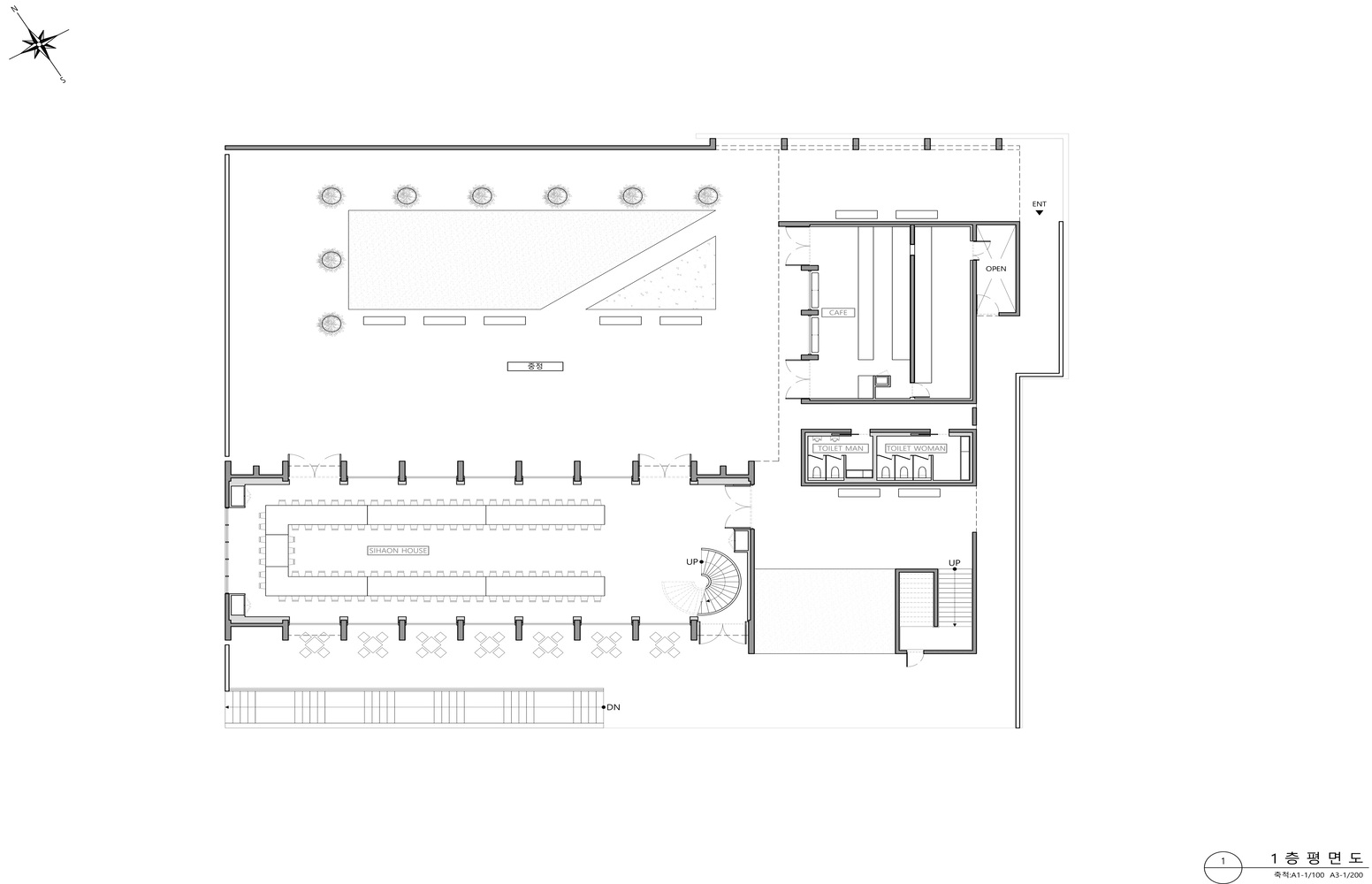
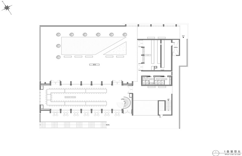
Located in the serene Cheonjeon-ri, Sangbuk-myeon of Ulju-gun, Ulsan, South Korea, Sihaon Cafe and House Wedding by SPACE CHA is a stunning example of wedding venue architecture that seamlessly combines functionality, romance, and cultural flair. Completed in May 2024 after nearly three years of development, this 571 m² project creates a multifaceted cultural space where weddings and café culture harmoniously blend.



A Cultural Complex for Celebrations
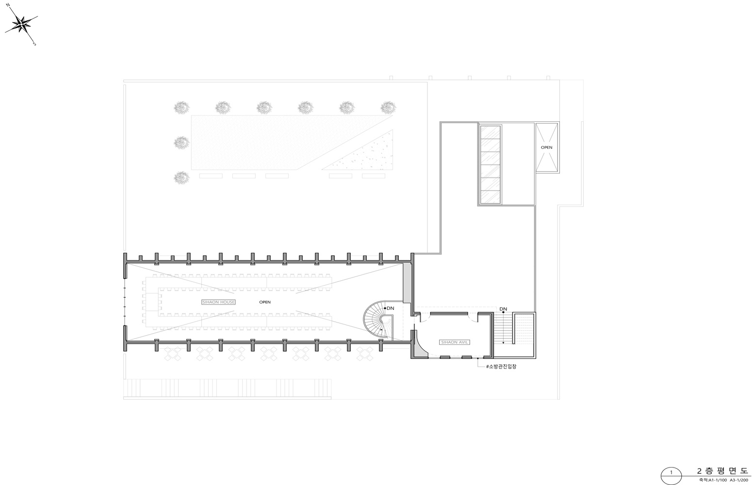
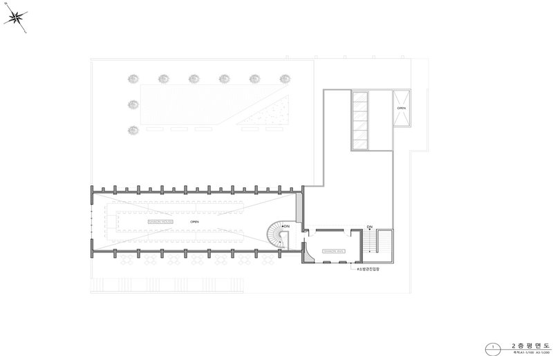
Sihaon was envisioned as more than just a wedding venue. On the first floor, Sihaon House and Sihaon Cafe host elegant wedding ceremonies and bustling café activities. The second floor features Sihaon Avil, designed as a bride’s waiting room and an intimate space for family events. Beneath it all, Sihaon Garden on the basement level offers a lush lawn for unforgettable outdoor weddings, completing the layered program of this architectural marvel.




The Significance of Color in Wedding Venue Architecture
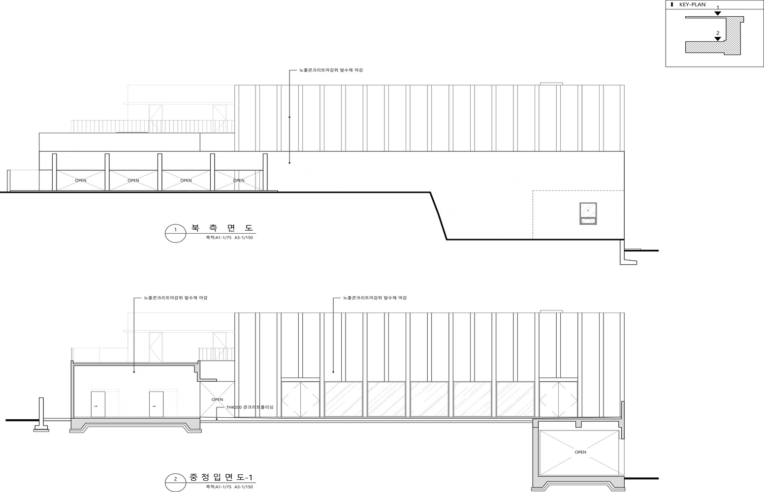
A defining element of Sihaon’s architecture is its striking exterior, clad in three meticulously selected shades of red. Inspired by the owner’s frequent travels to Barcelona, the warm red tones convey passion and romance. SPACE CHA carefully tested variations in temperature, saturation, and brightness to find the perfect blend that would withstand Ulsan’s climate and gracefully age over time. This bold choice elevates Sihaon beyond a typical venue, turning it into a memorable backdrop for life’s most cherished moments.




Architectural Expression through Form and Function
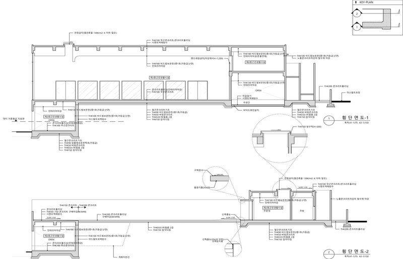
Beyond its vibrant color palette, Sihaon captivates with its thoughtful architectural details. The building’s exterior features ribbed walls of varying heights that respond to the site’s strong sunlight while introducing a rhythmic visual element. This design not only protects and shades the interiors but also symbolizes the idea of life as a journey, likened by the architects to “climbing stairs.” Sihaon embodies this metaphor, offering moments of pause and reflection for couples and guests alike.



Integrating Nature and Sequence
Sihaon’s design masterfully connects the built environment with its natural surroundings. By observing the height of nearby trees, the architects designed walls with varying heights and slits, framing views of the surrounding Yeongnam Alps. Inside, visitors encounter a series of carefully orchestrated sequences that keep the experience dynamic. From a dramatic window framing the mountains to views of the garden pond and lush landscaping, each space offers a distinct perspective, enriching the experience with natural light and minimizing reliance on artificial lighting.



Embracing Change Through Design
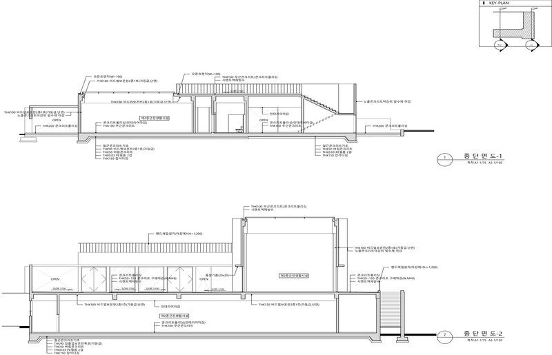
A particularly poetic moment in Sihaon’s creation came from an unexpected challenge. Due to budget cuts, the original plan for an additional café building was canceled. Instead of leaving the site empty, the architects transformed it into a reflective pond, turning what could have been a loss into a feature that adds rhythm and beauty to the overall design. Skylights above the café’s work area further animate the space, transforming the baristas’ movements into a kind of lively performance, celebrating the human element within the architecture.



A Landmark in Wedding Venue Architecture
Sihaon Cafe and House Wedding by SPACE CHA exemplifies how thoughtful wedding venue architecture can transform a building into a cultural landmark. Through a vibrant color palette, symbolic design language, sensitive site integration, and a dynamic spatial sequence, Sihaon delivers an extraordinary experience that celebrates love, life, and community. It stands not only as a venue for weddings but as a timeless architectural statement, offering respite and inspiration to all who visit.



All the photographs are works of Kiwoong Hong
Popular Articles
Popular articles from the community
Split House: A Compact Urban Home Blending Privacy, Light, and Flexible Living in Japan
Compact Japanese home featuring DOMA space, flexible café potential, passive lighting, privacy zoning, and sustainable urban living design.
Rede Arquitetos Builds an Open-Air School in Fortaleza That Doubles as a Neighborhood Living Room
Educar II SESC-CE folds sports, dance, and community gathering into a courtyard campus wrapped in mesh and tropical color.
Filtering Space: A Gradual Spatial Experience
From urban intensity to spatial calm.
Similar Reads
You might also enjoy these articles
20 Most Popular Commercial Architecture Projects of 2025
From sustainable market concepts to heritage factories, the commercial buildings and proposals that drew the most attention on uni.xyz this year.
Free Architecture Competitions You Can Enter Right Now
No entry fees, real prizes. Here are the best free architecture competitions open for submissions in 2026.
Top 15 Architecture Competitions to Enter in 2026
From student-friendly idea competitions to prestigious international awards, here are the best architecture competitions open for entries in 2026. Updated regularly.
DIY & Engineering in Computational Design : Enter the BeeGraphy Design Awards
Showcase Your Creativity with Computational Design and Open Source Projects
Explore Architecture Competitions
Discover active competitions in this discipline
The International Standard for Design Portfolios
The Global Benchmark for Architecture Dissertation Awards
The Global Benchmark for Graduation Excellence
Challenge to reimagine the Iron Throne
Comments (0)
Please login or sign up to add comments
No comments yet. Be the first to comment!