Slat House: Redefining Collective Housing in Mindelo, Cape Verde
A detailed exploration of the Slat House in Mindelo, Cape Verde, highlighting its innovative design, sustainability, and cultural resonance.
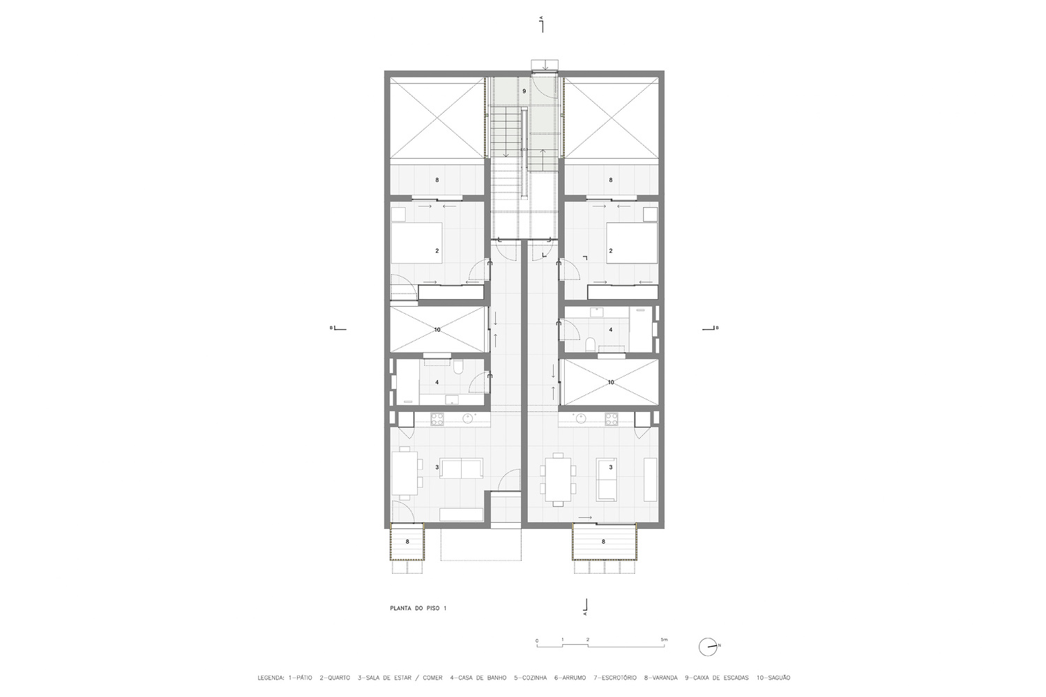
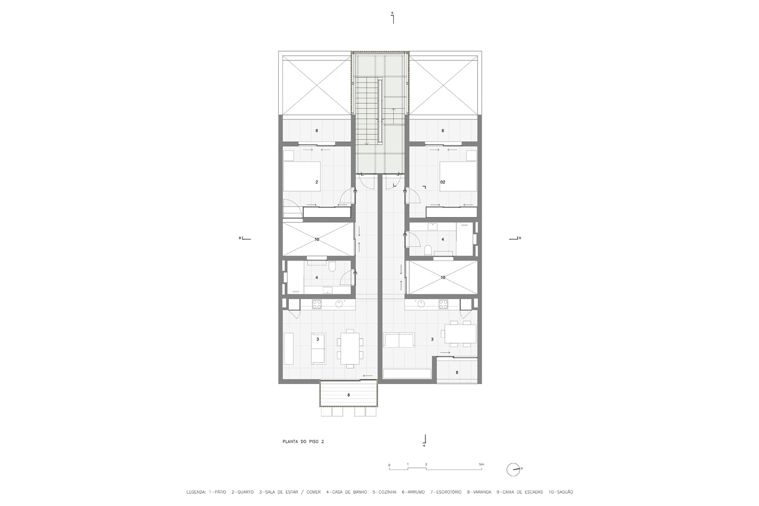
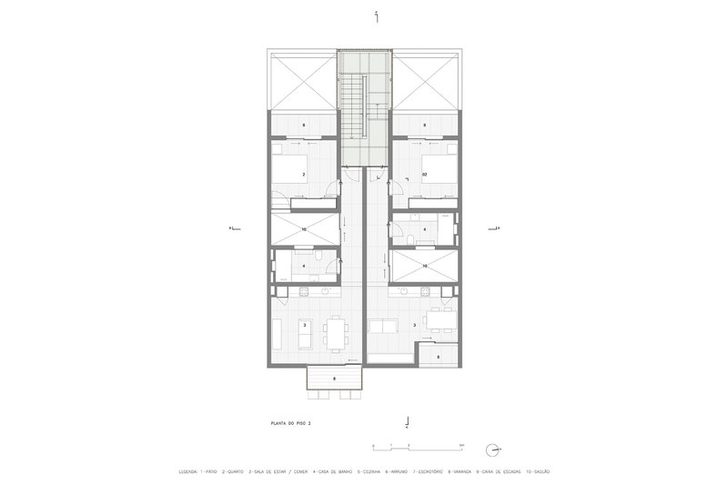
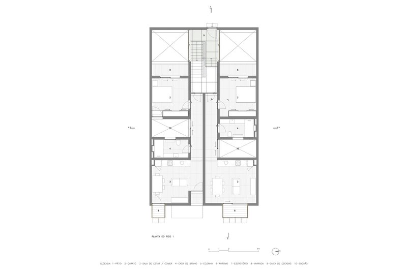
In 2023, Oficina de Utopias introduced a groundbreaking residential project in Mindelo, Cape Verde, known as the Slat House. This innovative building stands as a testament to thoughtful urban design, blending architectural ingenuity with functional living spaces. The structure encompasses five distinct apartments across three floors, each designed to maximize privacy, natural light, and local aesthetics.





A Dual-Frontage Design
Located on a plot accessible from two streets at differing elevations, the Slat House embraces its unique positioning. To the east, residents find access to a spacious T3 apartment, while the west side, elevated above street level, leads to four T1 units. This dual-access approach not only optimizes the use of the site but also ensures distinct privacy for the T3 unit while accommodating short- and long-term rental opportunities in the T1 units.





Natural Light and Ventilation as Core Principles
The design prioritizes natural illumination and cross-ventilation throughout the building. The T3 apartment benefits from two internal courtyards and a western patio that spans the plot’s width, enhancing airflow and creating serene outdoor living spaces. Similarly, the upper-level T1 apartments leverage recessed layouts and slatted facades to shield against direct sunlight while maintaining visual connectivity and comfort.




Inspired by Mindelo’s Colonial Heritage
The building’s cantilevered balconies and pivoting windows echo the colonial architectural traditions of Mindelo. These elements are reimagined in a modern context, creating varied spatial experiences within the apartments. The slatted wooden structures, integral to the façade, not only offer aesthetic appeal but also serve functional purposes, such as filtering sunlight and fostering privacy.





A Bold Material Palette
Concrete and cement blocks form the building’s core structure, complemented by metal elements that support cantilevers and slatted façades. The bold choice of a green Pantone shade for the metal features juxtaposes elegantly with the natural wood accents and basalt stone flooring sourced locally. This cohesive material palette establishes a strong visual identity for the building while respecting its cultural and environmental context.




Functionality Meets Sustainability
The suspended staircase, clad in wooden slats and supported by a metal structure, serves as a visual and functional bridge between the street levels. Beyond its architectural statement, the Slat House incorporates sustainable principles, using durable materials and designs that respond to the local climate. The slatted façades and recessed spaces reduce heat gain, minimizing energy demands for cooling.





A New Standard for Collective Housing
The Slat House by Oficina de Utopias exemplifies the potential of collective housing to blend privacy, sustainability, and architectural innovation. By responding to its urban and cultural context, the project enhances the livability of its spaces while paying homage to Mindelo’s architectural heritage.


