Stones Throw Residence: A Masterpiece of Sustainable Home Renovation
Stones Throw Residence exemplifies sustainable home renovation, transforming a 1960s bungalow into a modern coastal retreat with eco-friendly design principles.
Transforming a Coastal Retreat
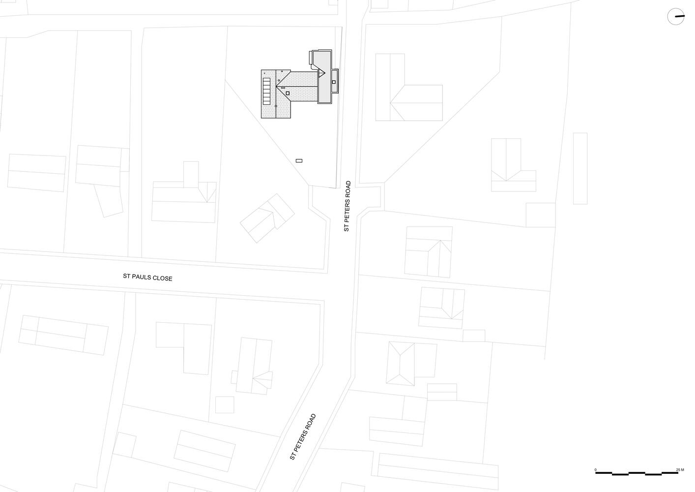
Located on the scenic Suffolk coast in Aldeburgh, Stones Throw Residence by Mole Architects is a remarkable example of sustainable home renovation. Originally a modest 1960s bungalow, the project reimagines and extends the existing structure, transforming it into a light-filled contemporary retreat while preserving its original character. The result is a harmonious blend of modern design, enhanced spatial functionality, and a strong commitment to sustainability.


Reimagining an Existing Structure
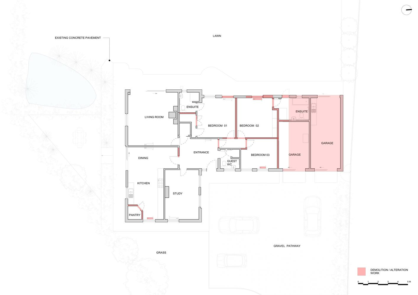
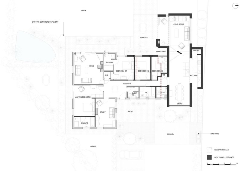
Rather than demolishing the existing bungalow, the architects and clients chose an approach that prioritized adaptation and enhancement. The original house, while outdated in its layout, had many redeeming qualities. The goal was to improve its spatial organization, integrate more natural light, and create a stronger connection to the landscape. This decision not only preserved the character of the home but also significantly reduced construction waste, aligning with sustainable design principles.




A Thoughtful Extension for Modern Living
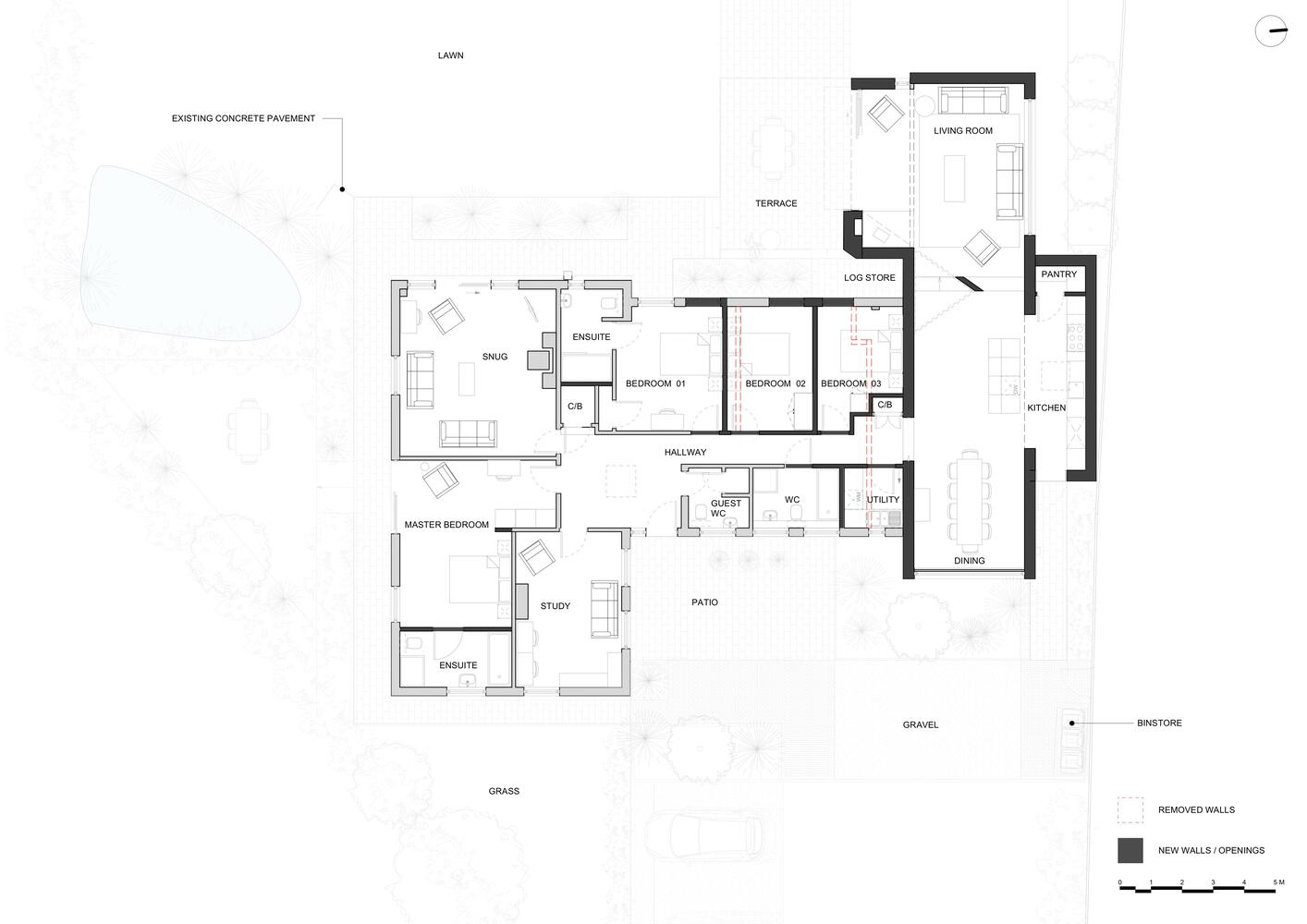
The most significant transformation involved a new extension, replacing an underutilized garage and reorienting the home’s living spaces toward the sea and garden. The extension projects into the landscape, creating a dynamic spatial experience that enhances the indoor-outdoor connection. A striking new living room, elevated above the original floor level, offers breathtaking sea views through a large east-facing window. The interior is bathed in natural light, further enhanced by a triangular rooflight that draws sunlight into the heart of the home.



Materiality and Craftsmanship
The renovation introduces a refined material palette that balances warmth and durability. The heart of the new space is a dramatic marble block, evoking the fluidity of ocean waves, complemented by end-grain wood flooring that adds natural texture and warmth. The over-cladding of the existing structure unifies the old and new elements, creating a seamless architectural dialogue between past and present. These material choices reflect a commitment to longevity, ensuring the house ages gracefully over time.



Sustainability and Energy Efficiency
Sustainable home renovation was at the core of this project. The original house was upgraded with high-performance double-glazed windows and enhanced loft insulation, significantly improving thermal performance. The new extension, built using a timber frame, exceeds UK building regulation standards by 30%, ensuring energy efficiency and reduced carbon footprint. By retaining much of the existing structure, the project minimized embodied carbon, making it a model for eco-conscious home transformations.


Creating a Timeless Coastal Home
Beyond functionality and sustainability, Stones Throw Residence embraces the spirit of its coastal setting. The elevated scale of the new extension introduces a sense of grandeur while maintaining a modest footprint. The interplay of levels within the living space fosters intimacy, while expansive openings frame picturesque views of the sea and surrounding landscape. The integration of passive design strategies, from natural ventilation to strategic daylighting, ensures that the house remains comfortable throughout the seasons.


A Vision for Sustainable Renovation
Stones Throw Residence is a testament to the potential of sustainable home renovation, demonstrating how thoughtful upgrades can breathe new life into an existing structure. By balancing preservation with innovation, Mole Architects have crafted a coastal retreat that respects its past while embracing a sustainable future. This project serves as an inspiring model for homeowners and architects seeking to enhance existing buildings with environmental responsibility and timeless design.


All Photographs are works of Nick Guttridge + MoleArchitects
Popular Articles
Popular articles from the community
Solar Steam: A Climate-Responsive Architecture That Redefines the Monument
A climate-responsive memorial architecture that transforms heat, decay, and time into a living system reflecting humanity’s ecological impact.
The Ken Roberts Memorial Delineation Competition (Krob)
As the most senior architectural drawing competition currently in operation anywhere in the world, it draws hundreds of entries each year, awarding the very best submissions in a series of medium-based categories.
Gads Hill Early Learning Center by JGMA: Adaptive Reuse Shaping Community-Focused Educational Architecture
Adaptive reuse transforms fragmented structure into vibrant early learning center with playful façade, natural light, and community-focused sustainable design.
Similar Reads
You might also enjoy these articles
The Ken Roberts Memorial Delineation Competition (Krob)
As the most senior architectural drawing competition currently in operation anywhere in the world, it draws hundreds of entries each year, awarding the very best submissions in a series of medium-based categories.
Waterfront Redevelopment and Urban Revitalization in Mumbai: Forging a New Dawn for Darukhana
A transformative waterfront redevelopment project reimagining Darukhana’s shipbreaking heritage into an inclusive urban future.
OUT-OF-MAP: A Call for Postcards on Feminist Narratives of Public Space
Rhizoma Design and Research Lab invites artists, designers, architects, researchers, and students to reflect on how feminist perspectives can reshape public space. Selected works will be exhibited in Barcelona, October 2026. Submissions open until 15 April 2026.
Documentation Work on Buddhist Wooden Temple
Architectural syncretism and cultural hybridity: A comparative study of the Buddhist temples in Chattogram Hill tracks
Explore Architecture Competitions
Discover active competitions in this discipline
The International Standard for Design Portfolios
The Global Benchmark for Architecture Dissertation Awards
The Global Benchmark for Graduation Excellence
Challenge to reimagine the Iron Throne
Comments (0)
Please login or sign up to add comments
No comments yet. Be the first to comment!