Subtropical Residential Architecture: Dohori House by George Kouparitsas Architects
This article explores Dohori House, a Queensland residence blending Brazilian subtropical design with heritage preservation and modern living.
Reimagining a Pre-War Residence in Queensland
Located in the prestigious suburb of Ascot, Queensland, the Dohori House is a compelling example of subtropical residential architecture that merges heritage preservation with bold contemporary design. Originally a modest pre-war home, the property has been completely transformed by George Kouparitsas Architects into a five-bedroom, light-filled residence that embraces its climate, context, and historical identity. The redesign retains the charm and scale of the original dwelling while introducing expansive living areas, modern amenities, and strong architectural expression rooted in Brazilian subtropical design.




Brazilian Influence and Climatic Responsiveness
The design of Dohori House draws direct inspiration from Brazilian subtropical architecture—known for its rich material palette, seamless indoor-outdoor transitions, and passive environmental strategies. This influence is especially apparent in the use of cast-in-situ concrete, which forms the robust double-storey extension to the rear. The heavy, tactile concrete structure stands in deliberate contrast to the preserved front façade of the pre-war home, creating a striking visual dialogue between past and present.



Large overhangs, breezy open interiors, and a shaded outdoor living area are employed as key passive cooling strategies in response to Queensland’s subtropical climate. These design features not only reduce the reliance on mechanical systems but also cultivate a relaxed, livable environment that transitions effortlessly from indoor to outdoor.




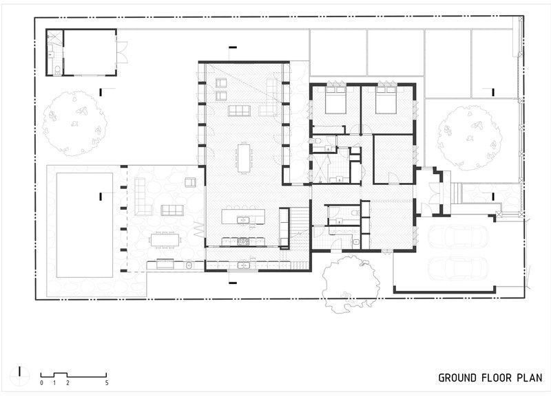
Spatial Choreography and Interior Planning
One of the house's most notable features is its spatial choreography, which emphasizes a progression from intimacy to openness. The modest scale of the street-facing façade gives way to a dramatically expansive core filled with natural light, garden views, and layered living zones. This journey through compressed and released space mirrors Brazilian architectural traditions and enhances the sensory experience of moving through the home.



The ground floor is the social heart of the residence, housing the kitchen, dining, and living spaces, as well as a generous outdoor eatery, a library, a guest bedroom, and a home office. The upper level is more private, containing five bedrooms and family lounges that overlook the lush rear garden. This clear zoning ensures both openness for entertaining and privacy for family life.



Navigating Heritage and Site Constraints
Working with a home classified as pre-war in a tightly regulated planning environment presented several challenges. The architects had to navigate restrictions on alterations to the existing structure while ensuring structural and visual cohesion between the historic and new components. This was further complicated by site constraints such as narrow boundaries and the proximity of neighboring properties, which required sensitive planning to maximize daylight, ventilation, and privacy.



A refined minimal carport was added at the front, designed to blend seamlessly into the architectural language of the house. At the rear, a former horse stable was thoughtfully repurposed into a fully equipped home gym, adding a subtle layer of adaptive reuse to the project.



Materiality, Context, and Contemporary Identity
Material expression is central to the identity of Dohori House. The use of concrete is not just structural—it is sculptural, textured, and expressive. Warm timber elements balance the rawness of the concrete, creating a tactile and welcoming atmosphere. Glass is used strategically to frame views, admit light, and foster a deep connection with the surrounding garden.


Ultimately, the Dohori House stands as a contextual, climate-responsive home that balances local sensitivity with global architectural influence. By integrating Brazilian subtropical design principles into the unique conditions of suburban Queensland, the project delivers a residence that is both grounded and aspirational—a compelling model for subtropical residential architecture in Australia and beyond.




All Photographs are works of Mitchell Kemp Photography - mkemp.co
Popular Articles
Popular articles from the community
Free Architecture Competitions You Can Enter Right Now
No entry fees, real prizes. Here are the best free architecture competitions open for submissions in 2026.
Magic Box Office Barcelona Innovative Sustainable Workplace Design
Innovative sustainable office design featuring triangular form, ceramic façade, flexible interiors, natural light optimization, and creative workspace for modern work culture.
20 Most Popular Commercial Architecture Projects of 2025
From sustainable market concepts to heritage factories, the commercial buildings and proposals that drew the most attention on uni.xyz this year.
Filtering Space: A Gradual Spatial Experience
From urban intensity to spatial calm.
Similar Reads
You might also enjoy these articles
20 Most Popular Commercial Architecture Projects of 2025
From sustainable market concepts to heritage factories, the commercial buildings and proposals that drew the most attention on uni.xyz this year.
Free Architecture Competitions You Can Enter Right Now
No entry fees, real prizes. Here are the best free architecture competitions open for submissions in 2026.
Top 15 Architecture Competitions to Enter in 2026
From student-friendly idea competitions to prestigious international awards, here are the best architecture competitions open for entries in 2026. Updated regularly.
DIY & Engineering in Computational Design : Enter the BeeGraphy Design Awards
Showcase Your Creativity with Computational Design and Open Source Projects
Explore Architecture Competitions
Discover active competitions in this discipline
The International Standard for Design Portfolios
The Global Benchmark for Architecture Dissertation Awards
The Global Benchmark for Graduation Excellence
Challenge to reimagine the Iron Throne
Comments (0)
Please login or sign up to add comments
No comments yet. Be the first to comment!