Sustainable Architecture Design: Unveiling the FINCERACT CONVENTION CENTER
This article explores the innovative and sustainable design of the FINCERACT CONVENTION CENTER, a beacon of smart architecture and environmental stewardship in Beijing's Chaoyang district.
Introduction
In the heart of Beijing's Chaoyang district, a new symbol of innovation and environmental stewardship is rising: the FINCERACT CONVENTION CENTER. This groundbreaking project, the winner of the AI Box competition by KEWALIN WONGSANGIAM, is not just a building; it's a manifesto of sustainable architecture design, reflecting the global movement towards smarter, more ecological urban planning.

The Vision Behind FINCERACT
The concept of FINCERACT intertwines artificial intelligence (AI) with human interaction, creating a space where technology and humanity converge. This national convention center is designed to be a gathering point for AI enthusiasts, researchers, and professionals from around the globe, fostering exchanges that could shape the future of technology and its application in our daily lives.

Objective and Design Philosophy
The primary objective of the FINCERACT CONVENTION CENTER is to serve as a platform for global dialogue on artificial intelligence, promoting a deeper understanding of this transformative technology. Its design reflects a commitment to sustainability and innovation, incorporating the largest color LED display and the first photovoltaic system integrated into a glass curtain wall. This unique feature enables the building to operate as a self-sufficient entity, harnessing solar energy by day and using it to power its illuminative facade after dark.

Sustainable Features and Smart Building Solutions
The building's day-to-day operations underscore its role as a model for sustainable architecture design. During daylight hours, photovoltaic solar cells capture and store energy, which is not only used to power the building's activities but also to mitigate heat gain through an effective shading mechanism. At night, the stored energy is used to light up the building's media facade, showcasing an impressive display of energy efficiency and environmental consciousness.
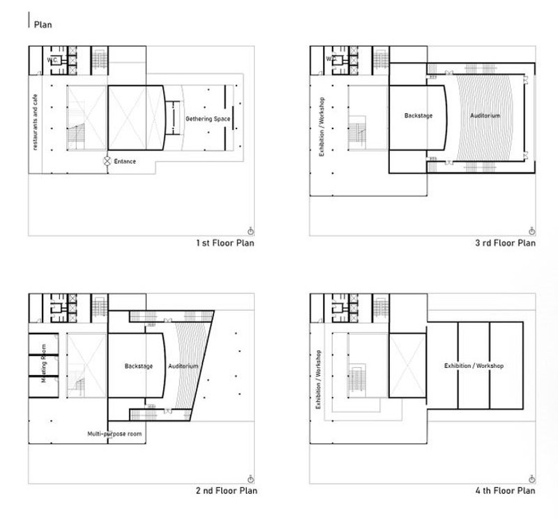
Architectural Details and Public Spaces
The FINCERACT CONVENTION CENTER is meticulously planned across multiple floors, each dedicated to different functions such as exhibitions, workshops, and auditoriums for presentations and discussions. The ground level houses reception areas, restaurants, and cafes, creating a welcoming environment for visitors and fostering informal interactions.

Media Façade: A Symbol of Innovation
The media façade stands out as a hallmark of the convention center, combining aesthetic appeal with functional benefits. It not only acts as a dynamic interface for displaying information and art but also serves as a tangible representation of the cycle of day and night, reflecting the natural rhythms of the environment.

Spatial Organization and Human Interaction
The spatial arrangement within the FINCERACT CONVENTION CENTER is designed to enhance human interaction and engagement. By integrating technology seamlessly with architectural elements, the center encourages visitors to explore the intersections of AI and daily life, promoting a deeper understanding and appreciation of this cutting-edge field.

The FINCERACT CONVENTION CENTER sets new benchmarks for sustainable architecture design, integrating digital technology with ecological principles. This project not only enhances Beijing's reputation as a hub for innovation but also aligns with China's ambition to become the world's leading innovation country in artificial intelligence.
As the world moves towards a more sustainable and technology-driven future, the FINCERACT CONVENTION CENTER stands as a testament to the possibilities that arise when architecture, technology, and sustainability intersect. This project is not just a building; it's a beacon of hope for a smarter, greener, and more interconnected world.
Popular Articles
Popular articles from the community
Fausto Terán and Toro Fuse Japanese Craft with Mexican Tradition in a Lakeside Retreat
Nakamura House pairs Shou-Sugi-Ban charred pine with handmade clay tile at the foot of Atlangatepec Lagoon in Mexico.
Rojkind Arquitectos and Think Parametric Build a Glueless Pavilion from 67 Interlocking Panels
A serpentine fiber-cement installation in Chapultepec Park celebrates a decade of architectural media in Mexico City.
Takeshi Hosaka Architects Suspends a Concrete Cross Above a Yokohama Cemetery
A 28-square-meter burial renovation in Yokohama lifts the symbol of resurrection into the sky so mourners see it against heaven.
3dor Concepts Wraps a Kerala Home in Mirrored Concrete Arcs Around a Courtyard Tree
In the Western Ghats foothills of Thamarassery, a 270 m² single-story house uses two curved volumes to frame nature as its center.
Similar Reads
You might also enjoy these articles
317studio Turns an 87 m² Classroom into a Forest Clearing for Scouts in New Taipei City
A rope canopy, student-made specimens, and campfire geometry replace rows of desks in this Scouting classroom in Xizhi District.
24 7 Arquitetura Builds a Timber Pavilion as a Family's First Act on a 5,000 m² Brazilian Plot
In Jaguariúna, a prefabricated glulam house nestles among mature trees as the opening move of a larger residential masterplan.
1+1>2 Architects Build a School from 900 Blocks of Hmong Stone on Vietnam's Rocky Plateau
On a barren valley in Ha Giang province, a community quarried its own stone to raise a kindergarten and primary school rooted in Hmong identity.
100A Associates Builds a Volcanic Stone Retreat on Jeju Island Rooted in Ritual and Restraint
Watarstay [Wa:Tar] in Bongseong-ri channels Jeju's basalt, reed, and hemp into a 150 m² hospitality space shaped by contemplation.
Explore Sustainable Design Competitions
Discover active competitions in this discipline
The Global Benchmark for Architecture Dissertation Awards
Design challenge to reuse E-waste
Comments (0)
Please login or sign up to add comments
No comments yet. Be the first to comment!