Sustainable Cafe Design: Exploring VEGESCAPE Cafe by SUBTEXT
VEGESCAPE Cafe by SUBTEXT integrates sustainable architecture with smart farming to create a unique, environmentally friendly dining experience in South Korea.
In the world of architecture, the intersection of sustainability and aesthetic innovation presents a unique challenge, particularly in commercial spaces like cafes. VEGESCAPE Cafe, designed by SUBTEXT in Yongin-si, South Korea, serves as a perfect case study of sustainable cafe design that integrates smart farming with a sophisticated architectural approach.



Architectural Concept and Design Philosophy
Embracing Local and Sustainable Materials
The core design philosophy of VEGESCAPE Cafe is built around the concept of sustainability, not just environmentally, but also in fostering a community around healthy lifestyles. The use of sustainable materials and processes reflects this, with interior finishes made from recycled newspapers and plastics previously used in agriculture. This not only reduces waste but also symbolically connects the cafe's patrons with the farming process.



Integration with Smart Farming
Adjacent to the cafe is a smart farm that uses advanced agricultural technologies to grow crops vertically, reducing the cafe's carbon footprint and enhancing the freshness of the food served. This seamless integration ensures that the cafe does not just serve food but also provides an educational experience about sustainable agriculture practices.



Key Features of VEGESCAPE Cafe
Innovative Use of Space
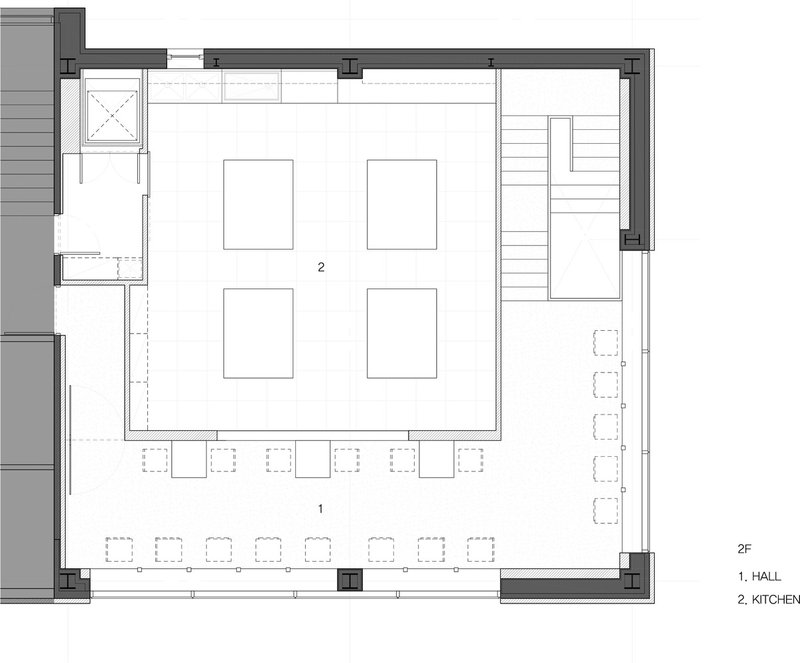
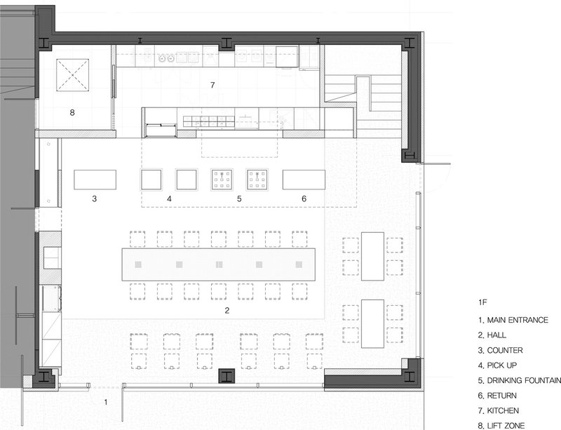
The cafe is designed to make every visitor feel like they are part of the smart farm. The first-floor features a ceiling inspired by water movement, which is essential for crop growth, extending this motif to the water dispenser area where it becomes a focal point for interaction. This design element emphasizes the importance of water in both agriculture and the cafe's culinary offerings.



Visibility and Transparency
The open kitchen design allows patrons to see their meals being prepared from freshly harvested crops, enhancing transparency and trust in the cafe's food quality. This openness extends to the second floor, where customers can view the packaging and distribution process, reinforcing the cafe's commitment to freshness and sustainability.



Impact on Community and Environment
Fostering Community Engagement
VEGESCAPE Cafe is more than a place to eat; it's a community hub where people can learn about sustainable practices and engage with them directly. The cafe hosts events and workshops that educate visitors about smart farming and sustainable living, making it a pivotal part of the local community.




Environmental Benefits
The integration of smart farming techniques significantly reduces the environmental impact typically associated with food production and distribution. By localizing crop production, the cafe minimizes transportation emissions and ensures that the food is as fresh and nutritious as possible.


The Future of Cafe Design
VEGESCAPE Cafe by SUBTEXT is a pioneering example of sustainable cafe design that beautifully marries functionality with sustainability. It stands as a testament to the potential of architecture to contribute positively to the environment and society, offering a blueprint for future projects worldwide.



All the photographs are work of Ki-Woong Hong
Popular Articles
Popular articles from the community
Filtering Space: A Gradual Spatial Experience
From urban intensity to spatial calm.
Marvila Apartment Renovation in Lisbon: A Bright Minimalist Attic Transformation by KEMA Studio
Bright attic transformed into minimalist Lisbon apartment with skylights, sustainable materials, open plan layout, and industrial-inspired interior design elements.
TGK Nirasaki Plant: A Smart Factory Blending Technology, Landscape, and Wellness
Smart factory in Japan blending IoT manufacturing, scenic trail design, natural ventilation, and landscape integration to enhance user experience and sustainability.
Similar Reads
You might also enjoy these articles
20 Most Popular Commercial Architecture Projects of 2025
From sustainable market concepts to heritage factories, the commercial buildings and proposals that drew the most attention on uni.xyz this year.
Free Architecture Competitions You Can Enter Right Now
No entry fees, real prizes. Here are the best free architecture competitions open for submissions in 2026.
Top 15 Architecture Competitions to Enter in 2026
From student-friendly idea competitions to prestigious international awards, here are the best architecture competitions open for entries in 2026. Updated regularly.
DIY & Engineering in Computational Design : Enter the BeeGraphy Design Awards
Showcase Your Creativity with Computational Design and Open Source Projects
Explore Architecture Competitions
Discover active competitions in this discipline
The International Standard for Design Portfolios
The Global Benchmark for Architecture Dissertation Awards
The Global Benchmark for Graduation Excellence
Challenge to reimagine the Iron Throne
Comments (0)
Please login or sign up to add comments
No comments yet. Be the first to comment!