Sustainable Commercial Architecture: A Deep Dive into BMW Center by Atelier FCJZ
Exploring the BMW Center by Atelier FCJZ: A pioneering example of sustainable commercial architecture merging tradition with modern eco-friendly practices.
In the realm of modern urban development, sustainable commercial architecture stands out as a critical movement, blending environmental responsibility with aesthetic appeal and functional design. An exemplary model of this innovative approach is the BMW Center in Wu Xi Shi, China, designed by the renowned Atelier FCJZ. Completed in 2023, this architectural marvel not only serves as a 4S car dealership but also sets a new benchmark for green construction in commercial spaces.




Unveiling the BMW Center: A Testament to Eco-Friendly Design
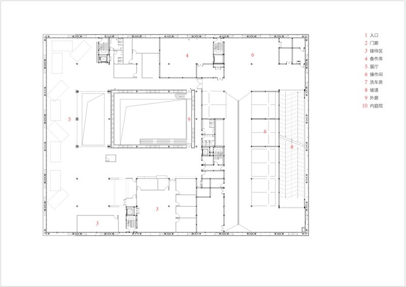
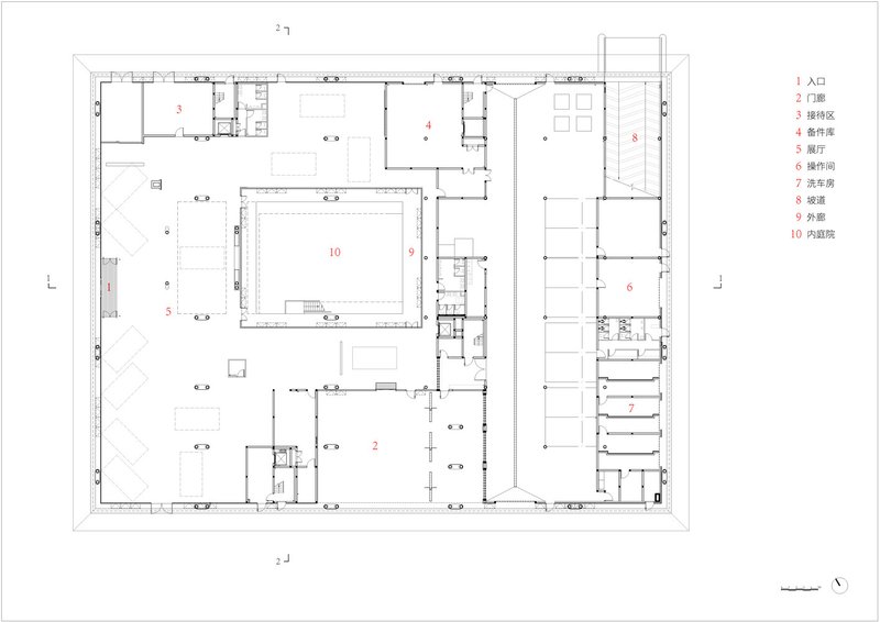
The BMW Center, with its sprawling area of 23,929 m², is a pioneering example of how traditional and modern elements can fuse to create a sustainable architectural masterpiece. This building is a homage to Jiangnan's architectural heritage, featuring an inner courtyard reminiscent of vernacular houses in the region, allowing for a harmonious blend of natural and built environments.


The Innovative Layout
Functionality meets sustainability in the BMW Center's layout, divided into distinct eastern and western zones across its three levels. The design cleverly accommodates a car showroom, sales center, and after-sales services, alongside maintenance workshops and office spaces. This clear division ensures operational efficiency while maintaining an environmentally friendly footprint.


The Structural System: A Nod to Tradition and Innovation
The BMW Center's structural integrity is underpinned by an exposed concrete waffle slab, inspired by traditional Chinese waffle ceilings. This not only pays respect to cultural aesthetics but also contributes to the building's eco-friendliness. The use of V-shaped steel columns and a thoughtful column grid design further enhances the spatial experience without compromising environmental standards..





Façade Design: Merging Tradition with Modernity
The double-layer skin facade of the BMW Center is a standout feature, combining white terracotta bricks with a transparent glass curtain wall. This design not only reflects traditional Jiangnan construction techniques but also meets modern energy-efficiency needs. The varying porosity across different floors optimizes indoor light and air flow, contributing to the building's overall sustainability.


Landscape Design: An Eco-friendly Oasis
The landscape of the BMW Center is intricately designed to reflect the serenity and aesthetic of a Chinese courtyard house. From the ground floor's water court to the rooftop terrace, each element is orchestrated to provide a tranquil, green space that enhances the overall sustainability of the structure.


Commitment to Energy Efficiency
The BMW Center embodies the principles of sustainable architecture through its comprehensive energy-efficient strategies. From ground source heat pumps to photovoltaic panels and LED lighting, every aspect of the building is designed with energy conservation in mind. The incorporation of rainwater harvesting systems and light pollution control measures further underscores the commitment to environmental sustainability.




Setting a New Standard in Sustainable Commercial Architecture
The BMW Center by Atelier FCJZ is not just a building; it's a bold statement in the movement towards sustainable commercial architecture. It successfully merges traditional Chinese architectural elements with modern sustainability standards, setting a new benchmark for eco-friendly commercial spaces worldwide. As we move forward, the BMW Center stands as a beacon of innovation, demonstrating that commercial architecture can indeed be both beautiful and beneficial to the environment.



All photographs are work of Zhong Zhang, Fangfang Tian
Popular Articles
Popular articles from the community
Alton Cliff House: A Harmonious Retreat by f2a Architecture in Lake Country, Canada
Alton Cliff House blends corten steel, prefabrication, and sustainable design, creating a luxurious, energy-efficient retreat perched on Canadian cliffs.
20 Most Popular Commercial Architecture Projects of 2025
From sustainable market concepts to heritage factories, the commercial buildings and proposals that drew the most attention on uni.xyz this year.
Marvila Apartment Renovation in Lisbon: A Bright Minimalist Attic Transformation by KEMA Studio
Bright attic transformed into minimalist Lisbon apartment with skylights, sustainable materials, open plan layout, and industrial-inspired interior design elements.
Similar Reads
You might also enjoy these articles
Filtering Space: A Gradual Spatial Experience
From urban intensity to spatial calm.
The Ken Roberts Memorial Delineation Competition (Krob)
As the most senior architectural drawing competition currently in operation anywhere in the world, it draws hundreds of entries each year, awarding the very best submissions in a series of medium-based categories.
Waterfront Redevelopment and Urban Revitalization in Mumbai: Forging a New Dawn for Darukhana
A transformative waterfront redevelopment project reimagining Darukhana’s shipbreaking heritage into an inclusive urban future.
OUT-OF-MAP: A Call for Postcards on Feminist Narratives of Public Space
Rhizoma Design and Research Lab invites artists, designers, architects, researchers, and students to reflect on how feminist perspectives can reshape public space. Selected works will be exhibited in Barcelona, October 2026. Submissions open until 15 April 2026.
Explore Architecture Competitions
Discover active competitions in this discipline
The International Standard for Design Portfolios
The Global Benchmark for Architecture Dissertation Awards
The Global Benchmark for Graduation Excellence
Challenge to reimagine the Iron Throne
Comments (0)
Please login or sign up to add comments
No comments yet. Be the first to comment!