Sustainable Concrete House Design: Can House by PIN Architects
Can House by PIN Architects showcases sustainable concrete house design, blending precision-crafted concrete, glass transparency, and biophilic integration with nature.
Introduction to Sustainable Concrete House Design
Sustainable concrete house design is becoming an essential approach in modern architecture, emphasizing durability, environmental responsibility, and harmonious integration with nature. Can House, designed by PIN Architects in 2022, exemplifies this growing movement. Situated in Mudanya, Bursa, Turkey, this 775-square-meter residence stands as a sophisticated union of concrete craftsmanship, energy efficiency, and biophilic design.


Preserving Nature Through Thoughtful Architecture
The site of Can House holds a deeply personal history for the residents, as it was once home to their old family house. When the time came to rebuild, PIN Architects approached the project with sensitivity toward the existing landscape. The goal was to preserve the mature trees and integrate the house into the natural topography.


Throughout the design and construction phases, the architects worked closely with engineers, landscape specialists, and concrete artisans to ensure that the house would embrace its surroundings without disrupting the delicate ecosystem. This philosophy is at the heart of sustainable concrete house design, which seeks to balance structural permanence with environmental respect.


Architectural Expression Through Concrete and Glass
Can House is defined by its sculptural use of concrete, a material known for its strength and longevity. PIN Architects employed expert concrete masters to achieve precise formwork, creating a structure that feels both robust and elegant. The combination of raw concrete surfaces and expansive glass walls establishes a dialogue between the built environment and the forested landscape.


The north and south facades of the house are made entirely of glass, flooding the interior with natural light. This transparency allows the forest to visually extend into the home, a quality described by the residents as "the house through which the forest flows." This seamless blending of architecture and nature is a hallmark of sustainable concrete house design.


Sustainability Principles Guiding the Design
Sustainable concrete house design prioritizes reducing environmental impact while enhancing energy efficiency. Can House exemplifies this commitment through several key strategies.

The architects retained existing trees on site and designed around them, minimizing disruption to the natural landscape. The house's walls feature double-layered insulation and moisture barriers, ensuring thermal efficiency. Energy-saving lighting systems were installed, and the infrastructure was tailored to the region's climatic conditions.

Eco-certified materials were chosen wherever possible, reflecting a preference for non-toxic and environmentally responsible finishes. The swimming pool operates without chemicals, further reducing the household's ecological footprint. Renewable energy sources were incorporated into the home's systems, aligning with the broader principles of sustainable concrete house design.

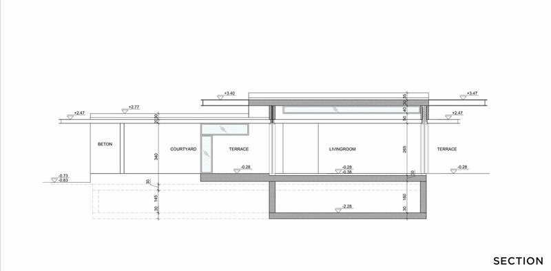
U-Shaped Plan Responding to Topography
The layout of Can House responds sensitively to the sloping terrain. The U-shaped plan is distributed across three levels, creating a terraced arrangement that respects the natural contours of the site. This configuration frames an internal courtyard, with a terrace and swimming pool on the southern side.

Three beech trees stand prominently between the pool and the terrace, symbolizing "the heart" in Turkish mythology. These trees inspired the house’s name, "Can House," which is derived from the term "Kalpgah," meaning the center of life. This poetic connection between nature and architecture underscores the philosophy behind sustainable concrete house design—creating spaces that resonate with human emotion and cultural symbolism.

Daylight as a Design Element
Natural light plays a pivotal role in shaping the spatial experience of Can House. The architects treated daylight as an architectural material, allowing it to sculpt the interior atmosphere. The movement of the sun throughout the day casts dynamic shadows on the concrete surfaces, creating ever-changing patterns that animate the living spaces.


This intentional use of daylight aligns with sustainable concrete house design principles, reducing the need for artificial lighting while enhancing the occupants' connection to nature. The interplay between light, concrete, and glass transforms the house into a living canvas, where time and seasons leave their subtle imprints.

Biophilic Design and Sensory Experience
Biophilic design, which seeks to reconnect people with nature through architecture, is a defining feature of Can House. The residence is surrounded by forested land, and this proximity to nature is echoed within the home. Indoor plants, natural materials, and earthy color palettes create a calming atmosphere.

The residents' collection of mid-century modern furniture complements the raw concrete surfaces, adding warmth and character. This careful curation of textures and furnishings reflects the broader philosophy of sustainable concrete house design—balancing robustness with comfort, and permanence with intimacy.

Cohesive Design as a Gesamtkunstwerk
PIN Architects approached Can House as a "gesamtkunstwerk," a term meaning "total work of art." Every element, from the structural systems to the furniture, was designed as part of a unified whole. This holistic approach ensures that the architecture, interior design, and landscape coexist harmoniously, creating a seamless living environment.

Sustainable concrete house design often aspires to this level of cohesion. By considering every detail—from the formwork of the concrete walls to the selection of chairs—architects can create homes that not only perform efficiently but also elevate the everyday experiences of their inhabitants.

Redefining Sustainable Concrete House Design
Can House by PIN Architects redefines what it means to build sustainably with concrete. It demonstrates that concrete, often associated with industrial aesthetics, can be both environmentally responsible and deeply connected to nature. Through thoughtful material selection, energy efficiency, and a design that honors the landscape, Can House sets a new standard for sustainable concrete house design.


As architecture evolves to address environmental challenges, projects like Can House remind us that sustainability is not merely about reducing impact—it is about fostering harmony between humans, buildings, and the natural world.


All photographs are works of İbrahim Özbunar