Sustainable Eco-Lodge Design: Unveiling Youza Eco-Lodge by Rodaa Studio
Exploring Rodaa Studio's Youza Eco-Lodge, a beacon of sustainable eco-lodge design nestled in Normandy, emphasizing harmony with nature and eco-tourism.
In the realm of architecture, sustainable eco-lodge design represents the confluence of eco-friendly materials, energy efficiency, and a deep respect for the natural environment. One exemplary project that embodies these principles is the Youza Eco-Lodge in La Couture-Boussey, Normandy, designed by Rodaa Studio.



Project Overview: Youza Eco-Lodge
Background and Concept
Nestled within a 32-hectare forest, the Youza Eco-Lodge project emerged from a municipal initiative to enhance local tourism while emphasizing the area's natural beauty. Rodaa Studio's design introduces 18 high-end eco-lodges, artfully distributed to ensure privacy and an immersive nature experience.








Design Philosophy
The project's design philosophy centers on creating spaces that allow occupants to reconnect with nature, fostering authenticity, creativity, and relaxation. The lodges' extensive use of wood and large windows not only provides warmth and light but also facilitates a seamless integration with the surrounding forest.






Architectural Features and Sustainability
Lodge Distribution and Accessibility
The eco-lodges are thoughtfully placed in five clusters—North, Central, East, West, and South—each offering unique experiences and accommodations for couples, families, and groups. Special attention was given to accessibility, with one lodge designed to welcome guests with disabilities.









The "Lieu de Vie" - A Central Hub
At the heart of the Youza Eco-Lodge is the "Lieu de Vie," a communal living space that acts as the project's only permanent structure. This building serves as a focal point for gatherings, information, and events, featuring a terrace and large bay windows that enhance its connection to the outdoors.




Material Selection and Environmental Impact
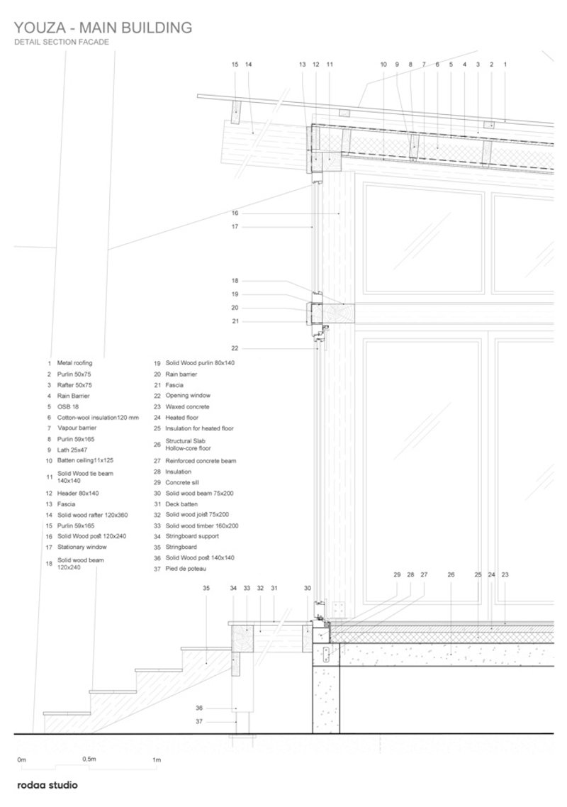
Rodaa Studio's commitment to sustainability is evident in their material choices, with a preference for PEFC-certified Belgian and French wood and recycled cotton insulation. The design aims to blend the lodges into their environment, using minimalist facades and a vernacular architectural style to minimize visual impact.


The Importance of Sustainable Eco-Lodge Design
The Youza Eco-Lodge project exemplifies how architecture can contribute to eco-tourism and environmental stewardship. By prioritizing sustainable materials, energy efficiency, and minimal environmental impact, projects like Youza set a benchmark for future developments in the hospitality industry.











Pioneering a Sustainable Future
The Youza Eco-Lodge by Rodaa Studio stands as a beacon of sustainable eco-lodge design, offering a blueprint for harmoniously blending human habitation with nature. This project not only enhances the local tourism landscape but also serves as a testament to the possibilities of sustainable architecture in fostering a deeper connection with our natural surroundings.







All photographs are work of Christophe Caudroy
Popular Articles
Popular articles from the community
Treehouse Apartment: A Warm Timber Interior Blending Craft, Play, and Contemporary Living
Warm timber apartment with integrated treehouse, combining natural materials, craftsmanship, and playful design to create a flexible, family-oriented living environment.
Inverted Architecture Installation by Studio Link-Arc: Exploring the Intersection of Architecture and Living Organisms
Inverted Architecture Installation by Studio Link-Arc blends mycelium, sustainability, inverted design, ecological cycles, and urban adaptive architecture in Shenzhen.
Louis Malle Cinema: A Limestone Cultural Landmark Revitalizing Community Life in Prayssac
Limestone cinema extension with public forecourt, blending heritage and modern design to create flexible cultural spaces and strengthen community interaction.
The Ken Roberts Memorial Delineation Competition (Krob)
As the most senior architectural drawing competition currently in operation anywhere in the world, it draws hundreds of entries each year, awarding the very best submissions in a series of medium-based categories.
Similar Reads
You might also enjoy these articles
The Ken Roberts Memorial Delineation Competition (Krob)
As the most senior architectural drawing competition currently in operation anywhere in the world, it draws hundreds of entries each year, awarding the very best submissions in a series of medium-based categories.
Waterfront Redevelopment and Urban Revitalization in Mumbai: Forging a New Dawn for Darukhana
A transformative waterfront redevelopment project reimagining Darukhana’s shipbreaking heritage into an inclusive urban future.
OUT-OF-MAP: A Call for Postcards on Feminist Narratives of Public Space
Rhizoma Design and Research Lab invites artists, designers, architects, researchers, and students to reflect on how feminist perspectives can reshape public space. Selected works will be exhibited in Barcelona, October 2026. Submissions open until 15 April 2026.
Documentation Work on Buddhist Wooden Temple
Architectural syncretism and cultural hybridity: A comparative study of the Buddhist temples in Chattogram Hill tracks
Explore Architecture Competitions
Discover active competitions in this discipline
The International Standard for Design Portfolios
The Global Benchmark for Architecture Dissertation Awards
The Global Benchmark for Graduation Excellence
Challenge to reimagine the Iron Throne
Comments (0)
Please login or sign up to add comments
No comments yet. Be the first to comment!